Thank you
Your message has been sent successfully, we will get in touch with you as soon as possible.
€395,000
West Point Business Centre
Charlestown
Co. Mayo
F12 YY95
Description
Constructed in 2004 this modern building is excellently located right in the heart of Charlestown, on the intersection of the N5 / N17 and within 5 minutes of Ireland West Airport Knock. The building is also serviced by a rear access road and a substantial private car park complete with automated access gates.
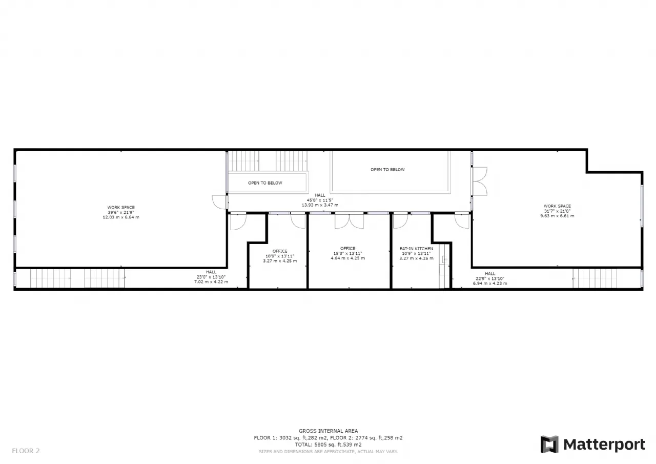
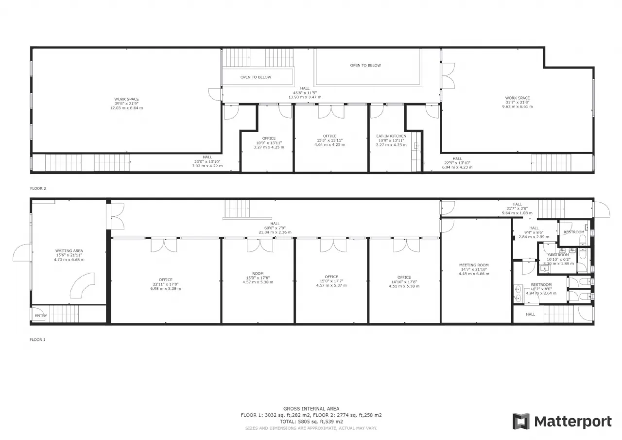
Comprising approximately 560 square metres (6,027 square feet) over two floors this substantial office building is laid out in a number of suites of varying sizes with communal reception, kitchen and restroom facilities.
Finished to a very high standard throughout West Point is serviced by fibre broadband, monitored fire and intruder alarm systems, 24 hour electronic access and LED lighting throughout.
Features
Modern Building with private car park and rear access road.
Finished to a high standard throughout.
560 square metres over two floors.
Excellent location on the N5 - N17 intersection.
Very convenient to Ireland West Airport Knock.
Excellent fibre broadband.
Fire & Intruder Alarm systems.
CCTV.
Electronic Access.
LED lighting throughout.
Automatic gate to Car Park.
For Sale as a going concern.
Attractive income with potential to significantly increase
Rooms
Reception 4.72m x 6.68m with porcelain tiling and glass facade.
Hallway 9.63m x 1.07m
Office One 6.99m x 5.38m
Office Two 4.57m x 5.38m
Office Three 4.57m x 5.38m
Office Four 4.52m x 5.38m
Office Five 4.45m x 6.65m
Ladies Toilets 4.93m x 2.64m with two wash hand basins, two hand dryer's and two wc cubicles.
Gent Toilets 3.3m x 1.88m with wash hand basin, hand dryer, wc and two urinals.
First Floor
Landing 13.92m x 0.91m
Front Hallway 7m x 0.91m
Office Six 12.04m x 6.63m
Office Seven 3.28m x 4.24m
Office Eight 4.65m x 4.24m
Kitchen 3.28m x 4.24m with fully fitted kitchen units.
Office Nine 9.63m x 6.6m
Rear Hallway 6.93m x 0.91m
About the Area
Charlestown is a charming town in County Mayo. It is located at the crossroads of two National Primary routes, the N17 and the N5. Charlestown has a population of approximately 800 people, and locals are well served in terms of amenities. The town itself is well planned with wide open streets and parking facilities.
Get Directions Buying property is a complicated process. With over 40 years’ experience working with buyers all over Ireland, we’ve researched and developed a selection of useful guides and resources to provide you with the insight you need..
From getting mortgage-ready to preparing and submitting your full application, our Mortgages division have the insight and expertise you need to help secure you the best possible outcome.
Applying in-depth research methodologies, we regularly publish market updates, trends, forecasts and more helping you make informed property decisions backed up by hard facts and information.
Need Help?
Our AI Chat is here 24/7 for instant support
Help To Buy Scheme
The property might qualify for the Help to Buy Scheme. Click here to see our guide to this scheme.
First Home Scheme
The property might qualify for the First Home Scheme. Click here to see our guide to this scheme.
