Thank you
Your message has been sent successfully, we will get in touch with you as soon as possible.
Rent on application Sale Agreed
Newgrove
Warehousing Units
7&8 Newgrove Indutrial Estate
Scotstown Road
Monaghan
H18T850
Description
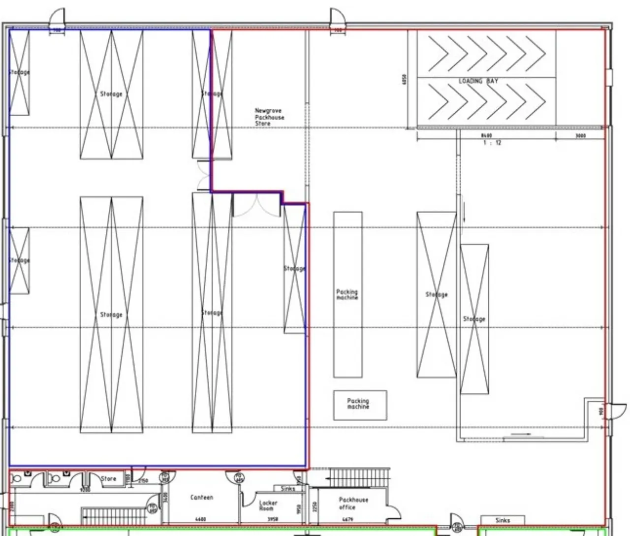
An excellent opportunity to rent top quality warehousing space extending to 1'100 sq. mts. (11'840 sq. ft.) approx. Unit 7 is open plan with HGV access and racking in place. Unit is a former mushroom processing plant with a large cold room and HGV access suitable for inward and outward deliveries. To the side of the property is a secure yard for deliveries and parking. Included with the warehousing is office space, toilet and shower facilities.
Newgrove Industrial Estate is located along the R186 from Monaghan town with easy access off the N54 (main Cavan Road) 1.5 km. An impressive park from which to grow your business.
The units are ready for immediate occupation or fit out.
Viewings strictly by appointment.
Features
Secure yard for deliveries and parking
Located only 1.5 km from Monaghan town centre
Eves height 7mts
Ridge height 8 mts (internally)
HGV access to sides and rear
Smoking bench and canopy
BER Information
BER Number: 800849986
Energy Performance Indicator: 217.51 kWh/m²/yr
About the Area
Monaghan Town is a pictuesque surrounded by Drumlin hinterland; made famous by the poet Patrick Kavanagh. Monaghan Town has a vibrant night life and is renowned for its restaurants. Local industries include timber-frame manufacturing, forklift development and an IDA site. Monaghan Town is an ideal base with lots of local attractions, and just a short drive from Northern Ireland.
Get Directions Buying property is a complicated process. With over 40 years’ experience working with buyers all over Ireland, we’ve researched and developed a selection of useful guides and resources to provide you with the insight you need..
From getting mortgage-ready to preparing and submitting your full application, our Mortgages division have the insight and expertise you need to help secure you the best possible outcome.
Applying in-depth research methodologies, we regularly publish market updates, trends, forecasts and more helping you make informed property decisions backed up by hard facts and information.
Need Help?
Our AI Chat is here 24/7 for instant support
Help To Buy Scheme
The property might qualify for the Help to Buy Scheme. Click here to see our guide to this scheme.
First Home Scheme
The property might qualify for the First Home Scheme. Click here to see our guide to this scheme.
