Thank you
Your message has been sent successfully, we will get in touch with you as soon as possible.
€950,000
Gieltys Bar & Restaurant
Keel West
Dooagh
Achill Island
Co Mayo
F28 F6C1
Description
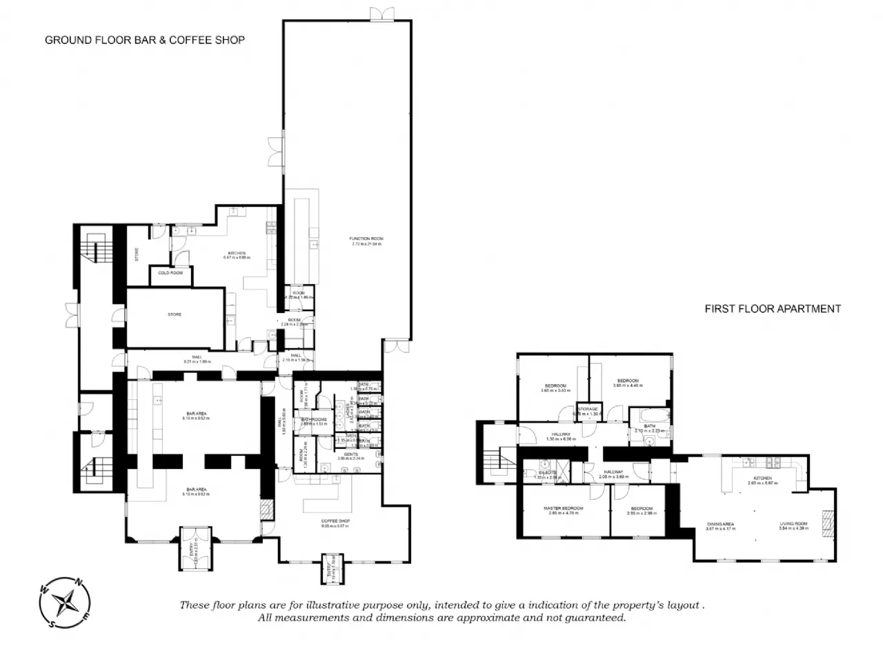
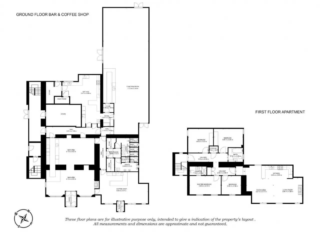
The property has a floor area of approximately 728sq m/ 7,836 sq ft and is presented in good condition throughout. Ground floor accommodation consists of bar & lounge/restaurant, toilet facilities which include baby change and accessible toilet, a fully equipped catering kitchen, keg room, multiple store rooms and a large function room with fully equipped bar and separate entrance. There is also an adjoining fully equipped coffee shop with a separate entrance. The coffee shop and front bar have stunning south facing views of the sea and Cliffs.
First floor accommodation comprises of a staff canteen, staff changing facilities with toilet and shower and an administration office. The residential accommodation is also located on the first floor and comprises of a large kitchen/living/dining area, four double bedrooms (master ensuite) and family bathroom.
Externally, to the rear of the property there is a detached building with two large rooms, currently used for storage, with development potential subject to the correct planning permission. There is a large delineated car park to the front and side of the building which allows for coach bay parking and an E.V. charging point. This is the only charging point on the entire island and the only point between Westport and Achill.
Achill island is the largest of the Irish isles and is known as one of the jewels in the crown on the Wild Atlantic way. The island is connected to the mainland by the Michael Davitt bridge in Achill Sound. Its raw landscape and unspoiled beauty provide some of the most breath taking scenery in the country. The island is renowned for its soaring mountains, sea cliffs and blue flag golden beaches.
The island offers a varying range of activities such as golfing, surfing/kite surfing, horse riding, cycling and walking trails (part of the Great Western Greenway), a host of water sports and so much more.
Gielty’s is located in Dooagh and is the last pub on the route to the famous Keem Beach, the only Irish beach in Lonely Planet’s top 100 beaches worldwide. The beach is a magnet for both national and international tourists. The premises offer a full restaurant and cafe menu and is renowned for its traditional music sessions, making it a very popular destination for tourists and locals all year round.
Features
Being sold as a going concern
Bar and Resturant furniture available at an additional cost.
Adjoining fully equipped coffee shop
fully equppied kitchen
Overhead accommodation
Substantial function room with separate entrance
E.V. Charging point
Large car park
Potential for redevelopment
Stunning location
Rooms
COFFEE SHOP
Entrance Hall 2.17m x 2.0m Double doors, tiled floor
Cafe 8.8m x 5.2m Seaparate entrance to Bar/Restaurant, tiled floor, counter with cold display unit, burco boiler
BAR/RESTAURANT ACCOMODATION
Front Bar 8.24m x 9.62m Tiled floor, mahogony bar, open fire, access to coffee shop
Back Bar / Restaurant 8.5m x 5.07m Tiled floor, booth seating
Hall 9.21m x 7.80m
Bathroom Hallway 1.9m x 1.45m Tiled
Accessible Toilet 1.2m x 2.1m Tiled floor, whb
Baby change 1.03m x 2.03m
Gents wc 3.85m x 2.3m Cubicles x 2, sinks x 2
Ladies wc 3.7m x 3.3m Tiled floor, cubicles x 4, whb x 3
& 2.16m x 1.56m Tiled floors, access doors to toilets, kitchens, store rooms and function room
Sluice/cleaning room 2.6m x 2.05m
Kitchen 6.47m x 8.86m Fully equipped stainlees steel Catering kitchen, gas burner, grill, pass through dishwasher, freezers, fridges, prep areas
Keg room 5.4m x 3.2m keg room 14 lines
Cold room 2.3m x 1.15m Shelved for food storage
Dry food store 2.3m x 2.1m Shelved for food storage
Function Room 7.83m x 21.54m carpeted main floor, tiled around bar, wooden dance floor, bar, stage
FIRST FLOOR
Staff Canteen 2.94m x 3.72m
Staff locker room 1.9m x 0.9m
Staff bathroom 2.23m x 2.0m Toilet, shower, whb
Administration office 5.76m x 2.75m Desk and seating, CCTV system, filing cabinets, safe with drop box
RESIDENTIAL ACCOMODATION
Entrance Hallway 1.30m x 6.06m Carpeted
Bedroom 1 3.96m x 2.64m Carpeted
Hot press 0.9m x 0.85m
Bedroom 2 4.4m x 2.89 Carpeted
Bathroom 2.2m x 2.21m toilet, whb, bath with shower over head
Hallway 2.05m x 3.60m Carpeted
Master Bedroom 4.8m x 2.5m Carpeted
En-Suite 2.9m x 1.2m Toilet, whb and shower
Bedroom 4 3.3m x 2.4m carpeted
Kitchen/Living/Dining 8.28m x 5.17m Carpeted living/dining, tiled foor & wooden units in kitchen
BER Information
BER Number: 800834491
Energy Performance Indicator: 651.95 kWh/m²/yr
About the Area
Achill Island in County Mayo is the largest island off the coast of Ireland, with a population of 2,700. Achill Archaeological Field School is based at the Achill Archaeology Centre in Dooagh, which has served as a catalyst for a wide array of archaeological investigations on the island. There are between 500-600 native Irish speakers in Achill parish.
Get Directions Buying property is a complicated process. With over 40 years’ experience working with buyers all over Ireland, we’ve researched and developed a selection of useful guides and resources to provide you with the insight you need..
From getting mortgage-ready to preparing and submitting your full application, our Mortgages division have the insight and expertise you need to help secure you the best possible outcome.
Applying in-depth research methodologies, we regularly publish market updates, trends, forecasts and more helping you make informed property decisions backed up by hard facts and information.
Need Help?
Our AI Chat is here 24/7 for instant support
Help To Buy Scheme
The property might qualify for the Help to Buy Scheme. Click here to see our guide to this scheme.
First Home Scheme
The property might qualify for the First Home Scheme. Click here to see our guide to this scheme.
