Thank you
Your message has been sent successfully, we will get in touch with you as soon as possible.
€850,000
21 High Street
Kilkenny
R95 YWV8
Description
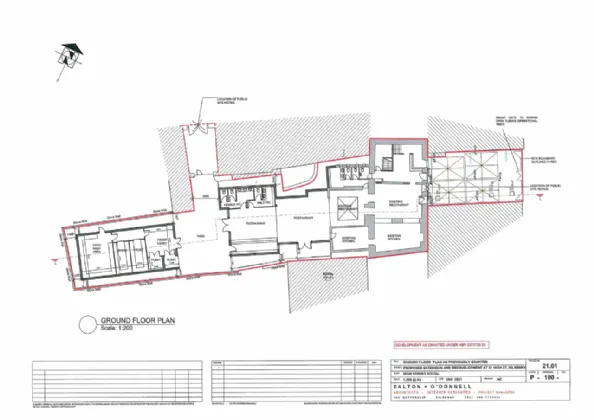
This imposing Georgian Building overlooks a front Courtyard and High Street at the very heart of Kilkenny City opposite the Thosel - Town Hall.
The property is a 3 storey building extending over three floors. The ground floor of the property formerly traded as 'Uncle Sams' fast food restaurant and takeaway. The extensive garden area to the rear offers enormous potential.
PLANNING:
The property is zoned for general business purposes in the current (2021-2027) Kilkenny Development Plan.
No. 21 is a protected structure. Planning Permissions Ref; ABP307372 and Ref; ABP309874-21 were granted by An Bord Pleanala for 'change of use' to a licensed restaurant to include the established ancillary takeawy/home delivery service.
Given the zoning status of the property, it would be suitable for a multitude of user types including Retail, Takeaway, Restaurant, Bar, Residential etc.
The front courtyard is part of the property in sale with neighbouring buildings having right of way access.
The property includes a large enclosed rear yard with vehiclular access off William Street.
This is an excellent opportunity to acquire a large block of land at the very heart of Kilkenny City Centre. The large open courtyard to the front lends itself to development of a vibrant open air commercial space.
Viewing anytime by prior appointment
About the Area
Kilkenny is a vibrant city, built on both banks of the River Nore, with a population of 8,711. It is a popular tourist destination, and locals avail of the amenities and leisure facilities found here. Kilkenny is the smallest city in Ireland, 117 kilometres (73 mi) away from Dublin and 48 kilometres (30 mi) north of Waterford city.
Get Directions Buying property is a complicated process. With over 40 years’ experience working with buyers all over Ireland, we’ve researched and developed a selection of useful guides and resources to provide you with the insight you need..
From getting mortgage-ready to preparing and submitting your full application, our Mortgages division have the insight and expertise you need to help secure you the best possible outcome.
Applying in-depth research methodologies, we regularly publish market updates, trends, forecasts and more helping you make informed property decisions backed up by hard facts and information.
Need Help?
Our AI Chat is here 24/7 for instant support
Help To Buy Scheme
The property might qualify for the Help to Buy Scheme. Click here to see our guide to this scheme.
First Home Scheme
The property might qualify for the First Home Scheme. Click here to see our guide to this scheme.
