Thank you
Your message has been sent successfully, we will get in touch with you as soon as possible.
€299,000 Sale Agreed
Unit 110
Six Cross Roads Business Park
Kilbarry
Waterford
X91 AP80
Description
Sherry FitzGerald John Rohan present an excellent opportunity located in the thriving Six Cross Roads Business Park.
LOCATION
The Six Cross Roads Business Park is ideally located in the Southern suburbs on the outskirts of Waterford City, just off the R710 outer ring road beside the Six Cross Roads Roundabout. Its prime positioning means it is easily accessible from the Waterford City By-Pass via the new Southlink Bridge. This further provides access from Waterford to Kilkenny and Dublin via the M9 motorway, Cork and Rosslare via the N25 and Tipperary and Limerick via the N24.
In the immediate area there is a vast mix of retail and industrial property. Across from the Six Cross Roads Business Park is the Musgrave Business Park which holds The Range and Musgraves Marketplace Cash & Carry, while Tesco and Waterford Fire Station are within very close proximity.
Occupiers immediately adjacent include: Ireland Website Design, Graphic Image, Weltec Engineering and Dataworks. While other occupiers within the Business Park include: Swift Print, Enterprise Kitchens and Bedrooms, Brennan Catering Suppliers, Deise Blinds and Shutters, Clem Jacob Hire, Sean O’Tool Carpets, Evoke Kitchens, DB Fitness, TMG Plumbing & Heating Services, Ganaru Jiu Jitsu Academy and the RSA Driving Test Centre.
The area benefits from the 360 bus route which services Tramore, Southeast Technology Waterford and the city centre, where the nearest stop is less than 500m away.
PROPERTY DESCRIPTION
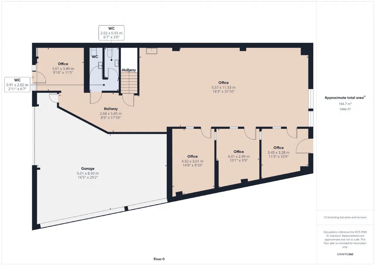
The property is a 2-storey end of terraced commercial unit. This substantial unit measures to approx. 3,551 sq. ft. /330 sq. m. The total current office space is 1,986 sq. ft. / 184 sq. m.
Ground floor accommodation comprises of entrance hall with a reception area carpet flooring and pendent lighting; the hallway has both male and female toilets.
To the rear of the ground floor is and open plan office accommodation, with breakout area and large office space comprising suspended ceilings with recessed strip lighting throughout. Three office's/meeting rooms on this floor which provides a good facility for any office work environment.
Also located on the ground floor is outline in the floor plan as "garage" this is currently used as storage space for the office, with the roller shutter doors, and 5.5m eves height, there is opportunity for further growth within the footprint of the property.
Upstairs there is currently more storage space, currently laid out as a gym.
Externally the unit benefits from five car parking spaces to the front and over roller shutter door to the front with a separate pedestrian door to the reception/office area. The clear internal height is 5.5m.
TENURE
Freehold Interest
TENANCY
The property is currently being sold by the owner occupier and vacant possession will be available upon completion of the sale.
COMMERCIAL RATES
€1,415 per annum.
MANAGEMENT FEES
To be confirmed.
BER
To be confirmed.
About the Area
Waterford (Irish: Port Láirge) is the oldest city in Ireland, situated at the head of Waterford Harbour, with a population of 46,732. The city is served by 21 primary schools and 9 secondary schools. River Suir, which flows through Waterford City, has provided a basis for the city's long maritime history. The M9 motorway, connects the city to Dublin. The N24 road connects the city to Limerick city. The N25 road connects the city to Cork city. The route continues eastwards to Rosslare Harbour. Bus services operate throughout the city centre and across the region. Waterford railway station is the only railway station in the county of Waterford.
Get Directions Buying property is a complicated process. With over 40 years’ experience working with buyers all over Ireland, we’ve researched and developed a selection of useful guides and resources to provide you with the insight you need..
From getting mortgage-ready to preparing and submitting your full application, our Mortgages division have the insight and expertise you need to help secure you the best possible outcome.
Applying in-depth research methodologies, we regularly publish market updates, trends, forecasts and more helping you make informed property decisions backed up by hard facts and information.
Need Help?
Our AI Chat is here 24/7 for instant support
Help To Buy Scheme
The property might qualify for the Help to Buy Scheme. Click here to see our guide to this scheme.
First Home Scheme
The property might qualify for the First Home Scheme. Click here to see our guide to this scheme.
