Thank you
Your message has been sent successfully, we will get in touch with you as soon as possible.
€275,000
15 O'Connell St
Dungarvan
Co Waterford
X35P661
Description
Situated on O'Connell St just up from Grattan Square the property is surrounded by well established businesses and consists of a ground floor commercial premises with extensive overhead residential accomodation.
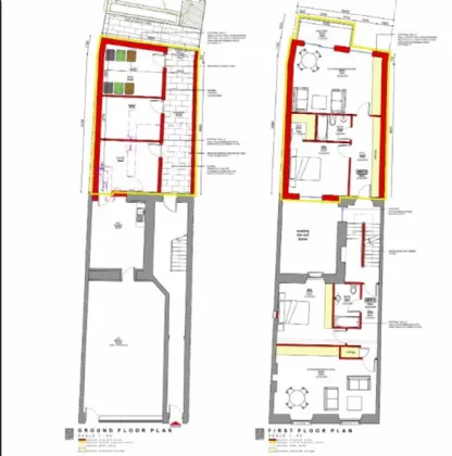
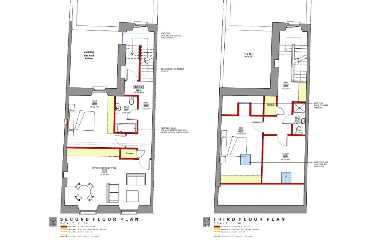
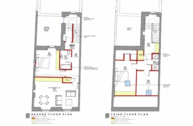
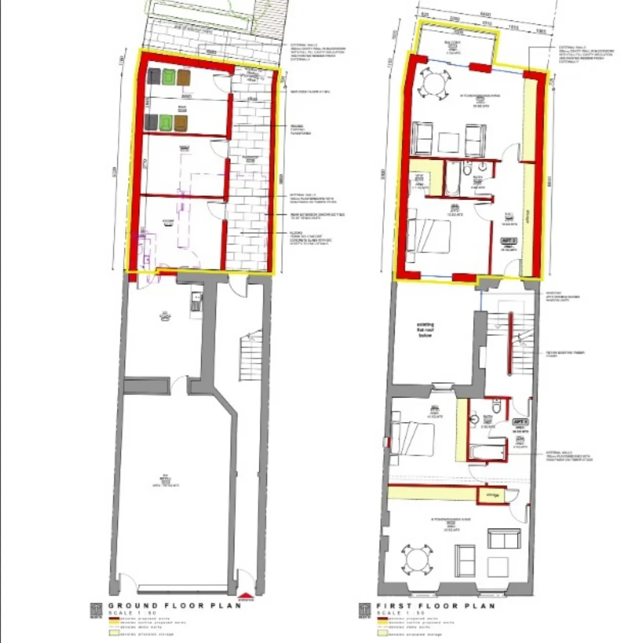
The property had full planning permission to convert the upper floors into 4 apartments and has just lapsed. (See sample drawings attached.) The upper floors are currently stripped and primed for renovation works.
This property has the potential to be purchased on an individual basis as part of a larger development site consisting of numbers 14, 15 & 16 O'Connell St and their full sites - creating an extensive town centre holding.
Features
Ground floor commercial unit with extensive overhead residential accom.
Full PP just lapsed for conversion to 4 apartments overhead.
Large site with future development potential subject to planning.
Mains services.
About the Area
Dungarvan (Irish: Dún Garbhán) is a seaside resort town and harbour, situated on the N25 national primary road and the R672 and R675 regional roads. The nearest airports are Waterford Airport, which is 50km away and the larger Cork Airport, which is 80km away. Dungarvan is at the mouth of the Colligan River, which divides the town into two parts. Dungarvan Harbour as such is formed by The Quay (on the town side) and The Causeway. Outside the harbour, a 3 km sandbar, "The Cunnigar" defines the western limit of the 4 km-wide Dungarvan Bay. There is a well-maintained concrete slipway in Dungarvan town, suitable for launching vessels up to eight metres in length. Moorings are usually made available to visiting yachts by Dungarvan Harbour Sailing Club, often free of charge.
Get Directions Buying property is a complicated process. With over 40 years’ experience working with buyers all over Ireland, we’ve researched and developed a selection of useful guides and resources to provide you with the insight you need..
From getting mortgage-ready to preparing and submitting your full application, our Mortgages division have the insight and expertise you need to help secure you the best possible outcome.
Applying in-depth research methodologies, we regularly publish market updates, trends, forecasts and more helping you make informed property decisions backed up by hard facts and information.
Need Help?
Our AI Chat is here 24/7 for instant support
Help To Buy Scheme
The property might qualify for the Help to Buy Scheme. Click here to see our guide to this scheme.
First Home Scheme
The property might qualify for the First Home Scheme. Click here to see our guide to this scheme.
