Thank you
Your message has been sent successfully, we will get in touch with you as soon as possible.
€4,750,000
Contact Us
Our team of financial experts are online, available by call or virtual meeting to guide you through your options. Get in touch today
Error
Could not submit form. Please try again later.
Kilquade Hill House
Kilquade
Greystones
Co Wicklow
A63 XR72
Description
Believed to date from Circa. 1820 in classical Georgian style, the property was subject to a complete three-year build creating a manageable sporting estate. The result is an exceptionally comfortable and attractive home, where attention to design, detail and quality, has been paramount.
Maintaining the elegant proportions, grandeur and symmetry of the Georgian era the vendor, reconfigured, and built anew the interior, seamlessly pairing classical styling with contemporary design, thereby creating a much more functional and open space totalling approx 390 Sq.m or 4,199 Sq.ft.. Superior quality materials are evident throughout, as well as many bespoke features and specialist finishes executed by craftsmen drawn from around Europe. With the exception of the reception hall and the bathrooms the whole house features oak flooring. Also worth noting, there are triple glazed windows which are draught free, energy efficient and soundproof the house.
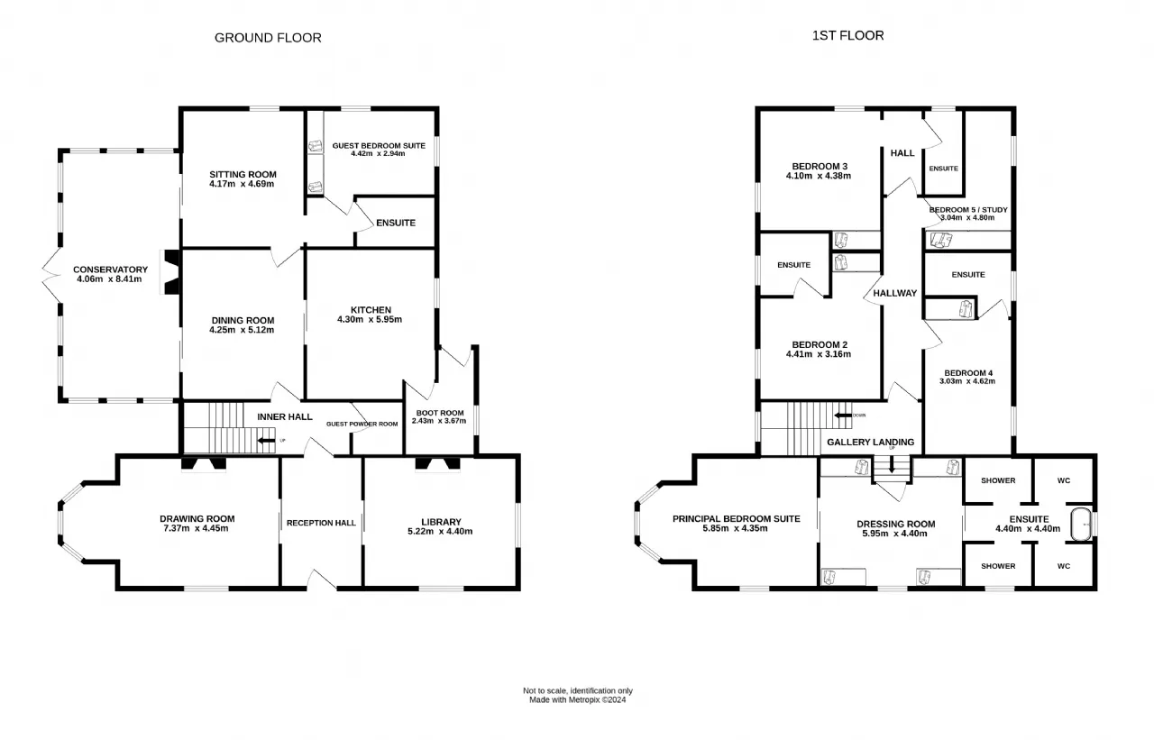
The house is entered through a stone portico and front door which opens to an impressive entrance hall with marble flooring. A feeling of harmonious proportion and balance is achieved in the entrance hall by four symmetrical doors and mirrored panels. The hall opens to the left into a formal drawing room featuring a fine bay window and to a library on the right featuring floor to ceiling fitted oak bookcases, with fireplaces in both rooms. The library, hall and drawing room open onto each other via sliding doors with wide openings thereby creating the feeling of continuous space in an enfilade design and a serene and elegant atmosphere.
The entrance hall also leads into a dining room, a powder room and the kitchen via an inner hall. The spacious custom integrated kitchen is fitted with a full suite of top-quality appliances and leads to a boot/mud room with separate side entrance.
The focal point of the house is the large conservatory built in stone with extensive exterior architectural mouldings. The conservatory is a luminous space featuring ten windows, double doors to a terraced area and the garden, a large skylight, a fireplace and hand painted wallpaper. This stunning room opens directly south onto a terrace perfect for al-fresco dining and entertaining. The conservatory can be accessed from the dining room and from the sitting room.
A sitting room lies adjacent to the conservatory. The sitting room leads to a guest bedroom suite which completes the ground floor accommodation. The walls in the guest suite are upholstered in fabric. The room includes fitted cedar-lined wardrobes. The adjoining bathroom is finished in stone from floor to ceiling, features impressive fittings, built-in cabinets, and a magnifying makeup mirror. All ensuite bathrooms are finished in stone from floor to ceiling, feature direct light surrounding the mirror as well as bright ceiling light. With one exception all bathrooms have windows to the outside.
The staircase to the first-floor features oak treads and a beautiful, one of a kind bespoke cast iron handrail created by an Italian artist. The first-floor gallery landing’s sense of arrival ushers one towards the principal bedroom suite occupying the entire footprint of the front of the house. The suite enjoys wonderful sea views complementing the southerly and northerly outlooks over the grounds. Here one finds the main bedroom, an oak panelled dressing room, a private office area overlooking the sea, and a stunning double aspect his and hers ensuite bathroom with floor to ceiling stone-framed mirrored walls which enhance the feeling of light and space.
A corridor leads to four more luxury bedrooms, three of which are ensuite, all feature upholstered walls and bespoke fitted cabinetry. These bedrooms are finished to an impressive standard. All bedrooms are spacious and benefit from wonderful natural light and delightful views over the gardens.
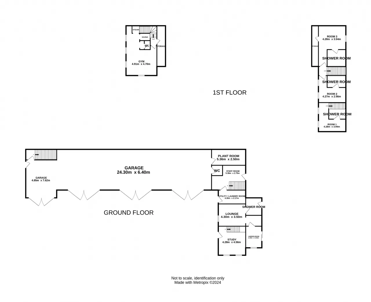
A key feature of Kilquade Hill House is the newly built L shaped coach house to the back of the house creating a rarely found spacious central courtyard. The coach house contains a gym (approx. 23 sq.m. / 247 sq.ft.), a sauna, a steam room, plant room, laundry room, underground wine cellar with capacity for approx. 2,300 bottles, four additional rooms, 5 full bathrooms, WC, 2 storage rooms and 4 double-bay garage doors. The garage space is currently configured to accommodate 14 cars. The coach house is built to the same exacting standards as the main house. The quality materials employed include 15cm thick Spanish grey granite cladding to the exterior brick, slate roof, copper gutters and downpipes, imposing wooden doors made from Iroko featuring equally imposing bespoke ironmongery from Spain, oak flooring everywhere other than the garage, triple glazed windows and sliding doors and underfloor heating throughput (including the garage).
The main part of the garage measures approx. 155 sq.m./ 1,668 sq.ft. and features a 5-meter ceiling which is panelled in oak and comprises three double-bay doors. This substantial, imposing, diaphanous and unique space could be put to many other uses other than storing a car collection. The superb L-shaped coach house wing offers versatile accommodation ideal for remote working in addition to fitness, wellness, hobby/crafts and garaging.
The extensively landscaped grounds are outstanding and complement the residence beautifully. The park land setting incorporates two ponds, fountain, walled garden, vegetable garden and tennis court, tractor shed, tennis court shed as well as many mature trees.
Kilquade Hill House is situated in County Wicklow which is known as the “Garden of Ireland” due to its unspoilt countryside with mountains, upland lakes, steep sided glacial valleys, forests, farmlands, and a wonderful coastline with sandy beaches. Situated in idyllic rural surroundings, Kilquade Hill House is within easy access of the N11, M50, Dublin City and Dublin Airport. The towns of Greystones (4.5 km) and Delgany (4 km) are both located within close proximity and provide a wide variety of excellent shops, boutiques, cafes, restaurants, schools, golf clubs and sporting facilities. Greystones has recently won the prestigious International award for the most liveable community. The 5-star Powerscourt Hotel Estate is located 17 km to the northwest. Within a 25 km radius, the south Dublin suburbs such as Blackrock, Dalkey and Killiney are all very popular destinations for restaurants, shops and many more amenities.
For those who wish to travel further afield, there are excellent transport links, with the N11 motorway (1 km) providing access to Dundrum Town Centre (27 km) and Dublin City Centre (33 km). The historic coastal town of Greystones offers regular rail connections to Dublin via the Dart.
There are many outdoor activities within easy reach including sailing, tennis, rugby, football and GAA clubs at Greystones. The contrasting terrain in the county, including far-stretching
beaches on the east coast and dramatic mountain ranges to the west, offers a wide selection of outstanding walks. As with much of Ireland, the area has a variety of opportunities for the
equestrian enthusiast.
Golfers are well catered for in County Wicklow, with the championship courses at Powerscourt, Druids Glen and the European Club at Brittas Bay (one of Ireland's finest links courses) all situated within the county.
There is an excellent selection of private schooling in the surrounding area including St. Gerard's School and Loreto Secondary School Bray, plus a further selection of both day and boarding schools in South County Dublin. There is also a good range of primary and preschools locally.
This is one of the finest residences to come to market in the Dublin region, appealing to the most discerning purchaser.
Contact Us
Our team of financial experts are online, available by call or virtual meeting to guide you through your options. Get in touch today
Thank you
Your message has been sent successfully, we will get in touch with you as soon as possible.
Error
Could not submit form. Please try again later.
Features
About 5 acres of gardens landscaped by award-wining designers.
Outstanding sea views.
Courtyard coach house wing with accommodation, garaging, and gym.
International competition-standard tennis court.
Bespoke craft features, top quality materials, luxury accommodation.
Convenient to Greystones and the N11/M11 corridor.
Rooms
Stone portico main entrance to:
Reception Hall With marble flooring, symmetrical doors opening left and right respectively to:
Drawing Room 7.37m x 4.45m Dual aspect featuring an impressive southerly bay window, and a fireplace.
Library 5.22m x 4.4m Enjoying a dual aspect, a fireplace and beautiful floor to ceiling oak bookshelves.
Inner Hall Featuring an oak tread staircase with bespoke cast-iron handrail created by an Italian artist.
Guest Powder Room Off the inner hall, with hand painted wallpaper; W.C. and feature stone wash hand basin.
Dining Room 4.25m x 5.12m A characterful space intercommunicating centrally with kitchen, conservatory, and sitting room.
Kitchen 4.3m x 5.95m Classically designed around a central island featuring attractive custom wall and floor level units, extensive work surfaces with tiled splashbacks, ample power points and a suite of superior quality integrated appliances.
Boot Room 3.67m x 2.43m With extensive fitted cupboards has its own side entrance.
Conservatory 4.06m x 8.41m A triple-aspect light-filled room with fully clad exterior stonework and detailed architectural mouldings, featuring direct access to a southerly terrace ideal for al fresco dining/entertaining, fireplace, hand-painted wallpaper, and an atrium. This is an exciting and appealing space accessible both from the dining room and adjacent sitting room.
Sitting Room 4.17m x 4.69m With westerly aspect.
Guest Bedroom Suite 4.42m x 2.94m Dual aspect, fabric-upholstered walls, oak fitted cedar-lined wardrobes.
En-Suite Luxuriously finished in stone from floor to ceiling featuring impressive fittings, built-in cabinets, magnifying-mirror with direct surround lights, and ceiling lighting.
First Floor
Gallery Landing Leading to the impressively proportioned principal bedroom suite occupying the entire footprint of the front of the house.
Principal Bedroom Suite 5.85m x 4.35m A dual aspect room with panoramic sea views and a fine southerly bay window overlooking the landscaped grounds, intercommunicating with:
Dressing Room 5.95m x 4.4m Oak-panelled throughout including the ceiling, creating a warm, mellow, luxurious atmosphere.
Home Office Zone Affording sea views, in turn opening to:
En-Suite 4.4m x 4.4m Beautifully appointed large his and hers bathroom featuring dual showers, W.C. and vanity wash basins plus a shared bathtub, where mirrored walls are framed by stone and the dual-aspect windows overlook the gardens.
Hallway A door from the landing invites one to a corridor, off which there are four more bedrooms enjoying great natural light; three being ensuite and each finished impeccably, with built-in wardrobes and fabric upholstered walls.
Bedroom 2 4.41m x 3.16m With views south over the gardens to rolling countryside with En-Suite.
Bedroom 3 4.38m x 4.10m Dual aspect room south and west with similar outlook as Bedroom2 with En-Suite.
Bedroom 4 3.03m x 4.62m With views north-west over the walled garden with En-Suite.
Bedroom 5 / Study 3.04m x 4.8m Northwesterly aspect towards the walled garden.
Courtyard Coach House wing Courtyard Coach House wing comprising floor area of approximately 413 sq.m./4,445 sq.ft.
Study 4.28m x 4.56m A dual-aspect room with stairs to first floor to Room 1 (4.28m x 3.94m) with Shower Room.
Garden Room 2.3m x 3.53m With patio screen doors to verandah and walled garden. Lobby accessing:
Lounge 4.33m x 3.5m With Shower Room.
Utility / Laundry Room 4.3m x 2.17m Plumbed and fitted with washroom appliances. Opening to:
Staff Room 5.38m x 2.75m With garden access, stairs to first floor.
Room 2 4.27m x 2.56m With Shower Room.
Room 3 4.28m x 3.54m With Shower Room and storage.
Garage 24.3m x 6.4m Accessed by four double-bay door with 5-metre-high oak panelled ceiling, W.C. and Plant Room, the south wing (4.85m x 7.62m) with separate door to the garden. Stairs to Gym (4.91m x 4.7m) with W.C., sauna, steam room, and storage. In addition, there is an underground wine cellar with capacity for around 2,300 bottles.
The Gardens & Grounds Kilquade Hill House benefits from an attractive entrance featuring a large cobblestoned apron and four pillars. It includes an electric gate with a video entry system which can be controlled from separate points in the house and annex. Beyond the gate is a driveway that winds its way through the landscaped grounds to the main house. The house is set back from the road providing total privacy. The driveway leads to a spacious area between the main entrance of the house and the sunken garden across from it. It also leads to the annex behind the main house. The exquisite and mature gardens are a key feature of the property and have been extensively landscaped. The garden design and landscaping was primarily carried out by David Stephens. He is an award winning and internationally acclaimed landscaper and garden designer who has won multiple gold medals at the Chelsea Flower Show and at the Hampton Court International Flower Show. He has also received awards in Japan, South Africa and Australia. Further contributions to the landscaping and to the garden design were made by the well-known Irish based designers Arthur Shackleton and Mary Reynolds. The grounds and gardens have been meticulously designed and maintained to create a harmonious setting. The grounds feature two ponds, a fountain, a walled garden, a sunken garden, extensive flower beds, fruit trees, an abundance of mature trees, evergreen trees strategically placed such that every vista beyond the property boundary is attractive, a covered path beneath a pergola covered in wisteria and climbing roses, extensive garden lighting and a vegetable garden. The garden also features a tractor shed and a green house. A key feature of the property is a tennis court surface with ''Tiger Turf'' which can be found at the Fitzwilliam Lawn Tennis Club in Dublin or The Queen's Club in London. The court is built to the International Tennis Federation regulation size for competition and is possibly one of the most impressive tennis courts in the country. The court has an attractive shed (painted in Wimbledon green) next to it. The property also features a high specification security system which includes 24-hour video monitoring if desired.
BER Information
BER Number: 105547012
Energy Performance Indicator: 96.8 kWh/m²/yr
About the Area
Kilquade is a small village in north County Wicklow, between Kilpedder and Kilcoole, about one kilometre east of Junction 12 (Kilpedder) of the N11 national primary route. It is part of the barony of Newcastle and lies within both the civil parishes of Kilcoole and Newcastle Lower. It is home to the prestigous National Garden Exhibition Centre.
Get Directions Buying property is a complicated process. With over 40 years’ experience working with buyers all over Ireland, we’ve researched and developed a selection of useful guides and resources to provide you with the insight you need..
From getting mortgage-ready to preparing and submitting your full application, our Mortgages division have the insight and expertise you need to help secure you the best possible outcome.
Applying in-depth research methodologies, we regularly publish market updates, trends, forecasts and more helping you make informed property decisions backed up by hard facts and information.
Need Help?
Our AI Chat is here 24/7 for instant support
Help To Buy Scheme
The property might qualify for the Help to Buy Scheme. Click here to see our guide to this scheme.
First Home Scheme
The property might qualify for the First Home Scheme. Click here to see our guide to this scheme.
