Thank you
Your message has been sent successfully, we will get in touch with you as soon as possible.
€850,000 Sale Agreed
Contact Us
Our team of financial experts are online, available by call or virtual meeting to guide you through your options. Get in touch today
Error
Could not submit form. Please try again later.
178 The Links
Elmpark Green
Merrion Road
Dublin 4
D04 V329
Description
Upon entering the penthouse, you are immediately struck by the large entrance hall giving access to the main reception and kitchen dining room. This room exudes light and is framed by the sweeping timber glulam beams which is the main feature. The glazed double height ceiling and floor to ceiling picture windows enjoys unrestricted views of Elm Park Golf Club and enjoys access to the west facing sun drenched terrace.
The accommodation is exceptionally well laid out to take full advantage of its elevated position. At the opposite end of the living / dining room is the fully equipped kitchen to include stainless steel appliances and granite work top. From the other side of the entrance hall are two double bedrooms, one with an en-suite and the other has direct access to the main bathroom which is configured in a Jack and Jill format and is also accessed from the entrance hallway.
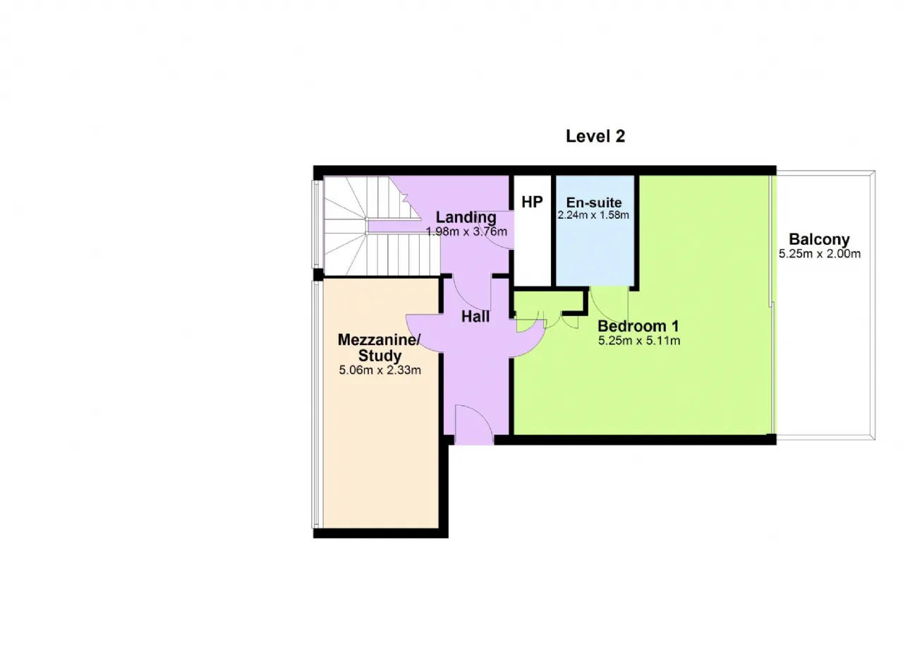
The oak timber feature staircase leads to the upper level. The stairs open at the return over a glass balustrade looks back to the living space below. The upper landing leads to a spacious mezzanine / study which overlooks the large and impressive living dining room below. The upper hallway separates the mezzanine from the master bedroom suite with en-suite bathroom. This impressive bedroom benefits from the morning sun and has access to very good-sized balcony. There are twos designated underground car parking space available with the penthouse.
Location:
Located off Merrion Road in the heart of Dublin’s prestigious Dublin 4, The Links, Elm Park Green has a host of amenities within easy reach. The villages of Sandymount, Ballsbridge and Blackrock are within walking distance each with a bustling village atmosphere with an array of shops, restaurants, cafes and pubs making it an attractive place to visit. Close by you will find the Aviva Stadium and the RDS. The immediate areas is also home to Wanderers Rugby Club, Elmpark Golf and Sports Club, Donnybrook Lawn Tennis Club and Sandymount Strand.
Many of Dublin’s top schools are also located close by including St Andres, Blackrock College, Willow Park, St, Conleths, St Michaels, Sion Hill, Teresian School and Booterstown National School. There are several Universities and third level collages and hospitals in the immediate vicinity including St. Vincent’s University and Public Hospital, Blackrock Clinic, University College Dublin, Trinity College Dublin and Royal College of Surgeons all within easy reach. Quality shopping facilities are located nearby in Blackrock, Frascati and Merrion Shopping Centres
Situated off the Merrion Road, close to the DART at Booterstown and Sydney Parade, and N11 the Links location in Dublin 4 is one of its major attractions. Both the Merrion Road and N11 dual carriage way offer direct access to and from the city centre. The N11 also features a Quality Bus Corridor (QBC) that provides public transport links to the City North, South and other surrounding areas. Also on your doorstep is the Aircoach which takes passengers to Dublin International Airport via the Port Tunnel.
Elm Park is an award-winning, 17-acre campus with on-site amenities, including the Giraffe creche, the Epicurean Specialty Food & Wine outlet, The Art of Coffee Cafe, Gym & Wellness Centre including Strong Pilates Ireland, and The Club at Elm Park which organises a range of activities for residents.
Please call Aramark Property Management on 01 8715400 who are the engagement agents should you need any information.
Notice:
Please note we have not tested any apparatus, fixtures, fittings, or services. Interested parties must undertake their own investigation into the working order of these items and all information supplied. All measurements are approximate, and photographs provided for guidance only.
Directions:
Travelling from Ballsbridge along the Merrion Road pass the Merrion Gates on your left-hand side. Continue and take right hand turn into Elmpark Green at the traffic lights. Continue into the development. Take the immediate turn right – sign for ‘The Links’. Continue straight through the development and follow the road around to the rear of the development. The Links crescent shaped block will be located on your left-hand side.
Contact Us
Our team of financial experts are online, available by call or virtual meeting to guide you through your options. Get in touch today
Thank you
Your message has been sent successfully, we will get in touch with you as soon as possible.
Error
Could not submit form. Please try again later.
Features
Superb location within walking distance to Booterstown and Sydney Parade DART stations
Spacious three-bedroom duplex penthouse
Large, impressive living room with kitchen dining room
Mezzanine Study
Three bathrooms
Solid oak flooring
Panoramic views of Elmpark Golf Club
Underfloor district heating throughout
Air-condition to living area
Individual thermostat – controls the under-floor heat to each room
Monitored CCTV security system throughout the development
Designated two underground car parking space in managed car park
Management Company
Elmpark Residents Owners Management Company
There is ONE underground car parking space with the property.
Annual Service Charge €4,200
BER Information
BER Number: 106712615
Energy Performance Indicator: 224.98 kWh/m²/yr
About the Area
Ballsbridge is a highly desirable Dublin suburb that extends northwards towards the Grand Canal, southwards towards Donnybrook, and westwards to encompass the area around Pembroke Road, Clyde Road, Elgin Road, and Herbert Park. The bulk of Dublin's embassies and many diplomatic residences are located in the southern part of Ballsbridge on and around Ailesbury Road. The RDS has its grounds here, and the Lansdowne Road headquarters of the Irish Rugby Football Union (IRFU) is on the boundary between Ballsbridge and Irishtown. The corporate headquarters of Allied Irish Banks (AIB) are also located in Ballsbridge.
Get Directions Buying property is a complicated process. With over 40 years’ experience working with buyers all over Ireland, we’ve researched and developed a selection of useful guides and resources to provide you with the insight you need..
From getting mortgage-ready to preparing and submitting your full application, our Mortgages division have the insight and expertise you need to help secure you the best possible outcome.
Applying in-depth research methodologies, we regularly publish market updates, trends, forecasts and more helping you make informed property decisions backed up by hard facts and information.
Need Help?
Our AI Chat is here 24/7 for instant support
Help To Buy Scheme
The property might qualify for the Help to Buy Scheme. Click here to see our guide to this scheme.
First Home Scheme
The property might qualify for the First Home Scheme. Click here to see our guide to this scheme.
