Thank you
Your message has been sent successfully, we will get in touch with you as soon as possible.
€270,000 Sold
Contact Us
Our team of financial experts are online, available by call or virtual meeting to guide you through your options. Get in touch today
Error
Could not submit form. Please try again later.
50 Rathowen
Duntaheen
Fermoy
Co Cork
P61PW25
Description
No 50 Rathowen extends to approximately 1000 sq. ft. of well-proportioned living accommodation and benefits from a private off street driveway to the front with garden to the side and rear. The property is located within walking distance of all local amenities including local primary and secondary schools, and is within 5 minute commute of the M8 Cork/Dublin motorway.
The property benefits from being located in a private cul de sac setting and overlooks a green area and mature trees to the front.
Features
• Quiet cul de sac location
• Walking distance of national and secondary schools
• Walking distance of town centre
• Overlooking green area
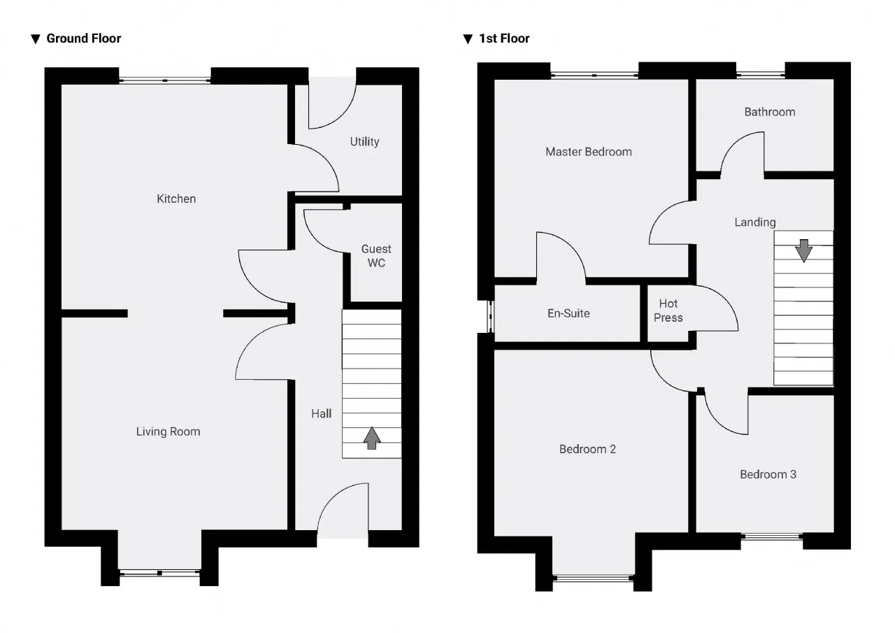
Rooms
Kitchen / Dining Room 4m x 3.9m Vinyl floor covering. Wall and eye level kitchen units. Radiator.
Utility Room 1.9m x 1.9m Plumbed for washing machine and dryer. Door leading to rear garden.
Living Room 3.65m x 3.9m Vinyl floor covering. Bay window. Solid fuel open fireplace. Radiator.
Guest WC Wc., vanity with whb.
Landing 3.6m x 2.4m
Master Bedroom 3.5m x 3.4m Timber Flooring. Radiator.
Ensuite 2.37m x 1m Vinyl flooring. Wc., whb and electric shower. Radiator.
Bedroom 2 3.7m x 2.8m Timber flooring. Radiator.
Bedroom 3 2.4m 2.3m Timber flooring. Radiator.
Bathroom 2.5m x 1.6m Vinyl flooring. Wc., whb., and bath.
BER Information
BER Number: 118638808
Energy Performance Indicator: 182.66
About the Area
Fermoy (pop. 2,270) lies about 30 miles to the north-east of Cork city on the Blackwater River. It was a garrison town and at one time had the largest concentration of troops in the country. Today the town is well known for angling, particularly salmon. It is strategically located, just where the main roads from Dublin to Cork and Rosslare to Killarney intersect.
The Blackwater valley is well known for its period houses and one of the finest, Castle Hyde, now owned by Micheal Flatley of Riverdance, is just outside the town. It was once the home of Douglas Hyde, founder of the Gaelic League and the first President of the Irish Republic.
Get Directions Buying property is a complicated process. With over 40 years’ experience working with buyers all over Ireland, we’ve researched and developed a selection of useful guides and resources to provide you with the insight you need..
From getting mortgage-ready to preparing and submitting your full application, our Mortgages division have the insight and expertise you need to help secure you the best possible outcome.
Applying in-depth research methodologies, we regularly publish market updates, trends, forecasts and more helping you make informed property decisions backed up by hard facts and information.
Need Help?
Our AI Chat is here 24/7 for instant support
Help To Buy Scheme
The property might qualify for the Help to Buy Scheme. Click here to see our guide to this scheme.
First Home Scheme
The property might qualify for the First Home Scheme. Click here to see our guide to this scheme.
