Thank you
Your message has been sent successfully, we will get in touch with you as soon as possible.
€495,000
Contact Us
Our team of financial experts are online, available by call or virtual meeting to guide you through your options. Get in touch today
Error
Could not submit form. Please try again later.
Ard Cathan
Scarteen
Newmarket
Co. Cork
P51KP89
Description
A viewing come highly recommended and by appointment only.
Features
Extending to over 4200 sq ft
Large detached garage
Electric gates
Set on a generous 0.72 acre site
Mature landscaped gardens
Less than 1km from Newmarket town.
Mains water/Septic tank
Ber B2-eligible for green mortgage.
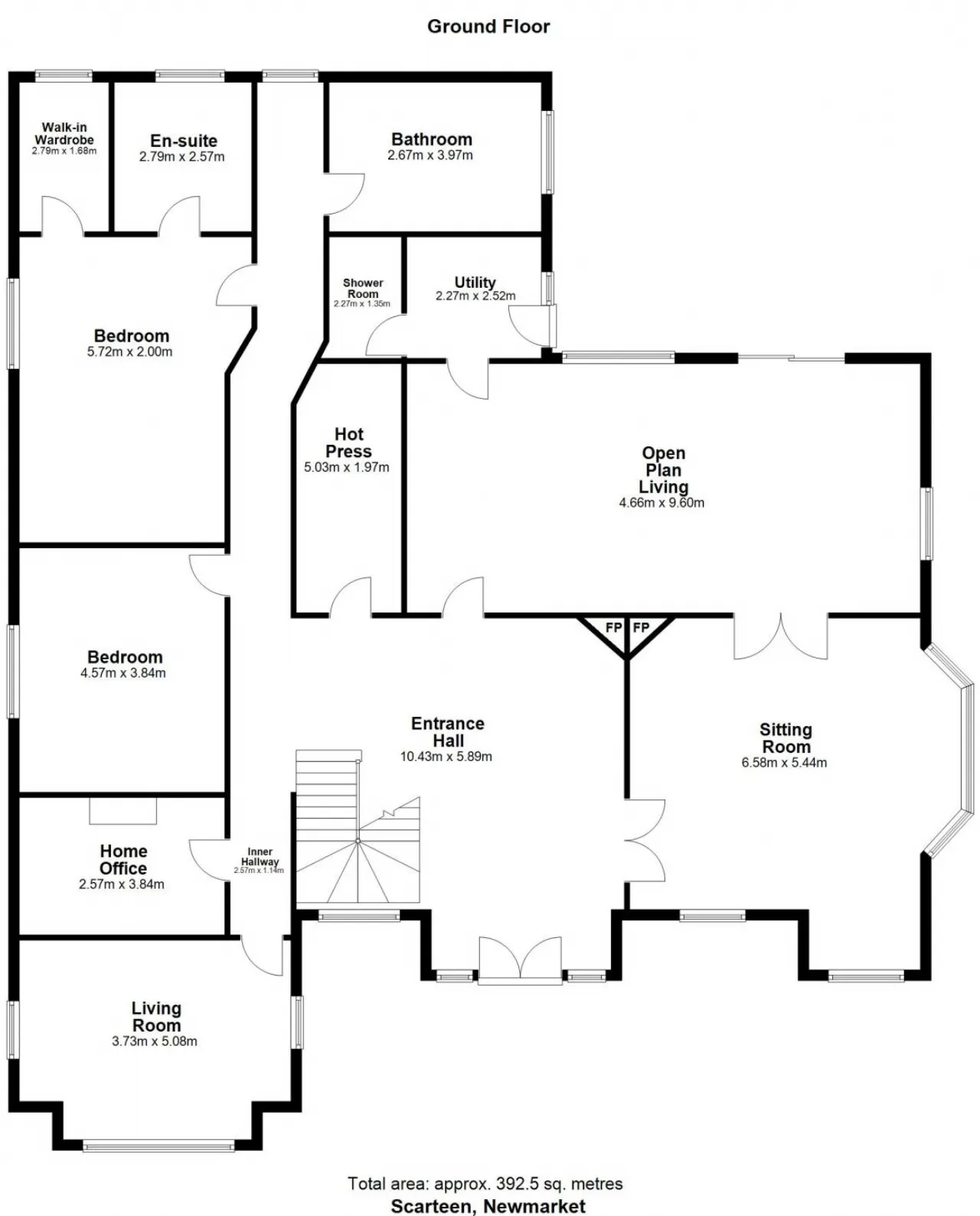
Rooms
Cloakroom 5.03m x 1.97m Carpet. Fitted Shelving.
Sitting Room 6.58m x 5.44m Carpet. Feature bay window with recessed lighting. Solid Fuel stove with marble surround. Double doors to kitchen/dining room.
Kitchen Dining Room 4.66m x 9.6m Polished porcelain tiled floor. Fully Fitted kitchen with feature island. herringbone laminate flooring in dining area. Sliding doors to patio area.
Utility Room 2.27m x 2.52m Polished porcelain tiled flooring. Fully fitted units with sink. Plumbed for washing machine or dryer. Door to rear.
Shower room 2.27m x 1.35m Fully tiled. Whb with vanity. Shower and Toilet.
Living Room 3.73m x 5.08m Carpet. Cornicing to ceiling. Triple aspect.
Office 2.57m x 3.84m Carpet Cornincing to ceiling.
Bedroom 2 4.57m x 3.84m Carpet.
Master Bedroom 5.72m x 4m Carpet.
En-Suite 2.79m x 2.57m Tiled Flooring. Tiled effect pannelling on walls. Whb with vanity unit. Toilet and Shower.
Walk In Robe 2.79m x 1.68m Carpet. Fitted shelves and rails.
Bathroom 2.67m x 3.97m Laminate Flooring. Recessed lighting. Feature wall pannelling. Whb with vanity unit. Shower and Toilet.
Landing 10.21m x 7.77m Carpet. Velux Window.
Bedroom 3 3.07m x 4.16m Carpet.
Bedroom 4 4.26m x 4.85m Carpet
Walk In Robe 1.59m x 4.75m Carpet
Bedroom 5 4.14m x 4.2m Carpet
Walk In Robe 3.06m x 4.14m Carpet.
Bedroom 6 3.06m x 5.78m Carpet
Walk In robe 1.74m x 2.17m Carpet. Fitted Rails.
Bathroom 3m x 2.36m Fully Tiled. Whb with vanity. Shower and toilet.
BER Information
BER Number: 118855345
Energy Performance Indicator: 108.52
About the Area
Kanturk is a town in the north west of County Cork. It is about 50 kilometres (31 miles) from Cork, Blarney and Limerick, and lies just north off the main N72 road, 15 km (9 miles) from Mallow and about 40 km (25 miles) from Killarney.
It is a small market town, which after many years with a static population has commenced to grow again. Apart from its creamery which produced casein from milk, a raw material for early plastics, its former knitwear facility now produces concrete flooring products.
Get Directions Buying property is a complicated process. With over 40 years’ experience working with buyers all over Ireland, we’ve researched and developed a selection of useful guides and resources to provide you with the insight you need..
From getting mortgage-ready to preparing and submitting your full application, our Mortgages division have the insight and expertise you need to help secure you the best possible outcome.
Applying in-depth research methodologies, we regularly publish market updates, trends, forecasts and more helping you make informed property decisions backed up by hard facts and information.
Need Help?
Our AI Chat is here 24/7 for instant support
Help To Buy Scheme
The property might qualify for the Help to Buy Scheme. Click here to see our guide to this scheme.
First Home Scheme
The property might qualify for the First Home Scheme. Click here to see our guide to this scheme.
