Thank you
Your message has been sent successfully, we will get in touch with you as soon as possible.
€795,000 Sold
Contact Us
Our team of financial experts are online, available by call or virtual meeting to guide you through your options. Get in touch today
Error
Could not submit form. Please try again later.
27 Cloister Way
Blackrock
Co. Dublin
A94 X7X9
Description
The property is ideally positioned on a quiet cul de sac and boasts a sunny west facing rear garden. No.27 Cloister Way has been well maintained and upgraded over the years by its current owners. It is an ideal purchase for a first-time buyer, family or indeed someone moving from a larger home in the area.
The bright well-proportioned accommodation currently comprises; entrance hallway with guest wc, living room with a bay window overlooking the front, open plan kitchen/dining room to the rear with French doors out onto the sunny rear garden. Upstairs there are three well-proportioned bedrooms with the main bedroom availing of an upgraded en-suite shower room. A contemporary family bathroom completes the internal accommodation.
The garden to the rear is a particular feature of this home with its sunny westerly aspect. It is laid out with patio and lawn and has a Barna shed and measures approx. 10m (32ft).
From the front door you are within walking distance of Blackrock village and the myriad of amenities that it has to offer, including a wide range of specialist shops, restaurants and shopping centres. With fantastic transport links including the DART and QBC. Enjoy pleasant walks along the seafront in Blackrock or closer to home in Carysfort Park. There is an excellent selection of primary and secondary schools close by including Blackrock College, St Andrews College, Carysfort National School, Hollypark National School and Sion Hill to name but a few within the immediate area.
Garden:
The property is approached by walled and pillared entrance onto cobble drive with off-street parking. The remainder of the front garden is laid out in gravel with mature planting. The rear garden is a particular feature of this home availing on an enviable sunny westerly facing rear garden, it is laid out with patio and lawn with walled boundary and Barna shed. The garden measures approx. 10m (32ft) in length.
Contact Us
Our team of financial experts are online, available by call or virtual meeting to guide you through your options. Get in touch today
Thank you
Your message has been sent successfully, we will get in touch with you as soon as possible.
Error
Could not submit form. Please try again later.
Features
Ideally situated in a quiet cul-de-sac in this highly regarded development
West facing rear garden of 10m (32ft) in length.
Excellent public transport including DART and QBC on N11
Within a short stroll of Blackrock Village
Surrounded by a host of highly regarded primary and secondary schools
Recently upgraded Bathrooms
Floor area of approximately 92qm (990sq.ft.) approx.
Rooms
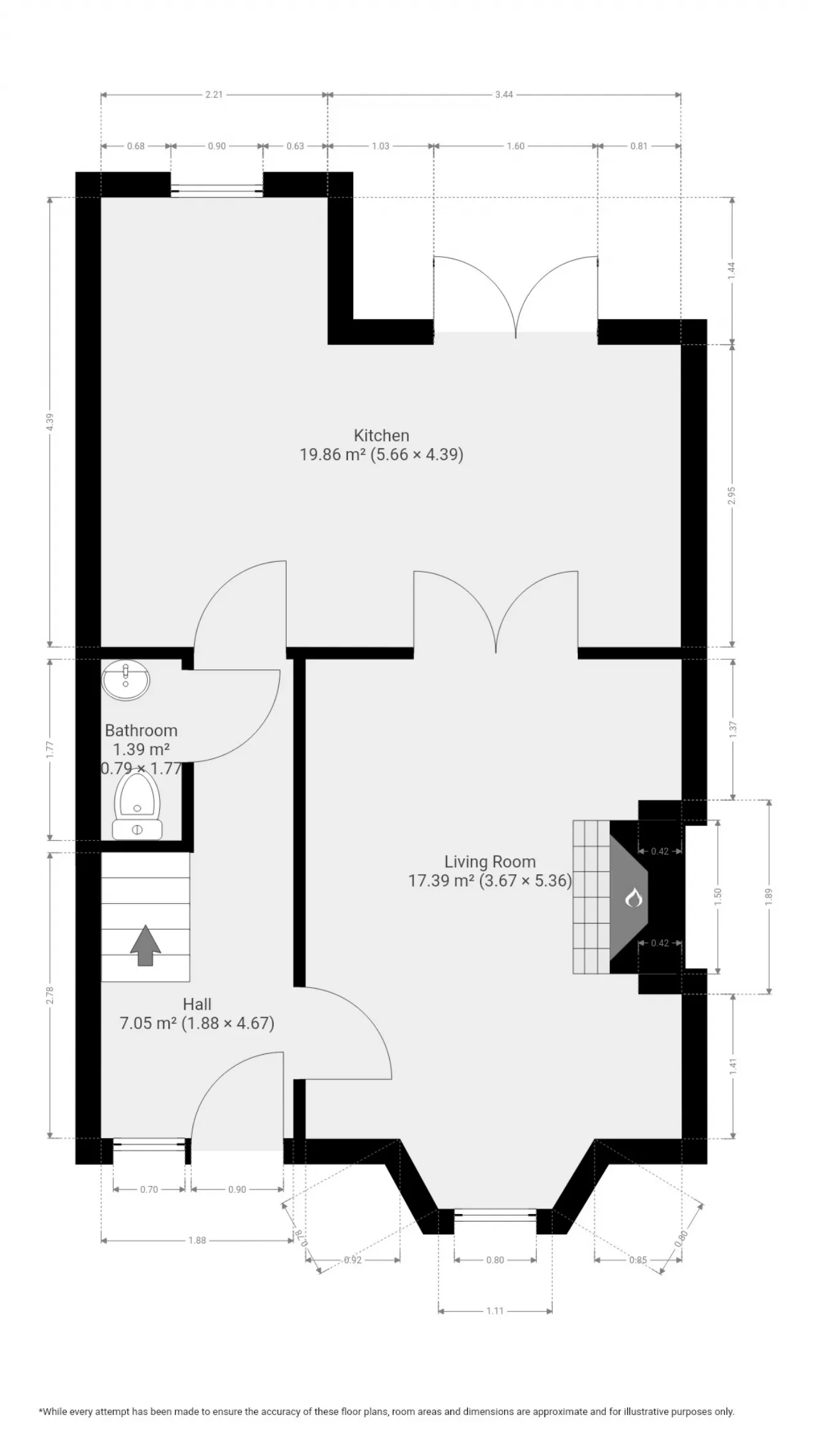
Guest WC 0.79m x 1.77m With wc, sink set in to vanity unit with tiled splash back, extractor fan
Living Room 3.67m x 5.36m With bay window overlooking the front, solid oak floor, ceiling coving, feature sandstone clad chimney breast with timber fireplace with marble insert and heart and gas inset, double doors opening into,
Open Plan Kitchen/Dining Room 5.66m x 4.39m
Dining Room With solid oak floor, ceiling coving, double doors to rear garden.
Kitchen Shaker style kitchen, tiled floor, tiled splash backs, Gourment classic cooker with extractor oven, Belfast sink, window to rear, door to press housing Worchester gas boiler with digital controls and recessed lighting,
Landing 3.12m x 2.35m With hatch to attic, door to shelved hot press with dual immersion
Bedroom 1 3.62m x 3.10m With window overlooking the front, excellent range of fitted wardrobes with door to
En Suite 1.71m x 2.18m Recently upgraded with tiled floor, semi-ped WC, wash hand basin set into vanity unit with storage, shower with metro tiles, 2 heated towel rails, window to front
Bedroom 2 3.01m x 3.46m With window overlooking the rear, excellent range of mirrored fronted sliding wardrobes
Bedroom 3 2.33m x 2.98m With window overlooking the rear
Bathroom 2.21m x 1.82m Recently upgraded, tiled floor, wc, wash hand basin set into vanity unit, bath with shower attachment over, Velux roof light, heated towel rail
BER Information
BER Number: 105596050
Energy Performance Indicator: 147.91 kWh/m2/yr
About the Area
Blackrock is a busy suburb, located 3 km (1.9 mi) northwest of Dún Laoghaire. It is bordered by Booterstown, Mount Merrion, Stillorgan, Foxrock, Deansgrange and Monkstown. The area is quite a large commercial centre with two shopping centres, cafes, bars, restaurants, boutiques, hairdressers and barbers, pharmacies, supermarkets, car dealerships, art galleries, antiques and home-improvement outlets. Blackrock has a station on the DART line, which is 15 minutes away, by train, from the city centre. Dublin Bus also serves the area with multiple bus routes. The Aircoach services to Dublin Airport from Dalkey and Greystones call at Blackrock en route to the airport.
Get Directions Buying property is a complicated process. With over 40 years’ experience working with buyers all over Ireland, we’ve researched and developed a selection of useful guides and resources to provide you with the insight you need..
From getting mortgage-ready to preparing and submitting your full application, our Mortgages division have the insight and expertise you need to help secure you the best possible outcome.
Applying in-depth research methodologies, we regularly publish market updates, trends, forecasts and more helping you make informed property decisions backed up by hard facts and information.
Need Help?
Our AI Chat is here 24/7 for instant support
Help To Buy Scheme
The property might qualify for the Help to Buy Scheme. Click here to see our guide to this scheme.
First Home Scheme
The property might qualify for the First Home Scheme. Click here to see our guide to this scheme.
