Thank you
Your message has been sent successfully, we will get in touch with you as soon as possible.
€1,950,000
Contact Us
Our team of financial experts are online, available by call or virtual meeting to guide you through your options. Get in touch today
Error
Could not submit form. Please try again later.
14 Castleknock Lodge
Castleknock
Dublin 15
D15 N7YK
Description
Set on a mature, generously sized site of approx. 0.24 acres, this elegant home has been meticulously maintained since its construction in 1977 and is presented in very good condition throughout. Nestled in a peaceful cul-de-sac, yet just moments from the vibrant Castleknock Village, the location strikes the perfect balance between tranquility and convenience. The L-shaped plot features a welcoming horseshoe driveway providing ample off-street parking for multiple cars, complemented by mature flower beds and a neatly tended lawn to the side. A secure side gate opens onto beautifully landscaped, mature rear gardens adorned with specimen trees and shrubs — an idyllic private retreat for relaxation and outdoor enjoyment.
Internally all the rooms are of large proportions and upon entering you are welcomed into a bright and spacious hallway. Off the hallway is the impressive main living room with its feature marble fireplace, double doors lead to the formal dining room. Also off the hallway is a second reception/family room ideal for young families to entertain. To the rear of the house is the open plan kitchen/breakfast room with beautiful views over the rear garden and lawn captured by the 2 large windows. Off the kitchen lies the utility with access to both the rear garden and internal garage. Upstairs there are 5 generously proportioned bedrooms, 2 en-suites and 4 of the bedrooms have fitted wardrobes. A family bathroom completes the accommodation on this level.
Enviably located between Castleknock Village and the magnificent expanses of the Phoenix Park No 14 is within walking distance of a choice of shops, eateries and National & Secondary Schools. For sporting enthusiasts, Castleknock Lawn Tennis Club and St Brigid's Russell Park GAA are just a short walk. There are numerous Golf Courses in the vicinity. For the commuter, access to the N3, M3 and M50 is particularly convenient. The City Centre is well served by bus and train is 7km, the IFSC is 8km, Four Courts 6km, Mater Misericordiae Hospital 6km, St James Hospital 6km & Dublin Airport is 16 km, (15/20 minutes’ drive). The main Castleknock road can be accessed through a private pedestrian gate at the bottom of Castleknock Lodge which ensures that you are less than a 2min walk from the Bus stop and approx.10 minutes walk from Castleknock train station. All times and distances are approximate. This is a rare opportunity to acquire an outstanding family home in the heart of Castleknock Village,
No. 14 Castleknock Lodge offers a rare opportunity to acquire a cherished family home in a sought-after neighbourhood — ready to welcome its next chapter.
Viewing is highly recommended and is by private appointment with Julian Cotter of Sherry FitzGerald Castleknock.
Contact Us
Our team of financial experts are online, available by call or virtual meeting to guide you through your options. Get in touch today
Thank you
Your message has been sent successfully, we will get in touch with you as soon as possible.
Error
Could not submit form. Please try again later.
Features
Large 5 bedroom detached on c.0.25 acre site
2 min walk to Castleknock Village
Walking distance to schools (primary and secondary)
Horseshoe driveway
Garage
Mature lawns and gardens
Oil fired central heating
Rooms
Entrance Hall 5.6m x 2.82m Large welcoming entrance hall, with feature stained glass windows to either side of the front door. Understair cloak closet.
Guest WC 1.8m x 1m Contains wc and wash hand basin
Living Room 7.5m x 4m Large formal living room with feature Marble fireplace (open fire), double doors lead to the dining room.
Dining Room 5m x 3.8m Generously propetioned and overlooking the rear garden. Door to kitchen/breakfast room.
Family Room 4.4m x 3.1m Located off the main hallway with feature Marble fireplace (open fire).
Kitchen/Breakfast Room 5.7m x 3.8m Open plan kitchen/breakfast room, fully fitted kitchen with breakfast counter, good selection of floor and eye level presses. Integrated hob, oven and grill. Open plan to breakfast area and door to utility room.
Utility Room 3.8m x 3m Large back kithcen/utility with fitted work counters and stainless-steel sink, plumbed for washing machine and dryer. Door to rear garden and door to internal garage.
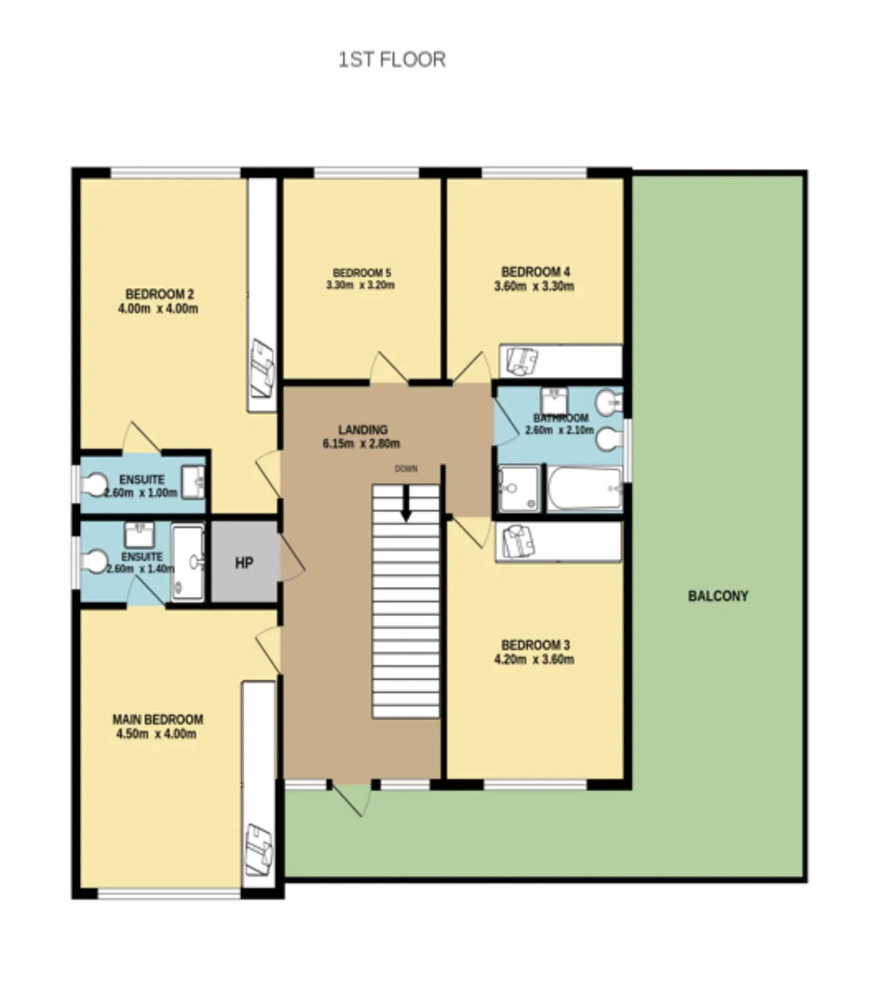
Landing 6.15m x 2.8m Bright and spacious landing with door to balcony. Hot-press and access hatch to attic.
Main Bedroom 4.5m x 4m Large double bedroom with fully fitted wardrobes, located to the front of the property.
En-Suite 2.6m x 1m Comprises of wc and wash hand basin, partly tiled walls
Bedroom 2 4m x 4m Large double bedroom with fitted wardrobes, shelving and dressing table, located to the rear of the property.
Bedroom 3 4.2m x 3.6m Double bedroom with fully fitted wardrobes, located to the front of the property.
Bedroom 4 3.6m x 3.3m Double bedroom with fitted wardrobes and dressing table, located to the rear of the property.
Bedroom 5 3.3m x 3.2m Double bedroom located to the rear of the property.
Bathroom 2.6m x 2.1m Contains a 5 piece suite with bath, shower, wc, bidet and wash hand basin. Partly tiled walls and tiled flooring.
Balcony 6.4m x 1.5m Wrap around balcony to the front and side of the house.
Internal Garage 5.8m x 3m Accessed from the utility room, could be easily converted into another reception room. Garage door to front.
BER Information
BER Number: 118577030
Energy Performance Indicator: 272.14 kWh/m²/yr
About the Area
Castleknock is a suburb of Dublin, located just 8 km (5 mi) west of the city centre. Several buses and DART serve the area, with the village located just inside the M50 motorway ring road. It is bordered to the west by Blanchardstown, the Phoenix Park, Dunsink and the village of Chapelizod above the Liffey valley. The area is home to a number of schools and amenities, including Mount Sackville and Castleknock Community College. In Castleknock Village Centre, Castlecourt Shopping Centre and Ashleigh Centre shopping precincts contain a variety of small local businesses and restaurants. There are three Health Centres located at Riverside, Corduff and Roselawn. The National Aquatic Centre is also nearby, as is the largest tennis facility in Ireland.
Get Directions Buying property is a complicated process. With over 40 years’ experience working with buyers all over Ireland, we’ve researched and developed a selection of useful guides and resources to provide you with the insight you need..
From getting mortgage-ready to preparing and submitting your full application, our Mortgages division have the insight and expertise you need to help secure you the best possible outcome.
Applying in-depth research methodologies, we regularly publish market updates, trends, forecasts and more helping you make informed property decisions backed up by hard facts and information.
Need Help?
Our AI Chat is here 24/7 for instant support
Help To Buy Scheme
The property might qualify for the Help to Buy Scheme. Click here to see our guide to this scheme.
First Home Scheme
The property might qualify for the First Home Scheme. Click here to see our guide to this scheme.
