Thank you
Your message has been sent successfully, we will get in touch with you as soon as possible.
€9,250,000
Contact Us
Our team of financial experts are online, available by call or virtual meeting to guide you through your options. Get in touch today
Error
Could not submit form. Please try again later.
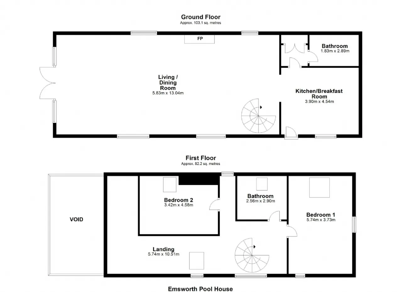
Emsworth
Kinsealy
Malahide Road
Co. Dublin
D17 EF98
Description
• Magnificent period house designed by James Gandon in 1794
• 5 reception rooms and 4 bedroom suites
• Fully refurbished Guest House (2 additional bedrooms)
• 17 acres of landscaped gardens, terraces, tennis court/sports pitch and floodlit paddle court
• Heated outdoor swimming pool and jacuzzi with two BBQ and dining areas and an outside TV and bar area
• Fully equipped gym with separate Pilates room, sauna and cold plunge
• Idyllic parkland surroundings, including a feature lake and extensive mature woodland
• About 58 acres of freehold agricultural land surrounding the house leased on a long-term deal to Teagasc
A distinguished Georgian estate of architectural significance, Emsworth occupies a remarkable position just 12 kilometres from Dublin City Centre. Extending to about 75 acres, the estate offers complete privacy and security in a unique setting close to Dublin Airport.
Originally designed by renowned architect James Gandon and completed in 1794, this elegant villa, one of Gandon's only known residential commissions, has been comprehensively renovated to an exceptional standard, achieving a seamless blend of period grandeur and modern living. Emsworth also contains a tunnel, believed to have been conceived by Gandon himself, which provides a discreet underground connection to the neighbouring Abbeyville Estate. Now blocked at both ends, the tunnel remains a rare and historically significant feature and adds an intriguing layer to the property's rich heritage.
A recent extension designed by Henry J Lyons, one of Ireland's leading architectural practices, introduces light-filled spaces that connect the main house to the Guest House. These have been exquisitely designed and finished, enhancing the property's historic character while embracing contemporary style and comfort.
Set on about 17 acres of beautifully landscaped grounds, Emsworth enjoys a private yet accessible setting, approached via electric gates and a sweeping, tree-lined gravel driveway. The mature grounds surrounding the house are a key feature, offering both privacy and a scenic rural backdrop, while also providing a wealth of amenities. These include formal gardens, two kilometres of woodland walks, an ornamental lake with a decked seating area, a floodlit paddle court and sports pitch, as well as an outdoor heated swimming pool and jacuzzi with adjoining BBQ areas.
Additionally, the estate offers alternative accommodation options, including a magnificent two-bedroom Guest House, recently renovated to the same high standards as the main residence.
The property is enveloped in a U-shape by about 58 acres of leased agricultural land, which surrounds the core estate and further enhances its exceptional privacy and security.
Emsworth presents a unique opportunity to acquire an exceptional combination of high-quality assets in a truly unrivalled setting, all within a highly accessible and central location.
Local information
• Emsworth enjoys a prestigious and highly sought-after location in Kinsealy, just outside the charming coastal village of Malahide, and only 12 kilometres north of Dublin City Centre.
• Kinsealy is a picturesque and well-established suburb known for its peaceful residential character, it offers a perfect balance of countryside tranquillity and convenient access to urban amenities. It benefits from nearby schools, shops, and transport links, making it a highly desirable location.
• Malahide is renowned for its charming harbour, vibrant village atmosphere, and rich maritime heritage. The area offers an excellent blend of rural serenity and modern convenience, making it one of Dublin's most desirable residential locations.
• The village itself provides an array of amenities, including boutique shops, acclaimed restaurants, cafes, and pubs, alongside cultural attractions such as Malahide Castle and Gardens. The marina and nearby beaches offer a wealth of recreational opportunities, from sailing and fishing to coastal walks and cycling.
• Golf enthusiasts are well catered for, with a selection of world-class championship courses nearby. These include Portmarnock Golf Club, Royal Dublin Golf Club, and The Island Golf Club, three of Ireland's premier links courses. Royal Portrush Golf Club, host of multiple major championships, is also easily accessible via the motorway network.
• Dublin Airport is just 6 kilometres distant, providing swift access to international travel, while Dublin City Centre is easily reachable by road or public transport. Malahide is well served by a regular DART rail service, connecting seamlessly to the city and surrounding areas.
• The estate is positioned on the Malahide Road, offering excellent road links to the M1 motorway and the broader national road network, facilitating easy commutes to Dublin's business districts and beyond.
• Emsworth's unique setting within this prestigious coastal community combines the best of country living with the advantages of proximity to the capital, creating an exceptional lifestyle opportunity.
Contact Us
Our team of financial experts are online, available by call or virtual meeting to guide you through your options. Get in touch today
Thank you
Your message has been sent successfully, we will get in touch with you as soon as possible.
Error
Could not submit form. Please try again later.
About the Area
Kinsealy is an outer suburb of Dublin, on the Northside of the city, about 7 km from the city centre. It is located on the Malahide Road, in the former green belt between the suburbs of Balgriffin, Portmarnock and Malahide. The entire electoral division of Kinsaley also includes parts of the non-municipal towns of Portmarnock, Malahide, and Swords, and had a 2011 population of 8,475 people, up from 5,526 in 2006.
Kinsealy and is served by Dublin Bus routes 42, 42n, and 43. In addition to the few businesses in Balgriffin, Kinsealy has a pet shop, garden centre and greengrocer, and a research station of Teagasc. In the Drynam housing estate are a beauty salon, Chinese take-away and pharmacist.
Get Directions Buying property is a complicated process. With over 40 years’ experience working with buyers all over Ireland, we’ve researched and developed a selection of useful guides and resources to provide you with the insight you need..
From getting mortgage-ready to preparing and submitting your full application, our Mortgages division have the insight and expertise you need to help secure you the best possible outcome.
Applying in-depth research methodologies, we regularly publish market updates, trends, forecasts and more helping you make informed property decisions backed up by hard facts and information.
Need Help?
Our AI Chat is here 24/7 for instant support
Help To Buy Scheme
The property might qualify for the Help to Buy Scheme. Click here to see our guide to this scheme.
First Home Scheme
The property might qualify for the First Home Scheme. Click here to see our guide to this scheme.
