Thank you
Your message has been sent successfully, we will get in touch with you as soon as possible.
€1,900,000
Contact Us
Our team of financial experts are online, available by call or virtual meeting to guide you through your options. Get in touch today
Error
Could not submit form. Please try again later.
Description
A real bonus is that the property comes with approved planning permission for the refurbishment and extension of the existing house (WEB2632/24). The development consists of the construction of a single storey (50m2) extension to rear with a large kitchen and dining area with a double height entrance. The planning also covers a complete refurbishment of the existing house to include repointing and replacing the windows with new double-glazed acoustic sash windows. It also allows for some reconfiguration and the inclusion of ensuite facilities.
A large garage/workshop-office, opens directly onto Cambridge Road. The approved planning permission allows for the demolition of this and the construction of a new rear boundary wall with an access roller shutter to provide two car parking spaces. Alternatively, the site has mews potential subject to additional planning permission.
This welcoming home retains many period features to include ornate plasterwork, marble fireplaces, original doors and architraves, high ceilings and wonderful room proportions.
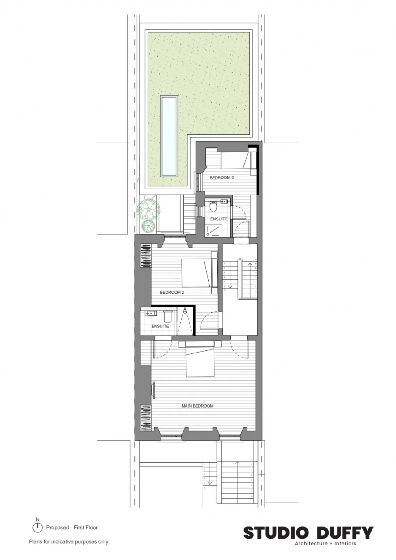
To the front of the house, a flight of granite steps leads to the hall level featuring an elegant hall, two impressive interconnecting reception rooms with many beautiful original features, and a kitchen on the return with steps down to the garden. Upstairs there are three bedrooms. The main room, spanning the full width of the house, has a wonderful vista overlooking the leafy and picturesque Belgrave Square, while the second double room overlooks the private, mature rear garden. The third bedroom, a generous single room, is positioned to the rear on the return. A family bathroom completes the accommodation at this level.
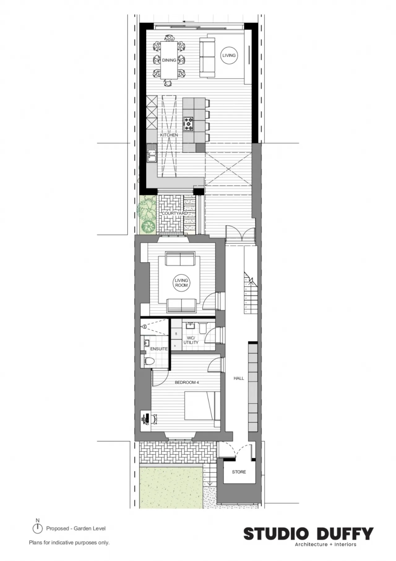
Several steps down from the front garden leads to the basement entrance. A neat lobby area leads into the inner hallway with good storage and a door to the rear garden. There is a living room, bedroom and shower room at this level.
The traditional railed garden to the front is laid out in lawn. The secluded rear garden is laid out mainly in lawn bordered with mature shrubs. A paved patio is positioned off the kitchen and benefits from the sunny aspect and is perfect for outside dining and entertaining.
The location is superbly convenient for all the local educational, recreational and retail amenities to hand in nearby Ranelagh and Rathmines. The Luas at Beechwood and Ranelagh are a short walk away, while the M50 is within easy reach facilitating travel around the city and further afield.
All told, Number 42 is a very welcoming home with immense potential set on large, mature, sunny gardens enjoying a superbly convenient location with Rathmines and Ranelagh on its doorstep.
Contact Us
Our team of financial experts are online, available by call or virtual meeting to guide you through your options. Get in touch today
Thank you
Your message has been sent successfully, we will get in touch with you as soon as possible.
Error
Could not submit form. Please try again later.
Features
Full planning permission for the refurbishment and extension of the existing house (WEB2632/24) adding 50 sqm approx.
70ft south-westerly rear garden
Large garage/studio-workshop to rear opening out onto Cambridge Road, offering development potential (subject to relevant planning permission)
Light-filled accommodation retaining many period features
4 bedrooms and 3 reception rooms
Nicely positioned on the sunny westerly side of the square overlooking Belgrave Square park
Superbly located with Rathmines and Ranelagh on its doorstep
Rooms
Entrance Hallway 4.82m x 1.77m Original Hall door with fan light, elaborate cornice, centre rose and archway.
Drawing Room 4.81m x 4.23m Sash window with working shutters, black marble fireplace with tiled surround, cornice, centre rose, double doors to:
Dining Room 4.82m x 4.23m To the rear with window shutters, marble fireplace with tiled surround, ceiling cornice and centre rose.
Steps to Hall Return
Kitchen/Breakfast Room 4.84m x 2.71m Range of timber wall and floor units, stainless steel sink with drainer, gas hob, twin ovens, NordMende dishwasher, integrated fridge, Formica countertop, tiled splashback, dual aspect windows, panelled walls and ceiling, linoleum floor covering, steps down to the rear garden.
First Floor Return Arched window, storage room
Bedroom 3 2.87m x 2.86m Single bedroom, fireplace with cast iron mantlepiece (covered by radiator), built in wardrobe, window, attic hatch.
Bathroom 1.87m x 1.40m WC, wash hand basin, bath, part tiled/part panelled walls, panelled ceiling, window.
First Floor
Main Bedroom/Bedroom 1 4.81m x 6.10 Two sash windows with working shutters with wonderful view over Belgrave Square, cornice, centre rose, marble mantlepiece, wash hand basin, fitted wardrobes, attic hatch.
Bedroom 2 4.82m x 4.13m Large double overlooking rear garden, window shutters, part panelled walls incorporating built in wardrobes and dressing table, coving, attic hatch.
Basement
Entrance Lobby Pitched pine ceiling, understairs storage, arch through to:
Living Room 4.16m x 4.24m Use as you will, ideal bedroom if needed. Bright and well-proportioned with marble fireplace with gas fire inset, inset bookshelves, fitted cupboard, picture window overlooking front garden and park.
Hallway 11.50m x 1.77m Storage cupboard with fuse board, cloak hanging, shelving unit, understairs storage incorporating gas meter, integrated Zanussi fridge-freezer, shelved press with immersion heater. Door to rear patio and garden.
Bedroom 4 5.47m x 4.24m Double room to rear, inset shelving, fitted wardrobes, picture window overlooking rear patio and garden.
Shower Room 3.34m x 2.47m Fully tiled, large shower cubicle, WC, wash hand basin, bathroom cabinet, 2 windows, pitched pine ceiling.
Front Garden Traditional railed front garden with pedestrian access, neatly lawned with mature flower beds. Pleasing views over Belgrave Square park. On street permit parking.
Rear Garden Original cut granite and brick walls, mature garden (L70ft approx.). Idyllic sunny south-westerly orientation. Bordered with flower beds and mature shrubs and trees. Lawn with pathway to garage/workshop/utility with plumbing for washing machine. Greenhouse.
Garage 5.13m x 2.50m Incorporating garage (5.13m x 2.5m), workshop (6.77m x 3.04m) and utility area (1.54m x 2.5m). Opens directly out onto Cambridge Road - very easy access.
Services GFCH Alarm TV Points Phone Points
About the Area
Rathmines is a vibrant suburb on the southside of Dublin, about 3 kilometres south of the city centre. It effectively begins at the south side of the Grand Canal and stretches along the Rathmines Road as far as Rathgar to the south, Ranelagh to the east and Harold's Cross to the west. Rathmines has thriving commercial and civil activity and is well-known across Ireland as part of a traditionally known "flatland" - providing rented accommodation to newly arrived junior civil servants and third level students coming from outside the city since the 1930s.
Get Directions Buying property is a complicated process. With over 40 years’ experience working with buyers all over Ireland, we’ve researched and developed a selection of useful guides and resources to provide you with the insight you need..
From getting mortgage-ready to preparing and submitting your full application, our Mortgages division have the insight and expertise you need to help secure you the best possible outcome.
Applying in-depth research methodologies, we regularly publish market updates, trends, forecasts and more helping you make informed property decisions backed up by hard facts and information.
Need Help?
Our AI Chat is here 24/7 for instant support
Help To Buy Scheme
The property might qualify for the Help to Buy Scheme. Click here to see our guide to this scheme.
First Home Scheme
The property might qualify for the First Home Scheme. Click here to see our guide to this scheme.
