Thank you
Your message has been sent successfully, we will get in touch with you as soon as possible.
€420,000 Sale Agreed
Contact Us
Our team of financial experts are online, available by call or virtual meeting to guide you through your options. Get in touch today
Error
Could not submit form. Please try again later.
Carrownagower Lower
Carrabane
Athenry
Co. Galway
H65 Y592
Description
together with Carrabane Forest Walk, Kilconieron GAA Club all within easy reach.
Set on a large site (c.0.54Acre), this property is offered for sale in excellent condition with bright and spacious accommodation throughout and will appeal to the discerning purchaser, be it the first time buyer or family market.
One has an opportunity here to acquire an attractive home in a most convenient location.
Viewing is highly recommended.
Loughrea c.7km / Athenry c.12km / Galway City c.35km / M6 Motorway c.6km
Features
Services: Private septic tank
Group Scheme
Rooms
Open Plan Kitchen/Living/Dining 8.10m x 5.71m Front and rear aspect windows, feature side aspect bay window Kitchen area: fitted wall and base units Living/Dining area: solid fuel insert stove, solid wood flooring
Utility Room 3.99m x 1.81m Rear aspect window and door, fitted base units
Bathroom 2.78m x 2.50m. Rear aspect window, whb/wc/shower/bath, tile flooring
Bedroom 1 4.04m x 3.66m Rear aspect window, solid wood flooring
Bedroom 2 3.98m x 3.65m Front aspect window, carpet flooring
First Floor
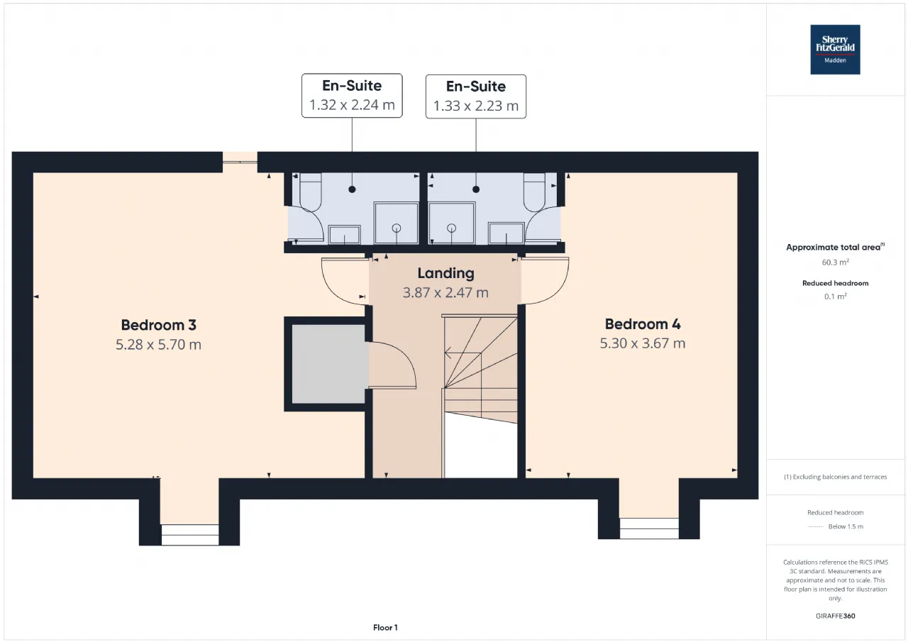
Landing 3.87m x 2.47m Skylight, large shelved hotpress/airing cupboard, Stira to attic
Bedroom 3 5.28m x 5.70m Rear aspect skylight, front aspect window, carpet flooring En-suite: 1.32m x 2.24m whb/wc/shower, laminate flooring
Bedroom 4 5.30m x 3.67m Rear aspect skylight, front aspect window, carpet flooring En-suite: 1.33m x 2.23m whb/wc/shower, laminate flooring
Garage c.25sqm Block built detached garage
Garden Large garden to front and rear of property laid to lawn with mature landscaping. Front stone wall boundary with tarmac driveway.
BER Information
BER Number: 112558044
Energy Performance Indicator: 166.25
About the Area
Athenry is a town in County Galway, 25 kilometres east of Galway city. One of the attractions of the town is a medieval castle. The Medieval walls around Athenry are among the most complete and best preserved in Ireland, and still retain a number of the original towers as well as the original North gate. In the centre of the town is the square; it is here that Athenry's late 15th century Market Cross is located. The monument is the only one of its kind in Ireland, and the only medieval cross still standing in situ in the country.
Get Directions Buying property is a complicated process. With over 40 years’ experience working with buyers all over Ireland, we’ve researched and developed a selection of useful guides and resources to provide you with the insight you need..
From getting mortgage-ready to preparing and submitting your full application, our Mortgages division have the insight and expertise you need to help secure you the best possible outcome.
Applying in-depth research methodologies, we regularly publish market updates, trends, forecasts and more helping you make informed property decisions backed up by hard facts and information.
Need Help?
Our AI Chat is here 24/7 for instant support
Help To Buy Scheme
The property might qualify for the Help to Buy Scheme. Click here to see our guide to this scheme.
First Home Scheme
The property might qualify for the First Home Scheme. Click here to see our guide to this scheme.
