Thank you
Your message has been sent successfully, we will get in touch with you as soon as possible.
€450,000
Contact Us
Our team of financial experts are online, available by call or virtual meeting to guide you through your options. Get in touch today
Error
Could not submit form. Please try again later.
Bothar An Chillin
Carraroe
Connemara
Co.Galway
H91TDT1
Description
A short walk to either Carraroe and its amenities,or the white sand beach at Trá Na Reilige, make this property particularly attractive.
The house and gardens are impeccably presented and maintained.
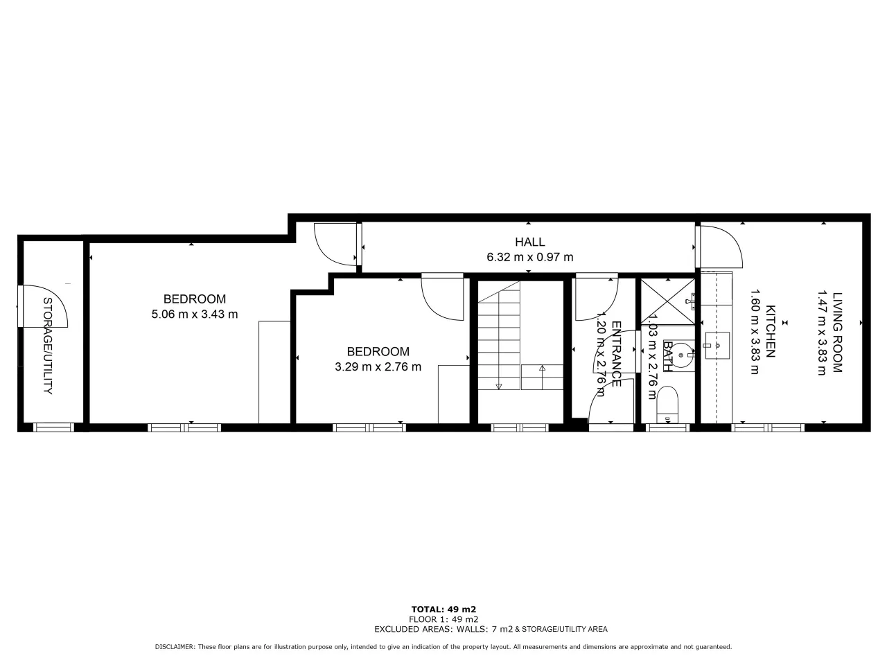
The split -level design ,over two floors allows for the easy conversion into two self-contained units as currently laid out. It can simply be reinstated as a larger five bedroom residence. The ground floor has an open plan living, dining and kitchen area, with three bedrooms a family bathroom and a utility room.
Stairs lead down to a further living / kitchen area, two bedrooms and bathroom. There is separate and private access to the floor.
Outside the grounds are beautifully maintained with ample storage space. A pretty suntrapped seated area creates a pleasant space to enjoy.
This is an exceptional property convenient to Carraroe and beaches, all set in an area of natural scenic beauty in the heart of Connemara.
Rooms
Living Room 7.49 x 3.42 Wood flooring
Dining Area 3.53 x 4.10 Wood flooring
Kitchen 3.73 x 3.38 Fully fitted
Bedroom 1 4.31 x 3.73 Over looking rear Garden
En-Suite 2.38 x 0.86
Bedroom 2 4.39 x 3.06 Wood flooring.Built in wardrobe .
Bedroom 3 4.13 x 3.23 Wood flooring.Built in wardrobe
Bedroom 4 5.06 x 3.43 Built in wardrobe. Wood flooring.
Bedroom 5 3.29 x 2.76 Wood flooring.Built in wardrobe
Living/ Dining Area 3.38 x 1.47 Wood Floor
Kitchen Area 3.38 x 1.60 Fully Fitted
Bathroom 2.76 x 1.03 With Shower
Utility Room 4.53 x 2.14 Tiled floor
BER Information
BER Number: 103054144
Energy Performance Indicator: 248.76Kwm2
About the Area
No description
Get Directions Buying property is a complicated process. With over 40 years’ experience working with buyers all over Ireland, we’ve researched and developed a selection of useful guides and resources to provide you with the insight you need..
From getting mortgage-ready to preparing and submitting your full application, our Mortgages division have the insight and expertise you need to help secure you the best possible outcome.
Applying in-depth research methodologies, we regularly publish market updates, trends, forecasts and more helping you make informed property decisions backed up by hard facts and information.
Need Help?
Our AI Chat is here 24/7 for instant support
Help To Buy Scheme
The property might qualify for the Help to Buy Scheme. Click here to see our guide to this scheme.
First Home Scheme
The property might qualify for the First Home Scheme. Click here to see our guide to this scheme.
