Thank you
Your message has been sent successfully, we will get in touch with you as soon as possible.
€360,000 Sale Agreed
Contact Us
Our team of financial experts are online, available by call or virtual meeting to guide you through your options. Get in touch today
Error
Could not submit form. Please try again later.
35 Jairdin Drive
Loughrea
Co. Galway
H62 W586
Description
Located approximately 5 minutes from M6 motorway, this impressive residence is presented for sale in excellent condition, boasting bright and spacious accommodation, affording one the opportunity here to acquire a quality home in a private yet convenient location.
Viewing is highly recommended and can be easily arranged through selling agent.
Features
Services: All mains services
Rooms
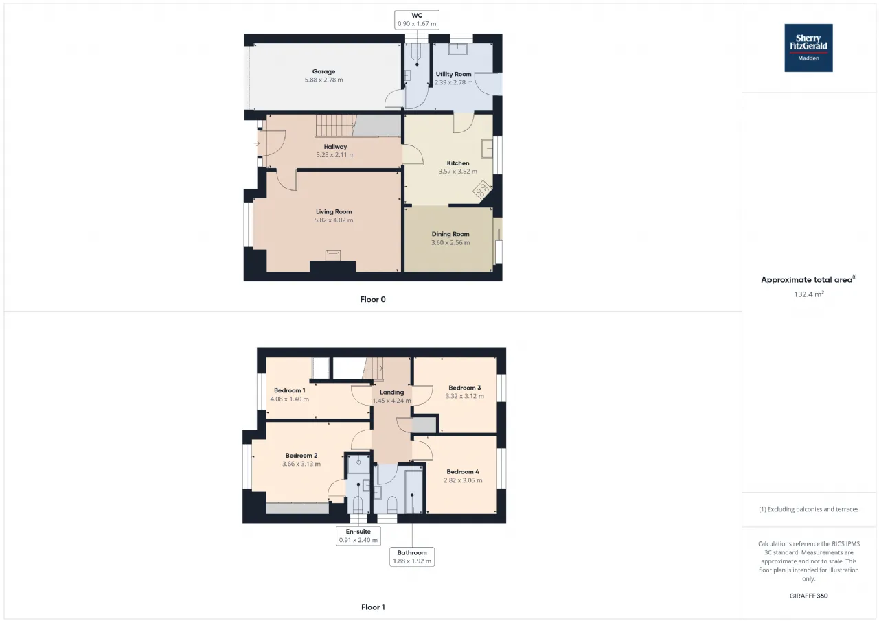
Living Room 5.82m x 4.02m Front aspect window, solid fuel stove, wooden flooring
Kitchen 3.57m x 3.52m Rear aspect window, fittec wall and base units, tile flooring
Dining Room 3.60m x 2.56m Rear aspect sliding door, tile flooring
Utility Room 2.39m x 2.78m Side aspect window, rear aspect door, fitted base units, tile flooring
Groundfloor w/c 0.90m x 1.67m Side aspect window, whb/wc, tile flooring
First Floor
Landing 1.45m x 4.24m Wooden flooring
Bedroom 1 4.08m x 1.40m Front aspect window, built-in wardrobe, wooden flooring
Bedroom 2 3.66m x 3.13m Front aspect window, fitted wardrobes, carpet flooring - En-suite: 0.91m x 2.40m - Side aspect window, whb/wc/shower, fully tiled
Bathroom 1.88m x 1.92m Side aspect window, whb/wc/bath with overhead electric shower, fully tiled
Bedroom 3 3.32m x 3.12m Rear aspect window, fitted wardrobe, wooden flooring
Bedroom 4 2.82m x 3.05m Rear aspect window, wooden flooring
Integral Garage Access to garage from front of property and also from the utility room - (offering potential for an addition room - subject to necessary permissions)
Garden/ Outdoors Large private garden to rear of property of property with block wall boundary. Garden laid to lawn with porcelain tile patio area. To front you have tarmac driveway with lawn area.
BER Information
BER Number: 104069224
Energy Performance Indicator: 171.18
About the Area
Loughrea is a town in County Galway, lying to the north of a range of wooded hills, the Slieve Aughty Mountains. The Town is also famous for its beautiful cathedral which dominates the town's skyline.
The town expanded in recent years as it increasingly becomes a commuter town for the city of Galway As well as being a dormer town for Galway, Loughrea now hosts a number of pharmaceutical and data-processing industries. Tourism and small cottage industries also play an important role in the community. Loughrea's tourist infrastructure is supported by several hotels, a country-resort, as well as many bed and breakfasts, restaurants, coffee-shops and pubs.
Get Directions Buying property is a complicated process. With over 40 years’ experience working with buyers all over Ireland, we’ve researched and developed a selection of useful guides and resources to provide you with the insight you need..
From getting mortgage-ready to preparing and submitting your full application, our Mortgages division have the insight and expertise you need to help secure you the best possible outcome.
Applying in-depth research methodologies, we regularly publish market updates, trends, forecasts and more helping you make informed property decisions backed up by hard facts and information.
Need Help?
Our AI Chat is here 24/7 for instant support
Help To Buy Scheme
The property might qualify for the Help to Buy Scheme. Click here to see our guide to this scheme.
First Home Scheme
The property might qualify for the First Home Scheme. Click here to see our guide to this scheme.
