Thank you
Your message has been sent successfully, we will get in touch with you as soon as possible.
€250,000 Sale Agreed
Contact Us
Our team of financial experts are online, available by call or virtual meeting to guide you through your options. Get in touch today
Error
Could not submit form. Please try again later.
Civic Buildings
Abbey Street
Portumna
Co. Galway
H53 F8Y6
Description
Abbey St, is at the heart of Portumna town and is full of character and charm, with it's well kept original buildings together with some newer development.
The front building extends to c. 319 sq.m over three floors together with renovated stone building to the rear. The property also features a large, private garden.
One has the opportunity here to acquire a property with excellent potential be it residential or investment and viewing is highly recommended.
Viewing is STRICTLY by appointment through Sherry FitzGerald Madden.
Features
Rooms
Entrance Hall 1.19m x 6.70m Tile Flooring
Room 2 2.87m x 3.29m Front aspect window, carpet flooring
Room 3 2.84m x 3.29m Rear aspect window, carpet flooring
First Floor - Landing 1.32m x 5.24m Front aspect window, vinyl flooring
Room 4 3.69m x 4.57m Front aspect window, carpet flooring - Kitchenette: 2.73m x 2.86m - tile flooring, rear aspect window - wc off: 0.86m x 2.57m - wc/whb
Room 5 - Meeting Room 5.78 x 6.81 Front and Rear aspect windows, carpet flooring
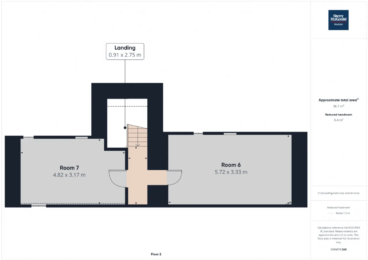
Second floor
Room 6 3.15m x 4.82m Rear velux window, carpet flooring
Room 7 3.33m x 5.71m Rear velux window, carpet flooring
Stone Building to Rear Comprises of one large room upstairs with a kitchenette off and a wc off. The ground floor comprises of an entrance hall and two large storage rooms one to the left and one to the right.
Garden Large garden to Rear of property
BER Information
BER Number: 801065160
Energy Performance Indicator: 557.64
About the Area
Portumna is a market town in the south-east of County Galway, on the border with County Tipperary. The town is located to the west of the point where the River Shannon enters Lough Derg. This historic crossing point over the River Shannon between counties Tipperary and Galway has a long history of bridges and ferry crossings. On the west side of the town is Portumna Castle and its forest park.
Get Directions Buying property is a complicated process. With over 40 years’ experience working with buyers all over Ireland, we’ve researched and developed a selection of useful guides and resources to provide you with the insight you need..
From getting mortgage-ready to preparing and submitting your full application, our Mortgages division have the insight and expertise you need to help secure you the best possible outcome.
Applying in-depth research methodologies, we regularly publish market updates, trends, forecasts and more helping you make informed property decisions backed up by hard facts and information.
Need Help?
Our AI Chat is here 24/7 for instant support
Help To Buy Scheme
The property might qualify for the Help to Buy Scheme. Click here to see our guide to this scheme.
First Home Scheme
The property might qualify for the First Home Scheme. Click here to see our guide to this scheme.
