Thank you
Your message has been sent successfully, we will get in touch with you as soon as possible.
€695,000
Contact Us
Our team of financial experts are online, available by call or virtual meeting to guide you through your options. Get in touch today
Error
Could not submit form. Please try again later.
1 Cahir Lodges
Cahir West
Kenmare
Co Kerry
V93 W088
Description
Cahir Lodge is an architecturally designed 3 bed residence, located in a peaceful setting on the Roughty River.
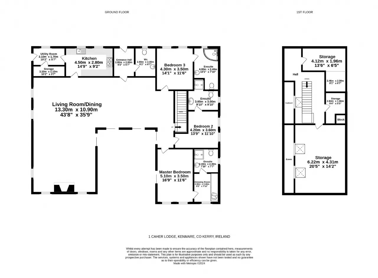
210 sq.mts (2,259 sq. ft) (approx.) of accommodation on 2 floors. GF: open plan living/ dining area / sitting area, kitchen,. 3 double bedrooms all ensuite. Guest wc and utility.
Attic area has an area of 67.50 sq.mts (726.30 sq. ft) approx.). It has been divided into 3 rooms. All services available in attic area.
The property was built in 2005. The house is beautifully presented and is finished to a high standard.
Set on c.0.57 acres (0.23 hectares) with southerly aspect. Prime location on the banks of the Roughty with views of the river and the countryside beyond.
1 Cahir Lodge is one of 3 houses within an exclusive private gated development on the Roughty River.
A sheltered central patio area which is ideal for entertaining, overlooks the grounds leading down to the river bank.
Located 3.7 km from the heritage town of Kenmare. Within 400 metres of Cahir National School.
Services: Public water supply. Septic Tank. Oil Central heating. Thermostatically controlled zoned heating. Wired for telephone. Wireless broadband. Automatic electronic gate.
Estimated annual management charge for the common areas is €1,000 per house. Covers, grass cutting, strimming, electricity, public liability insurance, administration and sinking fund.
Features
• Spacious rooms with large living area.
• Tastefully decorated throughout.
• Large courtyard patio, ideal for entertaining.
• Located on banks of the Roughty River.
• Light fixtures and blinds included in sale.
Services: Public water supply. Septic Tank. Oil Central heating. Thermostatically controlled zoned heating. Wired for telephone. Wireless broadband. Automatic electronic gate.
Light fixtures and blinds included in sale.
Estimated annual management charge for the common areas is €1,000 per house. Covers, grass cutting, strimming, electricity, public liability insurance, administration and sinking fund.
Rooms
Kitchen 2.80m x 4.50m Fitted kitchen with granite and natural wood surface. Ample storage space; "Range Master". Ring gas oven with electric hot plate and double oven. Tiled Flooring.
WC 2.80m x 2.00m WC, WHB
Utility Room & Storage 3.10m x 1.70m Plumbed for washing machine and dryer. Storage units. Storage room with "Domusa" Boiler
Bedroom 1 5.10m x 3.50m Views towards Roughty River. Patio sliding door leads to exterior patio. Laminate timber flooring. Telephone point. Tv Point.
En-suite and Dressing Area 4.10m x 4.80m Ensuite WC. WHB. Large shower area fully tiled. Dressing area contains a large amount of wardrobe space. High quality finish, thermostatically controlled heating. Curtains, light fixtures and blinds.
Bedroom 2 4.20m x 3.60m Laminate Wooden Floor. TV point
En-Suite 4.00m x 2.40m WC. WHB. Large bath with electric shower. Fully tiled.
Bedroom 3 4.00m x 3.50m Laminate wooded floor. TV point.
First Floor
Storage 2.84m x 1.66m
Ground Floor
Bedroom 4 6.22m x 4.31m Velux windows. Laminated flooring. Some wardrobe space. Electric sockets and lighting.
Bedroom 5 (see floor plan for dimensions) Velux windows. Laminated flooring. Some wardrobe space. Electric sockets and lighting.
Shower room 2.84m x 1.66m WC. WHB, Shower.
BER Information
BER Number: 109815902
Energy Performance Indicator: 179.65
About the Area
Cradled in the heart of Kenmare Bay, the picturesque town of Kenmare is the perfect location from which to discover the South West of Ireland, linking the world famous Ring of Kerry with the rugged Ring of Beara. Just bursting with amazing views and loads of other things that will inspire you to greatness and let your mind run wild. Founded in 1670, the unique charm and inherent beauty of the town remains unchanged. The Ireland Tourist Board, Bórd Fáilte, officially recognized the historical, cultural and environmental significance of Kenmare by bestowing up on it the title of Kerry’s first Heritage Town in Ireland.
Get Directions Buying property is a complicated process. With over 40 years’ experience working with buyers all over Ireland, we’ve researched and developed a selection of useful guides and resources to provide you with the insight you need..
From getting mortgage-ready to preparing and submitting your full application, our Mortgages division have the insight and expertise you need to help secure you the best possible outcome.
Applying in-depth research methodologies, we regularly publish market updates, trends, forecasts and more helping you make informed property decisions backed up by hard facts and information.
Need Help?
Our AI Chat is here 24/7 for instant support
Help To Buy Scheme
The property might qualify for the Help to Buy Scheme. Click here to see our guide to this scheme.
First Home Scheme
The property might qualify for the First Home Scheme. Click here to see our guide to this scheme.
