Thank you
Your message has been sent successfully, we will get in touch with you as soon as possible.
€350,000
Contact Us
Our team of financial experts are online, available by call or virtual meeting to guide you through your options. Get in touch today
Error
Could not submit form. Please try again later.
Canal Road
Johnstown
Co Kilkenny
E41 FP63
Description
An excellent opportunity to acquire a commercial premises with accommodation overhead, along with a total 1.6 acre holding, just off the centre of Johnstown, Co. Kilkenny.
With excellent development potential and generous road frontage with 3 no. points of access.
Options to purchase in one or more lots as follows:
Lot 1 - All buildings, outhouses and site to rear
Lot 2 - Commercial Building + Outhouses only
Lot 3 - Site to rear only
Further details and pricing of separate lots available upon enquiry with the sole selling agents, Sherry FitzGerald Gleeson.
Rooms
Deli 5.54m x 2.95m With stainless steel backsplash and tiled flooring
W.C 1.84m x 2.21m With W.C and W.H.B
First Floor
Hallway 2.03m x 1.27m
Office 1 3.07m x 4.55m Spacious office, ideal for additional storage
Office 2 4.18m x 2.96m Spacious office, ideal for additional storage
Bathroom 2.36m x 1.53m With W.C amd W.H.B
Outside
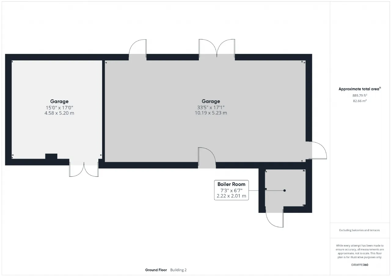
Garage 1 10.19m x 5.23m Ideal for storage
Garage 2 4.58m x 5.20m
Boiler Room 2.22m x 2.01m
BER Information
BER Number: 800959264
Energy Performance Indicator: 504.52
About the Area
Johnstown is an historic town in County Kilkenny. Bypassed in December 2008 by the M8, the town lies at the junction of the R639, the R502 and the R435 regional roads. It is the home of the Fenians GAA hurling club. Situated 121 kilometres (75 mi) from Dublin and 131 kilometres (81 mi) from Cork, it lies in the agricultural heartland of the southeast.
The village of Johnstown is over 200 years old and was once part of the barony of Galmoy. Route 828 operated by M & A Coaches on behalf of the National Transport Authority provides a daily journey each way to/from Cullohill, Durrow, County Laois, Abbeyleix and Portlaoise.
Get Directions Buying property is a complicated process. With over 40 years’ experience working with buyers all over Ireland, we’ve researched and developed a selection of useful guides and resources to provide you with the insight you need..
From getting mortgage-ready to preparing and submitting your full application, our Mortgages division have the insight and expertise you need to help secure you the best possible outcome.
Applying in-depth research methodologies, we regularly publish market updates, trends, forecasts and more helping you make informed property decisions backed up by hard facts and information.
Need Help?
Our AI Chat is here 24/7 for instant support
Help To Buy Scheme
The property might qualify for the Help to Buy Scheme. Click here to see our guide to this scheme.
First Home Scheme
The property might qualify for the First Home Scheme. Click here to see our guide to this scheme.
