Thank you
Your message has been sent successfully, we will get in touch with you as soon as possible.
€790,000
Contact Us
Our team of financial experts are online, available by call or virtual meeting to guide you through your options. Get in touch today
Error
Could not submit form. Please try again later.
"Curragha"
Mountrath Road
Portlaoise
Co. Laois
R32 CCN8
Description
Features
• Five spacious bedrooms, including a luxurious primary suite with walk-in wardrobe and en-suite
• Multiple reception rooms – living room, family room, and dedicated home office
• Bright kitchen/dining area with retro detailing and garden views
• Large utility/laundry room with excellent storage and workspace
• Three bathrooms + guest WC and powder room, with original fittings and character
• Original features preserved: parquet flooring, bespoke cabinetry, vintage fixtures
• Excellent layout – split-level design clearly zones living and sleeping areas
• Ideal for modernisation or restoration, with solid construction and distinctive style
• Private, mature grounds offering space, shelter, and scope for landscaping or extension
• Peaceful yet highly convenient setting, within walking distance of Portlaoise town centre.
• Rare opportunity to acquire a home of architectural pedigree with outstanding potential
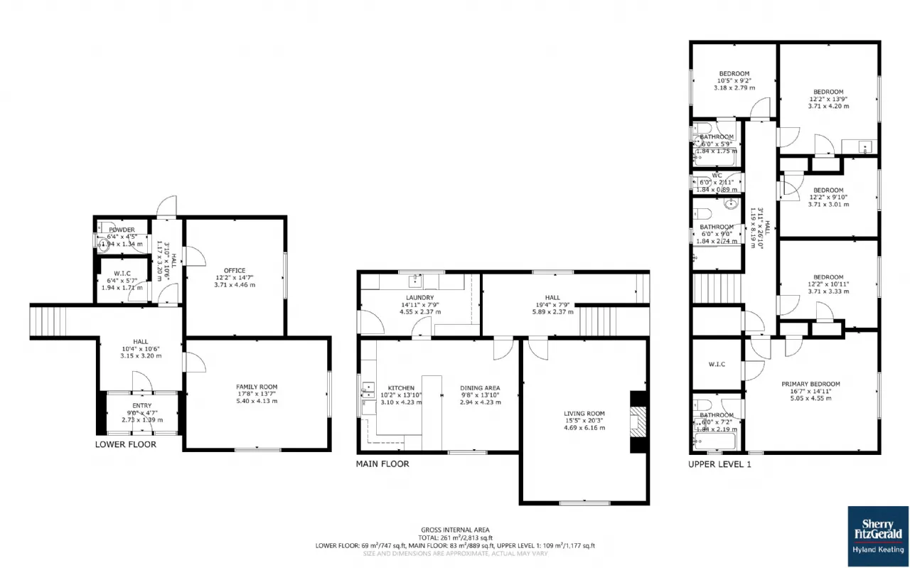
Rooms
Hall 5.89 x 2.37m This upper hallway offers a charming and well-lit transition space, featuring soft carpeting, ample natural light from a large window.
family room 5.40 x 4.13m This generously sized family room boasts large dual-aspect windows framing garden views, elegant crystal chandeliers, and wall lighting. A standout feature is the extensive built-in display and storage unit, ideal for entertaining or relaxing in comfort.
Office 3.71 x 4.46m The office is a bright and practical workspace featuring large windows with garden views and extensive built-in shelving and cabinetry—ideal for home working, study, or a hobby room.
WIC
Powder 1.94 x 1.34m Featuring a pedestal sink, toilet, and a frosted window for privacy.
Kitchen 3.10 x 4.23m The kitchen/dining area is bright and spacious, featuring a large island with breakfast bar, ample cabinetry, and generous natural light from dual-aspect windows—perfect for everyday living and entertaining.
Dining Room 2.94 x 4.23m
Laundry 4.55 x 2.37m The laundry room offers practical workspace with fitted base and wall units, tiled flooring, a stainless steel sink, and plumbing for appliances—ideal for household efficiency.
Living Room 4.69 x 6.16m This inviting living room features a classic stone fireplace flanked by custom cabinetry, ideal for displaying books or personal treasures. Large picture windows frame tranquil garden views, filling the space with natural light. Comfortable seating and warm décor offer a relaxed setting, perfect for everyday living and entertaining.
Upper Level Hall 1.19 x 8.19m The upper-level hallway is bright and spacious, with skylights and access to multiple bedrooms, featuring plush carpet and neutral tones throughout.
Bathroom 1.84m x 2.74m This upstairs bathroom features a modern walk-in shower with electric unit, tiled walls, and frosted window for privacy and natural light.
WC 1.84 x 0.89m This upstairs WC features a retro-style blue toilet, partial wall tiling, and a frosted window for privacy and natural light.
Bathroom ensuite 1.84 x 1.75m
Bedroom 3.71 x 3.33m This bright and charming bedroom features twin beds, floral curtains, and a large window.
Primary Bedroom 5.05 x 4.55m The spacious upper-level primary bedroom features dual aspect windows offering serene garden views, built-in storage, and a soft, neutral décor, creating a bright and tranquil retreat.
Primary bedroom ensuite 1.84 x 2.19m The primary bedroom ensuite includes a bath with overhead shower, pedestal sink, and WC, complemented by retro-style tiling and natural light from a frosted window.
BER Information
BER Number: 118500461
Energy Performance Indicator: 326.84 kWh/m²/yr
About the Area
Portlaoise stands at a major crossroads (Dublin, Limerick, Cork) although construction in the 1990s of the M7 motorway, which bypasses the town, has reduced traffic congestion in the town centre. The town has a railway station served by intercity trains between Dublin and Cork and by Dublin commuter services. Córas Iompair Éireann opened a rail depot south-west of Portlaoise town centre in 2008. The depot provides a high quality maintenance and servicing facility for the 183 new intercity railcars and some facilities for outer suburban railcars serving the Kildare Route.
Get Directions Buying property is a complicated process. With over 40 years’ experience working with buyers all over Ireland, we’ve researched and developed a selection of useful guides and resources to provide you with the insight you need..
From getting mortgage-ready to preparing and submitting your full application, our Mortgages division have the insight and expertise you need to help secure you the best possible outcome.
Applying in-depth research methodologies, we regularly publish market updates, trends, forecasts and more helping you make informed property decisions backed up by hard facts and information.
Need Help?
Our AI Chat is here 24/7 for instant support
Help To Buy Scheme
The property might qualify for the Help to Buy Scheme. Click here to see our guide to this scheme.
First Home Scheme
The property might qualify for the First Home Scheme. Click here to see our guide to this scheme.
