Thank you
Your message has been sent successfully, we will get in touch with you as soon as possible.
€320,000
Contact Us
Our team of financial experts are online, available by call or virtual meeting to guide you through your options. Get in touch today
Error
Could not submit form. Please try again later.
Description
Most recently used a private residence the properties adaptable layout ensures it is suitable for a wide variety of uses, the courthouse is within 50 metres and Mayo County Council headquarters is within 100 metres.
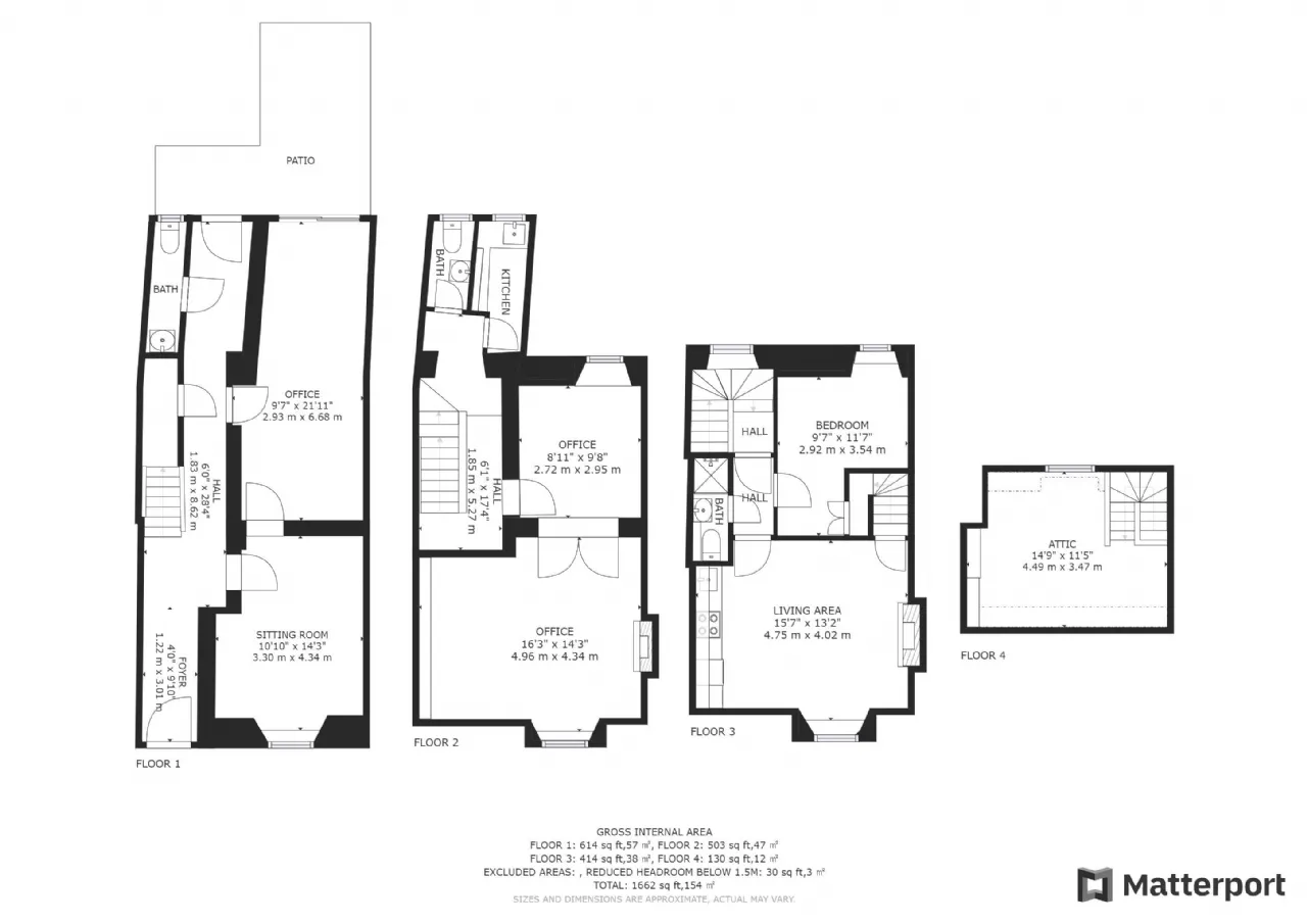
The accommodation which extends to approximately 154 square metres / 1,658 square feet is laid out over four floors and provides generous, well lite rooms with many attractive characteristics.
To the rear of the property lays arguable one of the most appealing features of number 100, a secret walled garden, a true gem in an otherwise hive of activity that is the centre of any modern town. The garden is complimented by stone building which houses a garden shed and additional office space, all are accessible via a pedestrian rear entrance.
Features
Stunning Private Garden.
154 square metres / 1,658 square feet.
Adaptable layout for varied uses.
Rooms
Entrance Foyer 1.22m x 3m
Hallway 1.83m x 8.64m
Sitting room 3.3m x 4.34m with cut stone walls and patio doors to the rear garden.
WC 0.76m x 1.52m with wc and wash hand basin.
Store room 0.76m x 1.83m
First Floor
Landing 1.85m x 5.28m
Office / Bedroom 4.95m x 4.34m with bay window and open fireplace.
Kitchenette 1.22m x 1.83m with fitted units.
Second Floor
Bedroom 2.92m x 3.53m with fitted wardrobes.
Kitchen Dining Room 4.75m x 4.01m with fiited units, bay window and open fireplace.
Shower room 0.91m x 1.88m with wc, wash hand basin and shower unit.
Fourth Floor
Office / living space 4.5m x 3.48m with vaulted ceilings and roof windows.
BER Information
BER Number: 800696882
Energy Performance Indicator: 572.07
About the Area
Castlebar is the largest town in Mayo, by population. Castlebar's population boomed in the late 1990s, rising by one-third in six years, and the town is still growing. According to the 2011 Census it stands at 10,826. A campus of Galway-Mayo Institute of Technology and the Country Life section of the National Museum of Ireland are two important local amenities. The town is linked by railway to Dublin, Westport and Ballina. The town is surrounded by several villages. The main route to the area by road is the N5.
Get Directions Buying property is a complicated process. With over 40 years’ experience working with buyers all over Ireland, we’ve researched and developed a selection of useful guides and resources to provide you with the insight you need..
From getting mortgage-ready to preparing and submitting your full application, our Mortgages division have the insight and expertise you need to help secure you the best possible outcome.
Applying in-depth research methodologies, we regularly publish market updates, trends, forecasts and more helping you make informed property decisions backed up by hard facts and information.
Need Help?
Our AI Chat is here 24/7 for instant support
Help To Buy Scheme
The property might qualify for the Help to Buy Scheme. Click here to see our guide to this scheme.
First Home Scheme
The property might qualify for the First Home Scheme. Click here to see our guide to this scheme.
