Thank you
Your message has been sent successfully, we will get in touch with you as soon as possible.
€235,000 Sale Agreed
Contact Us
Our team of financial experts are online, available by call or virtual meeting to guide you through your options. Get in touch today
Error
Could not submit form. Please try again later.
3 Fairgreen
Borrisokane
Co. Tipperary
E45 P262
Description
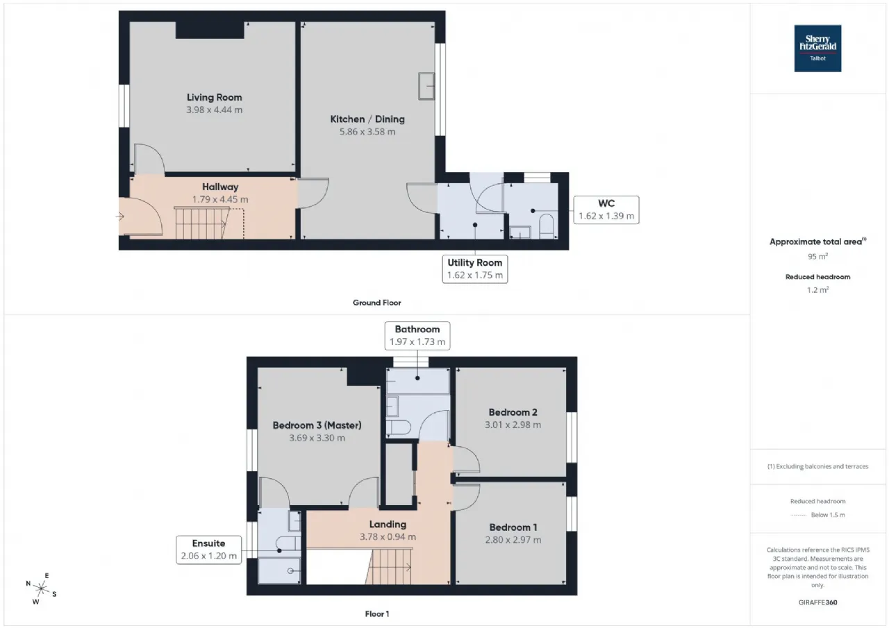
No. 3 is a well maintained B3 energy rated home, qualifying for a green mortgage rate. Extending to approximately 95 sq. m, the accommodation comprises an entrance hall, a bright living room to the front with solid fuel stove, and to the rear a kitchen dining room, utility room and downstairs WC. Upstairs there are three well proportioned bedrooms, including a master with ensuite, together with a main family bathroom.
The property is in good condition and is ready for occupation, with all appliances included. It would benefit from interior painting allowing the successful purchaser to put their own stamp on it.
Externally, the property enjoys a private patio area and a useful lean to shed, ideal for drying clothes or a sheltered seating area.
For those seeking a charming home within easy walking distance of Borrisokane’s essential amenities, Sherry FitzGerald Talbot confidently invite inspection.
Features
Oil Fired Central Heating
B3 Energy Rating for Green Rate Mortgage
95 sq. m
Rooms
Entrance Hall 4.45m x 1.79m laminate flooring
Living Room 4.44m x 3.98m laminate flooring and solid fuel stove
Kitchen / Dining 5.86m x 3.58m laminate flooring, fully fitted kitchen units, plumbed for dishwasher
Utility Room 1.75m x 1.62m laminate flooring and plumbing for washing machine
W.C. 1.62m x 1.39m laminate flooring, wc and handbasin
First Floor
Bedroom 1 2.97m x 2.8m t&g flooring
Bedroom 2 3.01m x 2.98m t&g flooring and built in wardrobe
Bathroom 1.97m x 1.73m with bath, wc, handbasin and electric shower
Bedroom 3 (Master) 3.69m x 3.3m with carpet flooring, timber panelling and built in wardrobe
Ensuite 2.06m x 1.2m wc, handbasin and electric shower
BER Information
BER Number: 100149574
Energy Performance Indicator: 138.9 kWh/m²/yr
About the Area
Borrisokane (Irish: Buiríos Uí Chéin, meaning "the Burgage of the Cianacht") is a town in County Tipperary, situated on the N52/N65 National secondary road between Nenagh and Portumna and the N52 between Nenagh and Birr. The Ballyfinboy River flows through the town on its way to Lough Derg which is only 12 km to the west. It is a civil parish in the historical barony of Ormond Lower and an Ecclesiastical parish in the Roman Catholic Diocese of Killaloe.
Borrisokane is in the Tipperary North Dáil constituency. The proposed new Dáil constituency of Offaly will incorporate 24 electoral divisions from Tipperary North including Borrisokane. Situated as it is in the Great Plain of Lower Ormond, much of the land around Borrisokane is well suited to farm production. As such, the area has a strong agricultural history which continues to this day.
Get Directions Buying property is a complicated process. With over 40 years’ experience working with buyers all over Ireland, we’ve researched and developed a selection of useful guides and resources to provide you with the insight you need..
From getting mortgage-ready to preparing and submitting your full application, our Mortgages division have the insight and expertise you need to help secure you the best possible outcome.
Applying in-depth research methodologies, we regularly publish market updates, trends, forecasts and more helping you make informed property decisions backed up by hard facts and information.
Need Help?
Our AI Chat is here 24/7 for instant support
Help To Buy Scheme
The property might qualify for the Help to Buy Scheme. Click here to see our guide to this scheme.
First Home Scheme
The property might qualify for the First Home Scheme. Click here to see our guide to this scheme.
