Thank you
Your message has been sent successfully, we will get in touch with you as soon as possible.
€255,000 Sold
Contact Us
Our team of financial experts are online, available by call or virtual meeting to guide you through your options. Get in touch today
Error
Could not submit form. Please try again later.
50 Ros Na Greine
Ardfinnan
Clonmel
Co. Tipperary
E91 YP78
Description
Finished to a high standard, the property comes to the market in turn-key condition.
The accommodation is bright and well-proportioned throughout. The welcoming entrance hall leads to a spacious sitting room with a feature marble fireplace and oak flooring. To the rear, a modern kitchen/dining area enjoys an abundance of natural light and direct access to the private, enclosed garden—an ideal space for outdoor dining or relaxation. A convenient guest WC completes the ground floor.
Upstairs, there are three generous bedrooms, one of which benefits from an ensuite, along with a family bathroom.
Additional features include oil-fired central heating, a low-maintenance rear garden, off-street parking, and a strong BER rating of C1.
Situated in the charming village of Ardfinnan, with local amenities close at hand and Clonmel just a short drive away, this property is an excellent opportunity for first-time buyers, downsizers, or investors alike.
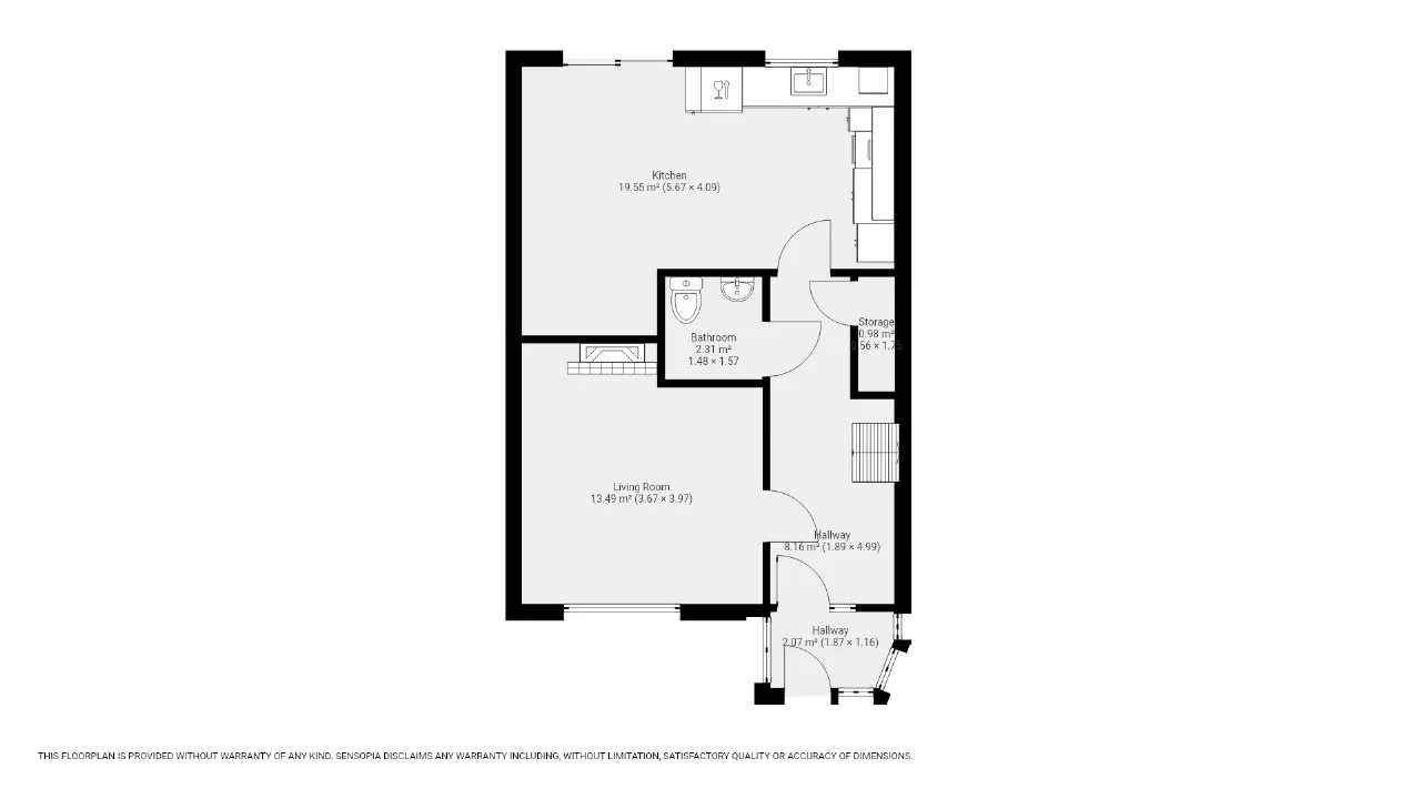
Rooms
Hallway 1.89m x 4.99m
Sitting Room 3.67m x 3.97m Marble Fireplace, Timber Oak Floor
Kitchen 5.67m x 4.09m Tiled Floor, Patio Doors
W.C. 1.48m x 1.57m
Landing 1.95m x 2.99m
Bedroom 1 3.7m x 3.5m Built in Wardrobes
En-Suite 2.5m x 0.9m
Bedroom 2 3.7m x 3.5m Built in Wardrobes
Bedroom 3 2.7m x 2.5m Built in Wardrobes
Bathroom 2.3m x 1.8m Half Tiled
BER Information
BER Number: 110328325
Energy Performance Indicator: 157.75
About the Area
Clonmel (Irish: Cluain Meala) is the largest town in county Tipperary. In recent times Clonmel and its environs has become the home to many large multi-national companies, particularly in the medical sector. Bulmers cider is brewed in a complex two kilometres east of the town, and a small orchard serving the brewery can be seen from the road when approaching Clonmel from that direction.
Get Directions Buying property is a complicated process. With over 40 years’ experience working with buyers all over Ireland, we’ve researched and developed a selection of useful guides and resources to provide you with the insight you need..
From getting mortgage-ready to preparing and submitting your full application, our Mortgages division have the insight and expertise you need to help secure you the best possible outcome.
Applying in-depth research methodologies, we regularly publish market updates, trends, forecasts and more helping you make informed property decisions backed up by hard facts and information.
Need Help?
Our AI Chat is here 24/7 for instant support
Help To Buy Scheme
The property might qualify for the Help to Buy Scheme. Click here to see our guide to this scheme.
First Home Scheme
The property might qualify for the First Home Scheme. Click here to see our guide to this scheme.
