Thank you
Your message has been sent successfully, we will get in touch with you as soon as possible.
€375,000 Sale Agreed
Contact Us
Our team of financial experts are online, available by call or virtual meeting to guide you through your options. Get in touch today
Error
Could not submit form. Please try again later.
3 Knights Crescent
Nenagh
Co. Tipperary
E45 EP82
Description
Extending to approximately 155 sq m on a site of 0.30 hectares (0.74 acres), the property offers bright, well proportioned accommodation ideal for modern family living.
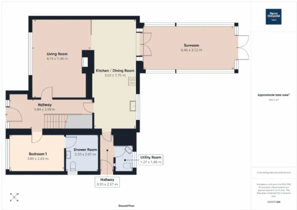
The entrance hallway leads to a living room with views over the green area and a kitchen/dining area that connects to a light filled sunroom overlooking the rear garden. The ground floor also includes a bedroom, shower room and utility. Upstairs are three bedrooms and a family bathroom.
Outside, the property enjoys a prime position with a front green and a private rear garden. Conveniently located just 1.25 km from the M7 and 1 km from the town centre, it combines peaceful living with easy access to schools, shops and commuter routes.
A turnkey family home in a prime location. Viewing is highly recommended.
Features
Oil Fired Central Heating
External garage
Boiler upgraded in October 2025 (BER not updated since)
Rooms
Entrance Hall 5.84m x 2.09m with solid oak flooring and under stair storage
Living Room 5.48m x 4.18m with solid oak flooring, electric fireplace with marble surround and sliding door to dining room
Kitchen / Dining Room 7.75m x 3.03m with solid oak flooring, fully fitted kitchen units, granite worktop, electric oven and hob
Sunroom 6.46m x 3.12m
Utility Room 1.88m x 1.27m fully tiled, wc, handbasin and plumbed for washing machine
Back Hall 2.67m x 0.95m
Bedroom 1 3.8m x 2.63m ground floor bedroom, laminate flooring
Shower Room 2.67m x 2.2m fully tiled, wc, handbasin and electric shower
First Floor
Bedroom 2 3.17m x 2.8m carpet flooring and built in wardrobe
Bedroom 3 3.7m x 3.64m carpet flooring and built in wardrobe
Bedroom 4 4.08m x 3.09m carpet flooring and built in sliderobe
Bathroom 2.82m x 2.01m fully tiled, wc, handbasin, bath, electric shower and heated towel rail
Landing 2.03m x 1.97m carpet flooring
BER Information
BER Number: 108501578
Energy Performance Indicator: 283.48 kWh/m²/yr
About the Area
Nenagh (Irish: Aonach Urmhumhan) is a busy commercial town in Tipperary. In 2011 it had a population of 7,995. The town's historic attractions include Nenagh Castle, the Heritage Centre, and the ruined Franciscan abbey. Nenagh is situated on the R445 Regional Road, which links it to the M7. Bus Éireann offer services 24 hours a day to Dublin and Limerick, with JJ Kavanagh offering direct services to both Dublin and Shannon airports. Nenagh railway station is on the Limerick to Ballybrophy line. It is only 37 km from Thurles, which is on the main Dublin/Cork line.
Get Directions Buying property is a complicated process. With over 40 years’ experience working with buyers all over Ireland, we’ve researched and developed a selection of useful guides and resources to provide you with the insight you need..
From getting mortgage-ready to preparing and submitting your full application, our Mortgages division have the insight and expertise you need to help secure you the best possible outcome.
Applying in-depth research methodologies, we regularly publish market updates, trends, forecasts and more helping you make informed property decisions backed up by hard facts and information.
Need Help?
Our AI Chat is here 24/7 for instant support
Help To Buy Scheme
The property might qualify for the Help to Buy Scheme. Click here to see our guide to this scheme.
First Home Scheme
The property might qualify for the First Home Scheme. Click here to see our guide to this scheme.
