Thank you
Your message has been sent successfully, we will get in touch with you as soon as possible.
€270,000 Sale Agreed
Contact Us
Our team of financial experts are online, available by call or virtual meeting to guide you through your options. Get in touch today
Error
Could not submit form. Please try again later.
77 Glencarrick
Roscrea
Co. Tipperary
E53 WE27
Description
Built in 2007, and extending to approx. 115 sq. mts/ 1,237 sq. ft, it features an electric underfloor heating option at ground floor level, a large sunny kitchen, a wood burning stove, separate utility room, and a useful shed to the rear of the house.
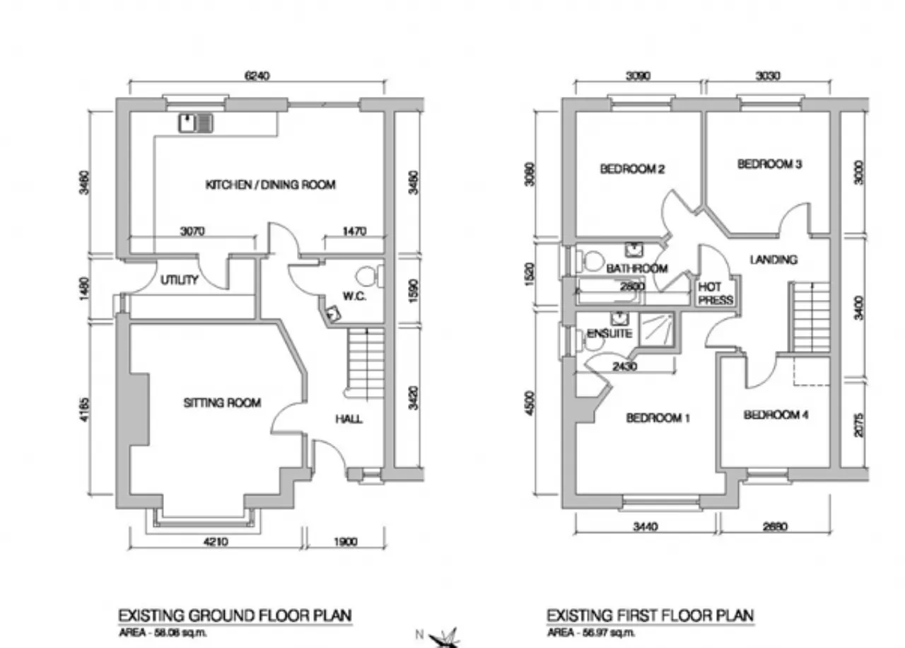
Accommodation is laid out in an entrance hallway, a sitting room with bay window, a large kitchen come dining room, a utility room, a guest WC, four bedrooms, an ensuite and a family bathroom. The tiling throughout the house is both modern and timeless.
One bedroom has been fitted out to use as a walk in wardrobe/home office.
The gardens are well maintained with a beautiful established rockery to the front, a gate that gives side access to the rear, where you will find a covered raised veranda and a large garden shed. Parking space to the front of the house.
Viewing highly recommended. Please call Julie Fogarty 0505 21192
Features
Useful rear shed.
West facing rear garden with raised patio & canopy over. One bedroom set out as a walk in wardrobe.
UPVC double glazed.
Mains water & mains sewerage connection.
Efibre broadband connected.
Rooms
Living Room 4.20m x 4.18m
Kitchen Dining Room 6.24m x 3.48m
Utility Room 3.07m x 1.48m
Guest WC 1.47m x 1.59m
First Floor
Bedroom 1 3.44m x 4.50m
En-Suite 2.43m x 1.50m
Bedroom 2 3.09m x 3.08m
Bedroom 3 3.03m x 3.00m
Bedroom 4 2.07m x 2.68m
Bathroom 2.80m x 1.52m
BER Information
BER Number: 119255826
Energy Performance Indicator: 147.62 (kWh/m2/yr)
About the Area
Roscrea (Irish: Ros Cré) is a market town in County Tipperary. In 2011 the town had a population of 5,403. Its main industries include meat processing and pharmaceuticals. The town is one of the oldest in Ireland, and is a designated Irish Heritage Town due to the extent of important historical buildings that are preserved in the town.
Roscrae lies at the crossroads of the M7 motorway between Dublin and Limerick and the N62 between Athlone and Horse and Jockey. It is well connected by bus routes. Route 12 connects Dublin and Limerick and connections are available hourly. Roscrea railway station is on the Limerick–Ballybrophy railway line. At Ballybrophy it joins the main Cork-Dublin line.
Get Directions Buying property is a complicated process. With over 40 years’ experience working with buyers all over Ireland, we’ve researched and developed a selection of useful guides and resources to provide you with the insight you need..
From getting mortgage-ready to preparing and submitting your full application, our Mortgages division have the insight and expertise you need to help secure you the best possible outcome.
Applying in-depth research methodologies, we regularly publish market updates, trends, forecasts and more helping you make informed property decisions backed up by hard facts and information.
Need Help?
Our AI Chat is here 24/7 for instant support
Help To Buy Scheme
The property might qualify for the Help to Buy Scheme. Click here to see our guide to this scheme.
First Home Scheme
The property might qualify for the First Home Scheme. Click here to see our guide to this scheme.
