Thank you
Your message has been sent successfully, we will get in touch with you as soon as possible.
€275,000
Contact Us
Our team of financial experts are online, available by call or virtual meeting to guide you through your options. Get in touch today
Error
Could not submit form. Please try again later.
Laburnum House
Air Hill
Roscrea
Co Tipperary
E53 WC94
Description
Important aspects to the sale of this house is that it can qualify for the Vacant Homes Refurbishment Grant for an owner occupier which can be as much as €50,000, as well as retro-fit grants from SEAI.
Ayr Hill is a quiet road and yet our new Primary Care Unit (currently under construction) and Dunnes Stores are just to the end of the road, approx. five minutes walk.
Built in 1975 the house floor area extends to approx.. 163 sq. mts/1754 sq. ft. The stone elevations and arched veranda give it a commanding and distinguished look. Surrounded by a half acre of gardens which were carefully and lovingly planned as well as being well cared for over the years. A cobbled driveway flanked by long established Laburnum trees on each side leads to the front stand with lawns, well-established shrubbery & a variety of plants.
Other mature trees and a shrubbery line the sides of the property and lead to the back lawn and trees that surround the house. There is so much already in place that would take a lifetime to create.
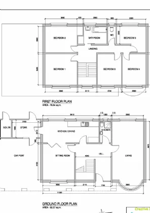
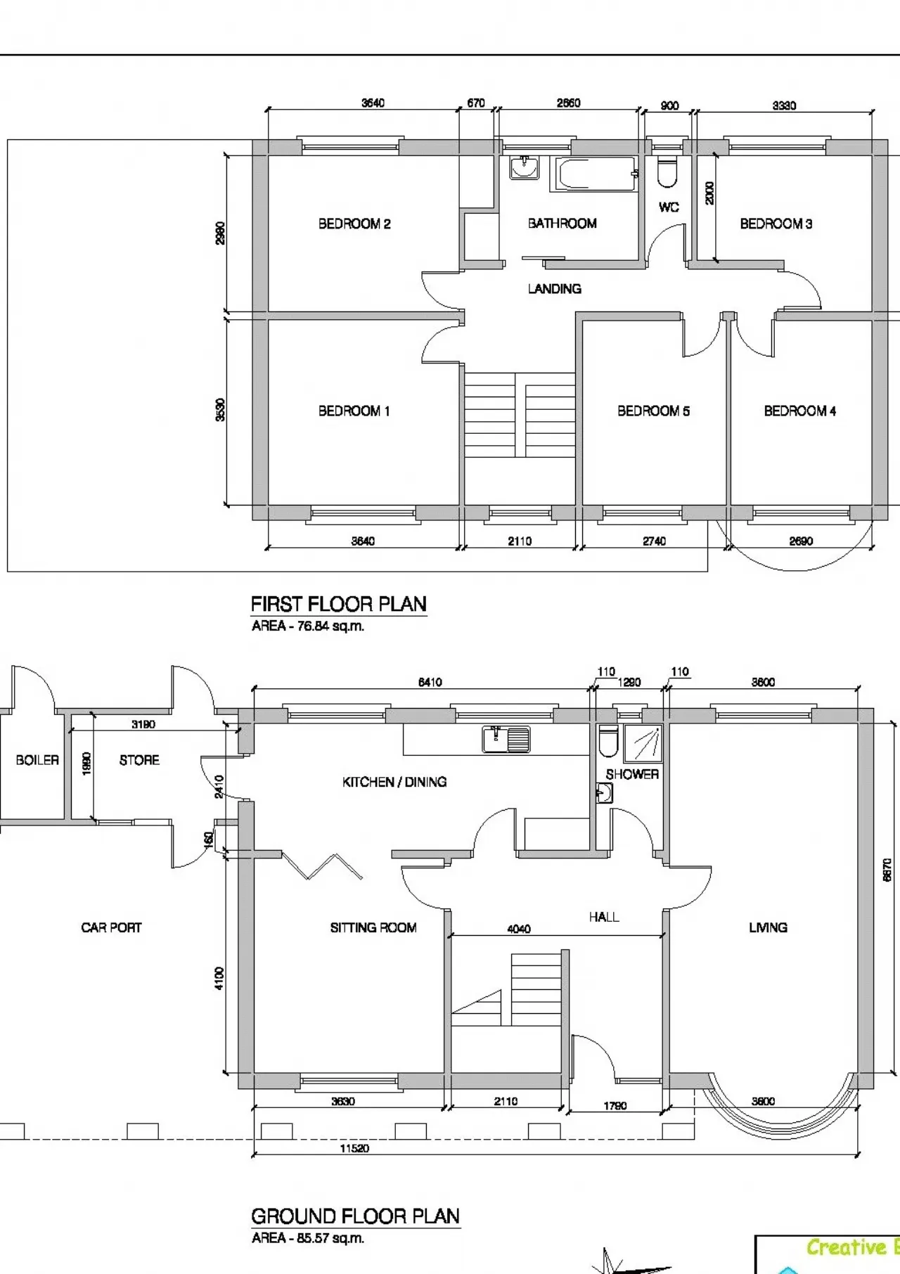
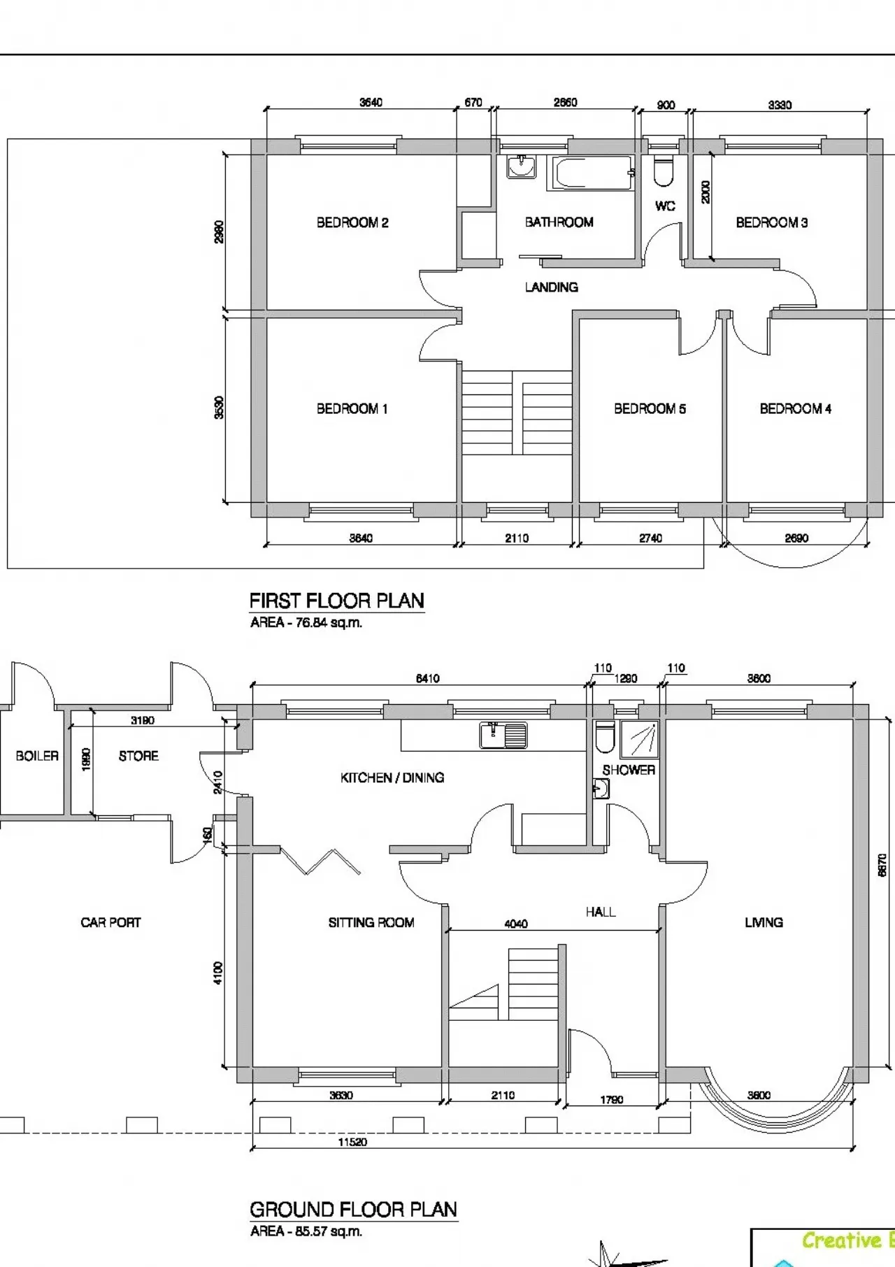
The current accommodation comprises;
Ground floor - entrance hallway, a large sitting room & dining room, a living room, a kitchen which includes a comfortable dining area overlooking the back garden, a utility room, and a useful ground floor shower room. There is also an external boiler room and an integrated carport adjoins the house, with covered parking and direct access from the house for two large cars.
First floor level - five large bedrooms, a family bathroom with hotpress and a separate WC. Some of the bedrooms could easily be converted to en suite bedrooms, if five bedrooms are not required.
The house is now presented as a blank canvas, with all fittings removed, and ready for the next owner to individualise the property to their taste and requirements. A genuine opportunity for those interested in customising their own family home, and the rewards will be substantial. It is also an opportunity to retro fit your house with future proofed services and lower running costs.
The location is excellent. Laburnum House is just five minutes-walk from the town of Roscrea. Access to the M7 from Junction 22 is also five minutes-drive from your front door. Dublin is an hour and a half away and Limerick City including University of Limerick & the Regional Hospital are just fifty minutes drive away.
Educational options for children are some of the best with a range of highly regarded primary schools nearby, as well as many secondary options including Colaiste Phobal locally, the renowned Cistercian College with day boarding options offered, the Ursuline Convent, Thurles and the Presentation Convent Thurles. There is a dedicated local daily bus service to and from these Thurles schools each day. Golf Clubs, tennis clubs, gyms, fishing on Lough Derg, hillwalking in the Slieve Blooms are all to hand. There is also a deeply convenient train service to Dublin each day from Roscrea, and both local stations Ballybrophy and Templemore Stations have approx. eight options daily from 6.30 am to late each evening, providing great commuting options.
Laburnum House is individual property that will equally suit a young, growing family or a family on the cusp of retirement who are looking to move away from city living.
Features
House on mains water connection and septic tank drainage.
The house is a blank canvas and ready for a new owners plans. It is ideal for an upgrade project with grants available from SEAI.
Oil fired central heating installed.
ESB is supplied and connected.
Rooms
Sitting room 3.63m x 4.1m
Kitchen Dining Room 6.4m x 2.41m
Bathroom 1.3m x 2.41
Utility Room 2.41m x 3.19m
First Floor
Landing
Bedroom 1 3.65m x 3.53m
Bedroom 2 3m x 3.65m
Bedroom 3 2.99m x 3.33m
Bedroom 4 3.25m x 2.7m
Bedroom 5 2.74m x 3.52m
BER Information
BER Number: 113203806
Energy Performance Indicator: 442.4 kw/m/yr
About the Area
Roscrea (Irish: Ros Cré) is a market town in County Tipperary. In 2011 the town had a population of 5,403. Its main industries include meat processing and pharmaceuticals. The town is one of the oldest in Ireland, and is a designated Irish Heritage Town due to the extent of important historical buildings that are preserved in the town.
Roscrae lies at the crossroads of the M7 motorway between Dublin and Limerick and the N62 between Athlone and Horse and Jockey. It is well connected by bus routes. Route 12 connects Dublin and Limerick and connections are available hourly. Roscrea railway station is on the Limerick–Ballybrophy railway line. At Ballybrophy it joins the main Cork-Dublin line.
Get Directions Buying property is a complicated process. With over 40 years’ experience working with buyers all over Ireland, we’ve researched and developed a selection of useful guides and resources to provide you with the insight you need..
From getting mortgage-ready to preparing and submitting your full application, our Mortgages division have the insight and expertise you need to help secure you the best possible outcome.
Applying in-depth research methodologies, we regularly publish market updates, trends, forecasts and more helping you make informed property decisions backed up by hard facts and information.
Need Help?
Our AI Chat is here 24/7 for instant support
Help To Buy Scheme
The property might qualify for the Help to Buy Scheme. Click here to see our guide to this scheme.
First Home Scheme
The property might qualify for the First Home Scheme. Click here to see our guide to this scheme.
