Thank you
Your message has been sent successfully, we will get in touch with you as soon as possible.
€217,500 Sale Agreed
Contact Us
Our team of financial experts are online, available by call or virtual meeting to guide you through your options. Get in touch today
Error
Could not submit form. Please try again later.
1 Holycross Cottages
Holycross
Thurles
Co. Tipperary
E41 EV72
Description
Sherry Fitzgerald Gleeson are thrilled to offer this delightful thatched cottage to the market, situated in a most central location in the historic village of Holycross, Co. Tipperary. Constructed in the early 1970’s in the traditional style, No. 1 Holycross Cottages has been maintained in excellent order throughout and has recently been redecorated, offering any new owner comfortable living without any delay. Located in a small, exclusive estate of just 10 thatched cottages with stunning elevated views overlooking the River Suir and Holycross Abbey.
Accommodation includes Entrance Porch, large double-heighted Sittingroom / Diningroom with solid-fuel stove, Kitchen, Bathroom and 2 no. Bedrooms on the Ground Floor. Upstairs contains a large Landing area with Hotpress, and a most spacious third Bedroom. Central heating is provided by an oil-fired system, there are double glazed sash windows throughout and all mains services are connected.
To the rear lies a sunny South-facing garden and to the front, further lawns with a driveway / parking area. A modest annual management charge maintains the entire estate in impeccable condition and each Cottage owner will also benefit from a one-tenth ownership of an adjoining 2-acre field, which could be further developed, subject to planning permission and consent by all Cottage owners.
This property is also located within close proximity to the towns of Thurles, Cashel and very convenient to the M8 Dublin / Cork Motorway via Horse & Jockey.
No. 1 Holycross Cottage represents a most rare opportunity for a variety of new owners including first-time buyers, those downsizing from rural areas or relocating from larger urban areas, holiday home hunters, the retired or indeed the discerning investor.
A virtual tour link can be supplied on request with actual viewings strictly by appointment only. Further enquiries can be made by contacting Sole Selling Agents, Sherry FitzGerald Gleeson in Thurles - (0504) 22997 / info@sfgleeson.ie
Features
Immaculate Condition
South-Facing Rear Aspect
Overlooking River Suir & Holycross Abbey
Exclusive Development of just 10 Cottages
Rooms
Kitchen 2.41m x 2.87m A modern fitted kitchen with integrated cooker & hob, washing machine, fridge, dishwasher, ample storage and tiled over worktop
Bedroom 1 4.14m x 2.87m Spacious Double Bedroom with WHB & Shower
Bedroom 2 2.29m x 1.98m Ideal space for a single bed or bunk-beds
Bathroom 2.44m x 1.73m Modern Bathroom with fully tiled walls and floor, w.c., whb, bath and electric shower
FIRST FLOOR
Landing 2.4m x 1.3m Landing with ample storage presses
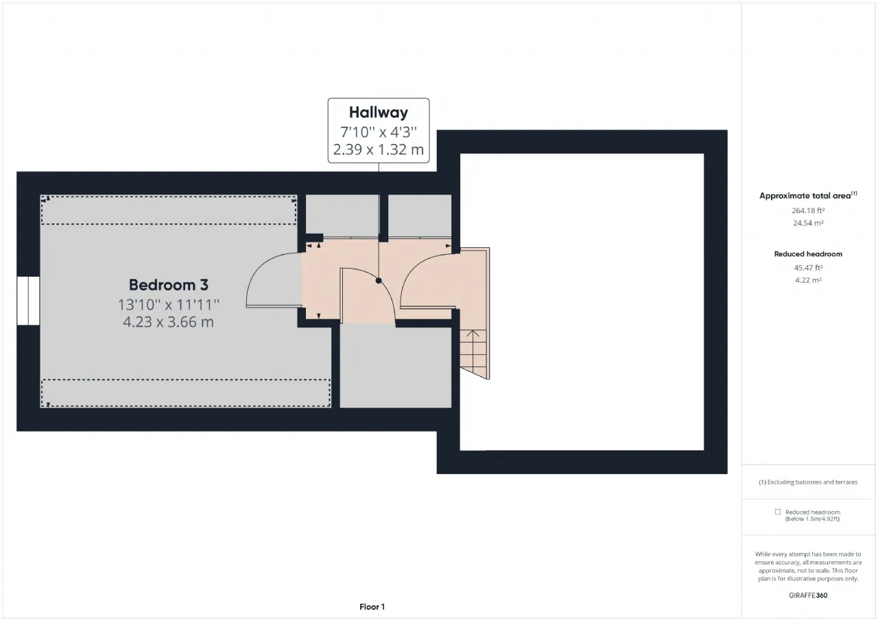
Bedroom 3 4.22m x 3.63m Very spacious Double Bedroom with whb and fitted shelving.
BER Information
BER Number: 100954874
Energy Performance Indicator: 288.55
About the Area
Thurles (Irish: Durlas) is a town in County Tipperary, surrounded by the Silvermine Mountains (to the northwest) and the Slieveardagh Hills (to the southeast). The town itself is built on a crossing of the River Suir. The M8 connects Thurles to Cork and Dublin via the N75 and N62 roads. The R498 links Thurles to Nenagh. The still functioning Thurles railway station opened 1848.
There are a number of amenities in the area, including several schools and third-level colleges. Semple Stadium is located here; the second largest GAA stadium in Ireland with a capacity of 53,500, second only to Croke Park in Dublin.
Get Directions Buying property is a complicated process. With over 40 years’ experience working with buyers all over Ireland, we’ve researched and developed a selection of useful guides and resources to provide you with the insight you need..
From getting mortgage-ready to preparing and submitting your full application, our Mortgages division have the insight and expertise you need to help secure you the best possible outcome.
Applying in-depth research methodologies, we regularly publish market updates, trends, forecasts and more helping you make informed property decisions backed up by hard facts and information.
Need Help?
Our AI Chat is here 24/7 for instant support
Help To Buy Scheme
The property might qualify for the Help to Buy Scheme. Click here to see our guide to this scheme.
First Home Scheme
The property might qualify for the First Home Scheme. Click here to see our guide to this scheme.
