Thank you
Your message has been sent successfully, we will get in touch with you as soon as possible.
€380,000 Sale Agreed
Contact Us
Our team of financial experts are online, available by call or virtual meeting to guide you through your options. Get in touch today
Error
Could not submit form. Please try again later.
2 The Close
John's Hill
Waterford
X91 WRD3
Description
To view and make offers on this property 24/7, visit sherryfitz.ie and register on mySherryFitz.
Opportunity to acquire 4-bedroom town house in the heart of Waterford City Centre!
LOCATION
The property is extremely centrally located on John’s Hill. John’s Hill. From its northern Junction it connects with Ballytruckle Road, Johnstown and South Parade. It’s more Southern junction connects with The Folly, the Dunmore Road via St. Patrick’s Way and continues straight through onto to the Williamstown Road.
Johnstown is extremely conveniently located within the city centre bounds, providing for easy access to all amenities. Within walking distance is the main shopping district with City Square Shopping Centre just c. 1.0km away, as well as a number of bars, restaurants, a number of well-established schools and S.E.T.U. Waterford Main Campus and College Street Campus. Within the immediate facility is Tesco Poleberry, TK Max, Odeon Cinema, Pinks Mexican Restaurant and a local post office and pharmacy.
The property is serviced by the W5 bus route, which has a stop just c. 350m away. This route will bring you directly into Waterford City centre, University Hospital Waterford and the Cleaboy area. The property is also serviced by the W3 bus route via the Ballytruckle Road, which goes to the City Centre and Kilcohen area. All other local routes can be accessed via Parnell Street bus shelter, which is situated just c. 650m, or a short walk from the property.
THE PROPERTY
The property is a mid-terrace, modernised townhouse which historically made up part of The Old Infirmary.
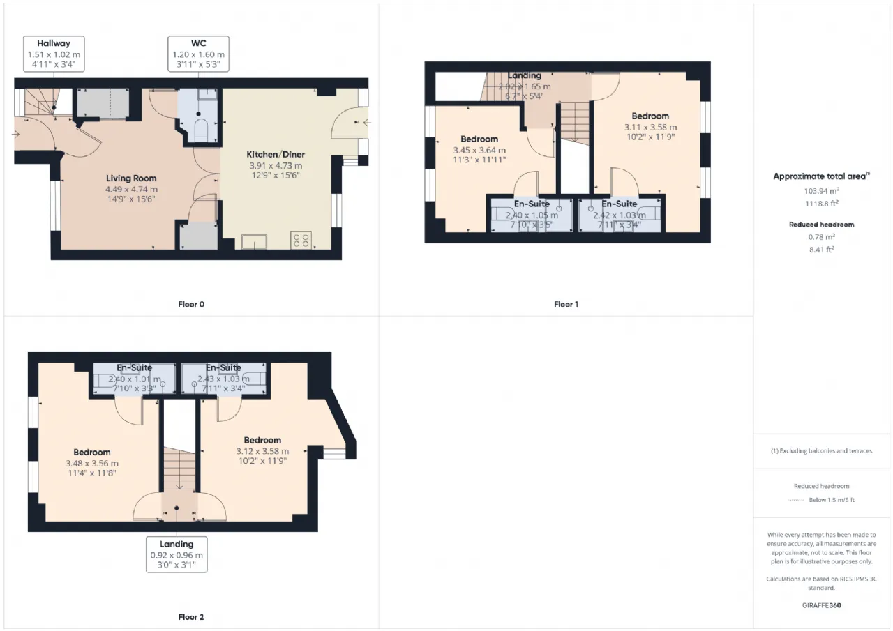
The property is one of a block of four that is separated from the street by a pedestrianised path bounded by cast iron fence and gateway. The property is spread across three floors and accommodation comprises of entrance hall, a substantial living area with access to under stairs storage, downstairs WC and a kitchen with door leading to a small cobble block yard to rear.
Both of the upper floors comprise of two sizable double bedrooms each of which has an en-suite and fitted wardrobes. The property benefits from gas-fired central heating, double glazed windows and doors throughout and off-street gated parking to the rear of the house.
Don’t miss out! Book your viewing today on mySherryFitz.ie!
Rooms
Entrance Hall 1.51m x 1.02m Laminate floor; blinds.
Living Room 4.49m x 4.74m Laminate floor; blinds; double door to kitchen.
WC 1.20m x 1.60m Tiled floor to ceiling; WC; wash-hand-basin
Kitchen/Diner 3.91m x 4.73m Laminate floor; tiled floor in kitchen area; integrated hob & oven; blinds; frosted windows; door to rear.
First Floor
Landing 0.92m x 0.96m Carpet stairs and landing.
Bedroom 3.12m x 3.58m Rear orientation; double room; skylight with velux window; carpet; en-suite.
En-Suite 2.43m x 1.03m Tiled floor-to-ceiling; WC; wash hand basin shower.
Second Floor
About the Area
Waterford (Irish: Port Láirge) is the oldest city in Ireland, situated at the head of Waterford Harbour, with a population of 46,732. The city is served by 21 primary schools and 9 secondary schools. River Suir, which flows through Waterford City, has provided a basis for the city's long maritime history. The M9 motorway, connects the city to Dublin. The N24 road connects the city to Limerick city. The N25 road connects the city to Cork city. The route continues eastwards to Rosslare Harbour. Bus services operate throughout the city centre and across the region. Waterford railway station is the only railway station in the county of Waterford.
Get Directions Buying property is a complicated process. With over 40 years’ experience working with buyers all over Ireland, we’ve researched and developed a selection of useful guides and resources to provide you with the insight you need..
From getting mortgage-ready to preparing and submitting your full application, our Mortgages division have the insight and expertise you need to help secure you the best possible outcome.
Applying in-depth research methodologies, we regularly publish market updates, trends, forecasts and more helping you make informed property decisions backed up by hard facts and information.
Need Help?
Our AI Chat is here 24/7 for instant support
Help To Buy Scheme
The property might qualify for the Help to Buy Scheme. Click here to see our guide to this scheme.
First Home Scheme
The property might qualify for the First Home Scheme. Click here to see our guide to this scheme.
