Thank you
Your message has been sent successfully, we will get in touch with you as soon as possible.
€440,000 Sale Agreed
Contact Us
Our team of financial experts are online, available by call or virtual meeting to guide you through your options. Get in touch today
Error
Could not submit form. Please try again later.
Lacken Road
Kilbarry
Waterford
FOLIO NO: WD10024F
X91 N8Y7
Description
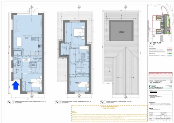
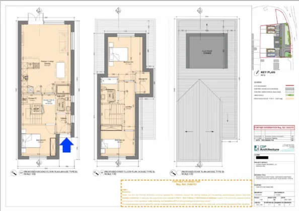
The site benefits from full planning permission under planning ref: 24/60761.
The proposed development will consist of: Retaining the existing single-storey detached house on site. Construction of four number two-storey three-bedroom semi-detached houses, with surface car parking spaces for the existing house and new houses, with access to the development from Lacken Road. All with associated site works, public open spaces, landscaping, boundary treatments and drainage.
The existing house is single storey with kitchen area; the remainder of the house is currently divided into six large double bedrooms, the house is currently occupied on a short-term licence agreement, vacant possession of the existing house can be provided as part of the sale.
The existing house extends to approx. 124 sq. m. it has double glazed windows, oil fired central heating and internally finished to a good standard throughout. All gardens have a western aspect which will allow for afternoon and evening sun.
About the Area
Waterford (Irish: Port Láirge) is the oldest city in Ireland, situated at the head of Waterford Harbour, with a population of 46,732. The city is served by 21 primary schools and 9 secondary schools. River Suir, which flows through Waterford City, has provided a basis for the city's long maritime history. The M9 motorway, connects the city to Dublin. The N24 road connects the city to Limerick city. The N25 road connects the city to Cork city. The route continues eastwards to Rosslare Harbour. Bus services operate throughout the city centre and across the region. Waterford railway station is the only railway station in the county of Waterford.
Get Directions Buying property is a complicated process. With over 40 years’ experience working with buyers all over Ireland, we’ve researched and developed a selection of useful guides and resources to provide you with the insight you need..
From getting mortgage-ready to preparing and submitting your full application, our Mortgages division have the insight and expertise you need to help secure you the best possible outcome.
Applying in-depth research methodologies, we regularly publish market updates, trends, forecasts and more helping you make informed property decisions backed up by hard facts and information.
Need Help?
Our AI Chat is here 24/7 for instant support
Help To Buy Scheme
The property might qualify for the Help to Buy Scheme. Click here to see our guide to this scheme.
First Home Scheme
The property might qualify for the First Home Scheme. Click here to see our guide to this scheme.
