Thank you
Your message has been sent successfully, we will get in touch with you as soon as possible.
€390,000
Contact Us
Our team of financial experts are online, available by call or virtual meeting to guide you through your options. Get in touch today
Error
Could not submit form. Please try again later.
Glenatore
Coosan
Athlone
Co. Westmeath
Description
Limited number of units available in Phase 2.
Contact us today to register your interest.
Superb new build A rated homes in a most desirable location at Coosan.
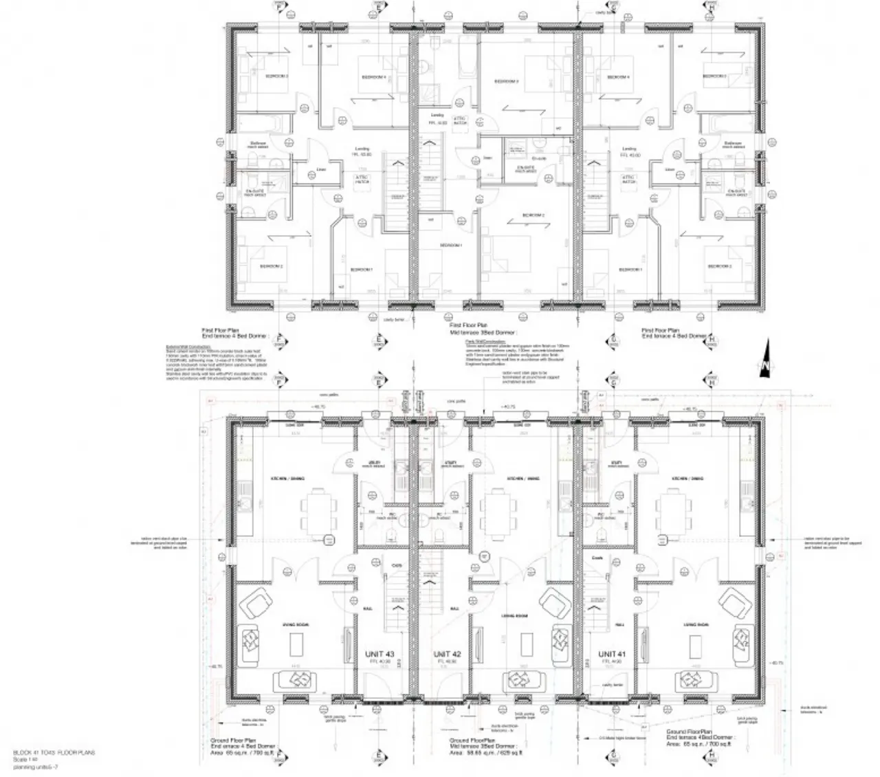
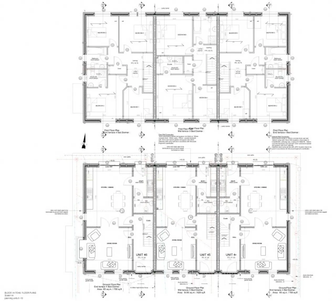
Finished to a high standard and offering spacious accommodation. There are a mix of 3 and 4 bedroom units in the development. Accommodation briefly comprises; large Livingroom, spacious kitchen/dining room, W.C, & Utility, Upstairs there are 3/4 bedrooms with master ensuite and a family bathroom.
The house will qualify for the " Help to Buy" grant.
Situated in the tranquil Coosan neighborhood, this development is just a stone's throw away from local amenities, schools, and scenic walking trails along the River Shannon. Athlone town centre is easily accessible, providing a variety of shopping, dining, and entertainment options.
The Houses will be completed with the following finishes (Finishes may change due to availability at time of construction):
External
• Block built houses with plaster finish.
• Low Maintenance Coloured finished plaster to external walls.
• Ground floor External finished in Stone Cladding
• Truss timber roof with black tiled roof, dry ridge caps and edging to gables.
• Black PVC facia, soffit, gutters, and downpipes
• PVC triple glazed windows and Composite Front Door.
• Cobble Paved Driveways
• Rear seeded gardens to each House
• Concrete footpath to Sides and rear of houses
Internal Finishes
Joinery
• White painted Shaker doors on 3 hinges
• Chrome rose handles to all doors
• Painted Shaker 4inch Architrave
• Painted Shaker 6 Inch Skirting
• Stira stairs to attic
• White Painted Stairs, with Oak Handrails
• Fully Fitted kitchens and Utility units
• 12mm stylish oak laminate flooring to all ground floors incl WC
• Luxurious carpet to all bedrooms and landings
Bathrooms
• Pumped T-Bar rain head shower to all showers
• Mixer hose to bath units
• High end Fitted Sanitary ware.
• Mono Bloc mixer taps to sinks.
• Mechanical extractor fans
• Tiled floors and wet areas walls to all bathroom and ensuites
Heating/Plumbing
• Heat Pumps A+++
• Underfloor heating to Ground floors
• Constant Hot Water (Integrated water cylinder in utility rooms)
• Manifold system (No hidden Joints)
• Stylish Aluminium rads to 1st floors
• 3Bar boosted water to full house.
• 2 Zone Heating (1 upstairs+1Downstairs)
• Digital Thermostats
Electrical
• White modern switches and sockets
• Generous socket points throughout the house
• Pendant Lights to every room
• Tv Point in Sitting room and Main Bedroom.
• Ethernet points (1 Upstairs + 1 downstairs)
• Full mains smoke alarmed.
• External power Supply installed for future Car Charging Point
Paint
• Ceilings painted white.
• All walls painted in easy clean Dulux Paint
• All woodwork painted in easy clean Eggshell white.
• Oak varnished handrail on stairs
General
• Highly insulated and airtight to achieve A2 BER Rating
• Concrete floor to ground floor.
• Timber floor structure to 1st floor.
• Home Bond structural warranty for 10 years
The images shown are for illustration purposes only and may not be an exact representation of the property
Features:
Spacious accommodation from c.117sq.m to 130sq.m
Superb Location
Off street Parking
Private Rear Garden
Air to Water Heating System
Short walk to Town Centre
Minutes’ drive to M6
Viewing by appointment:
Sherry FitzGerald Quain.
Interested in this property?
Sign up for mySherryFitz to arrange your viewing, see current offers or make your own offer.
Register now at SherryFitz.ie
Features
Superb Location
Off street Parking
Private Rear Garden
Air to Water Heating System
Short walk to Town Centre
Minutes’ drive to M6
BER Information
BER Number: 00000000
Energy Performance Indicator: xxxxxxxx
About the Area
Athlone (Irish: Baile Átha Luain) is a vibrant town on the River Shannon. Owing to its easy accessibility, and large choice of shops, Athlone is the main retail destination for residents in the Midlands of Ireland. It is flanked by the Athlone Town Centre; the largest shopping and leisure centre outside Dublin. Seán's Bar, located on the west bank of the river, is listed by the Guinness Book of World Records as the oldest pub in Europe. Athlone Castle reopened in 2012 following a multi-million euro renovation. Other popular attractions include the Luan Gallery, Glendeer Open Farm and the Viking Cruise of the Shannon. Athlone Institute of Technology (AIT) is the regional third level college. There are also five major secondary schools in the Athlone area.
Get Directions Buying property is a complicated process. With over 40 years’ experience working with buyers all over Ireland, we’ve researched and developed a selection of useful guides and resources to provide you with the insight you need..
From getting mortgage-ready to preparing and submitting your full application, our Mortgages division have the insight and expertise you need to help secure you the best possible outcome.
Applying in-depth research methodologies, we regularly publish market updates, trends, forecasts and more helping you make informed property decisions backed up by hard facts and information.
Need Help?
Our AI Chat is here 24/7 for instant support
Help To Buy Scheme
The property might qualify for the Help to Buy Scheme. Click here to see our guide to this scheme.
First Home Scheme
The property might qualify for the First Home Scheme. Click here to see our guide to this scheme.
