Thank you
Your message has been sent successfully, we will get in touch with you as soon as possible.
€570,000
Contact Us
Our team of financial experts are online, available by call or virtual meeting to guide you through your options. Get in touch today
Error
Could not submit form. Please try again later.
Summerhill
Enniscorthy
Co. Wexford
Description
The property, currently under construction will be finished to a very high standard with fitted kitchen and tiled floors. It also will have the benefit of a large bio-fold door into the kitchen to allow as much light as possible in a large kitchen/dining room. Upstairs, the master bedroom is en-suite with the benefit of a walk in wardrobe.
The property is an ideal location being only a few minutes’ walk to Pettits and all the amenities of Enniscorthy town.
Call or email us today for a set of plans to see the completed layout.
Features
High standard of finish.
House size: 199 sq. mts approx.
Fully fitted kitchen
Tiled floors
Painted white internally
Sanitary ware fitted.
Air to water heating system.
Rooms
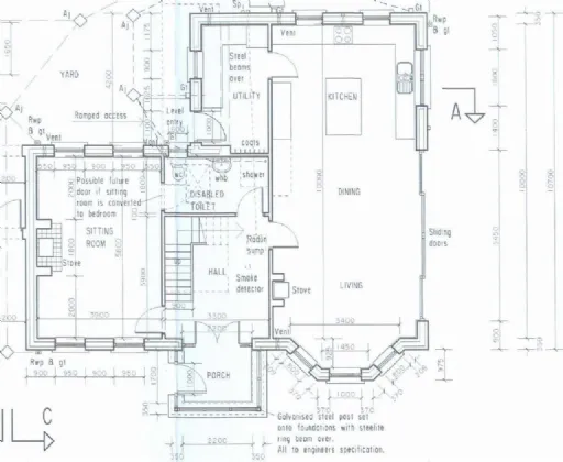
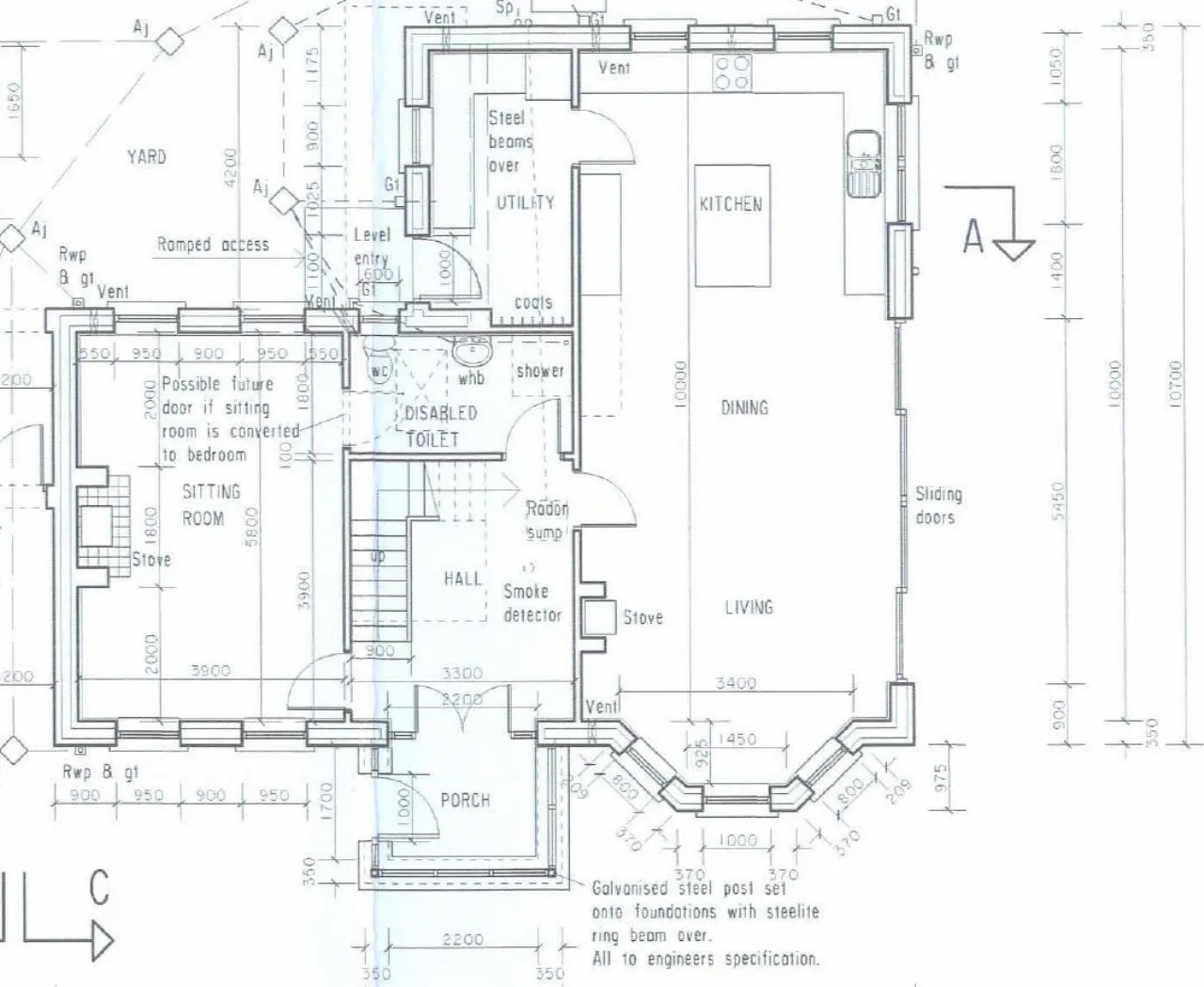
Kitchen/Dining Room 10.00m x 3.40m
Utility Room
WC
Sitting Room 5.80m x 3.90m
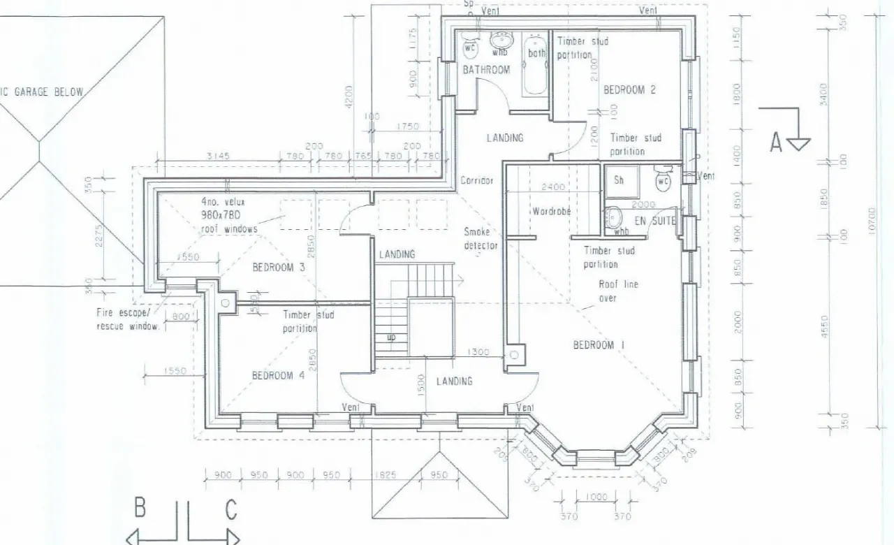
First Floor
Landing
Master Bedroom 5.00m x 4.55m @ widest point
En-Suite 1.85m x 2.00m
Walk in wardrobe 1.85m x 2.40m
Bedroom 2 3.30m x 3.30m
Bedroom 3 2.85m x 3.85m
Bedroom 4 2.85m x 3.70m
Bathroom 2.10m x 2.40m
About the Area
Enniscorthy (Irish: Inis Córthaidh) is the second-largest town in County Wexford. At the 2011 census, the population of the town and environs was 9,538. Enniscorthy has a railway station on the Dublin–Rosslare line. There is a bus stop at Templeshannon with connections to Waterford, Dublin, and other cities. It has four second-level schools, and a number of primary schools.
Enniscorthy is situated by the River Slaney. There is a swimming pool/recreation centre, several sports grounds including a rugby club and GAA club and several hotels including the four star Riverside Park Hotel. Surrounding the town, there is an 18-hole golf course, several pitch and putts, freshwater fishing, and a five-star spa. The town also boasts several historical sites and museums, as well as a number of local festivals.
Get Directions Buying property is a complicated process. With over 40 years’ experience working with buyers all over Ireland, we’ve researched and developed a selection of useful guides and resources to provide you with the insight you need..
From getting mortgage-ready to preparing and submitting your full application, our Mortgages division have the insight and expertise you need to help secure you the best possible outcome.
Applying in-depth research methodologies, we regularly publish market updates, trends, forecasts and more helping you make informed property decisions backed up by hard facts and information.
Need Help?
Our AI Chat is here 24/7 for instant support
Help To Buy Scheme
The property might qualify for the Help to Buy Scheme. Click here to see our guide to this scheme.
First Home Scheme
The property might qualify for the First Home Scheme. Click here to see our guide to this scheme.
