Thank you
Your message has been sent successfully, we will get in touch with you as soon as possible.
€450,000 Sale Agreed
Contact Us
Our team of financial experts are online, available by call or virtual meeting to guide you through your options. Get in touch today
Error
Could not submit form. Please try again later.
Churchtown
Kilrane
Rosslare
Co. Wexford
Description
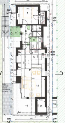
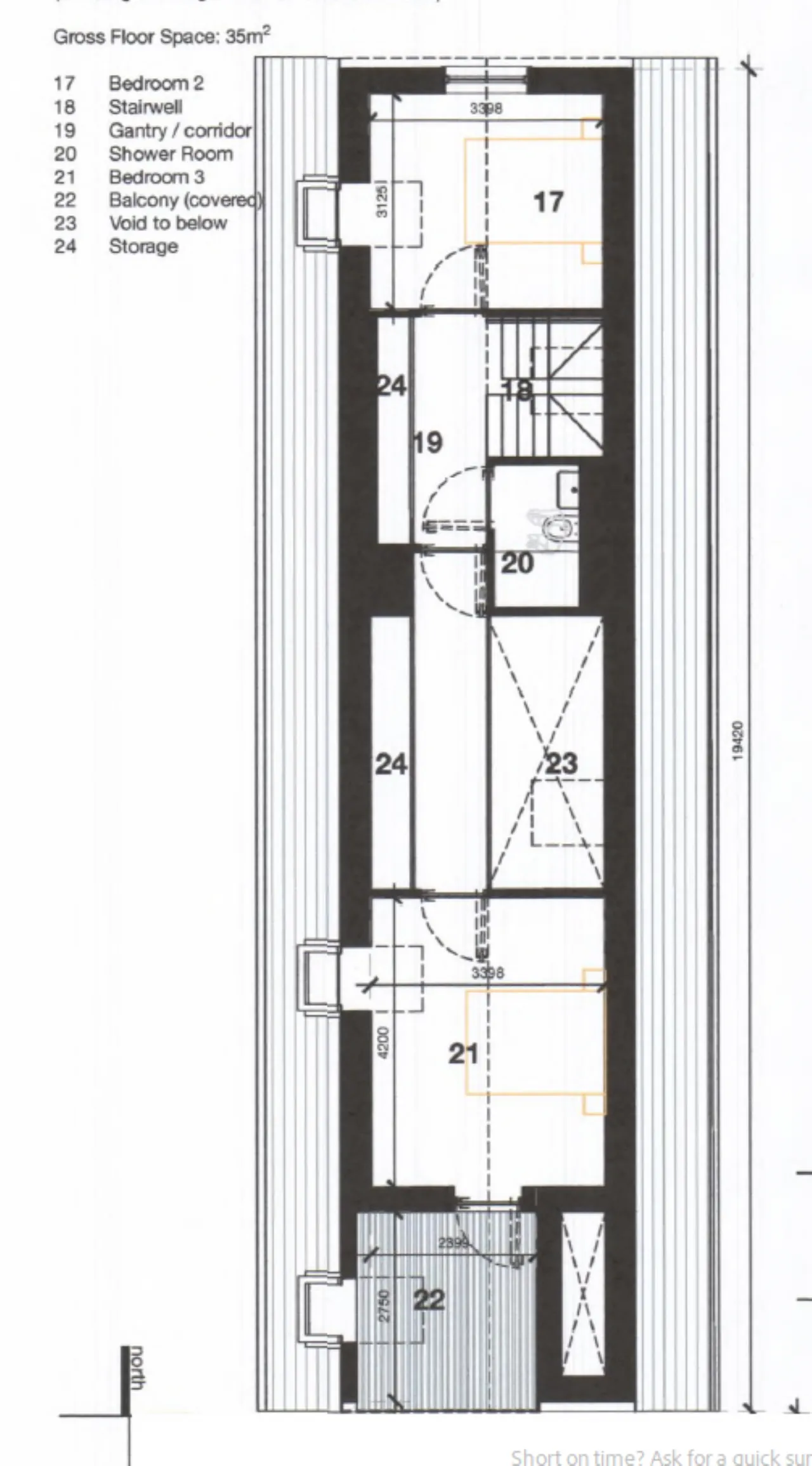
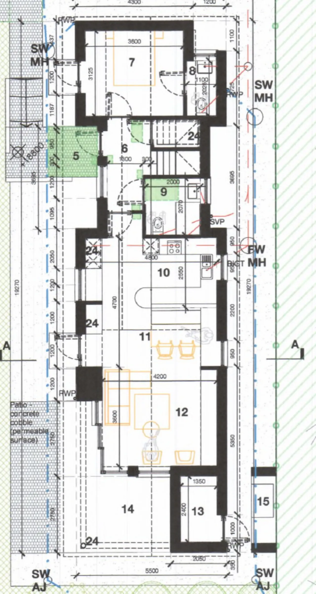
This newly built property offers a modern and stylish living space, perfect for a growing family or those looking for a touch of luxury. The house spans 100 sq. m approx. and is finished to the highest standard, with quality fixtures and fittings throughout. The open-plan layout creates a bright and airy atmosphere, with large windows allowing natural light to flood the living areas. The large kitchen/dining area is open plan into the living room space while there is also one of the bedrooms on the ground floor. Upstairs, the bedrooms are generously sized and offer plenty of room for relaxation.
Outside, the gardens will be landscaped making it ideal for outdoor entertaining or simply enjoying a peaceful retreat.
With its convenient location close to Rosslare Harbour, making it ideal for bus. rail and ferry transport link links, this property offers the perfect blend of comfort and convenience. Rosslare Strand is also approximately a 5 minute drive with a host of amenities including Kellys Hotel, restaurants, pubs, shops and also most importantly a beach.
Don't miss out on the opportunity to make this exceptional house your new home. Contact us today to arrange a viewing.
Features
A2 Rated houses.
High U-value A rated double glazed windows.
Highly insulated air tight house
Very low energy consumption.
Air to water heating system with energy efficient radiators.
Heating stat points on ground and first floor.
Fitted kitchen or allowance of €5000
High quality sanitary ware.
Bathrooms, W.C. and ensuite floor tiled and splashbacks to top of shower door (white tile) or allowance of €3000
Shower doors and screens included.
Landscaped gardens.
Tarmac covered parking space to front????
Fibre broadband available in the area.
CAT 5 points in main rooms.
Fully painted white internally.
Nap plaster finish externally for ease of maintenance.
French doors to rear garden.
Generous electrical outlets installed throughout the dwelling.
Outside tap.
White electrical points.
Contemporary internal doors, skirting and architraves fitted throughout with a white gloss finish to woodwork.
Concrete post and panels between rear gardens.
BER Information
BER Number: 0
Energy Performance Indicator: 0
About the Area
No description
Get Directions Buying property is a complicated process. With over 40 years’ experience working with buyers all over Ireland, we’ve researched and developed a selection of useful guides and resources to provide you with the insight you need..
From getting mortgage-ready to preparing and submitting your full application, our Mortgages division have the insight and expertise you need to help secure you the best possible outcome.
Applying in-depth research methodologies, we regularly publish market updates, trends, forecasts and more helping you make informed property decisions backed up by hard facts and information.
Need Help?
Our AI Chat is here 24/7 for instant support
Help To Buy Scheme
The property might qualify for the Help to Buy Scheme. Click here to see our guide to this scheme.
First Home Scheme
The property might qualify for the First Home Scheme. Click here to see our guide to this scheme.
