Thank you
Your message has been sent successfully, we will get in touch with you as soon as possible.
€495,000 Sale Agreed
Contact Us
Our team of financial experts are online, available by call or virtual meeting to guide you through your options. Get in touch today
Error
Could not submit form. Please try again later.
3 Carlisle Terrace
Duncairn Avenue
Bray
Co Wicklow
A98 Y634
Description
Set on Duncairn Avenue, a quiet lane off Seymour Road, the original house dates to c. 1890 and demonstrates many original features of the Victorian period including 10-foot-high ceilings, cast iron fireplaces and decorative ceiling plasterwork. The property has been substantially upgraded to include triple glazing, attic insulation, updated oil fired central heating system, solid oak timber flooring along with the use of tasteful décor throughout.
Briefly the accommodation comprises of a welcoming entrance hallway with storage units and a handy guest WC with its very own stamp collection on the walls. A semi glazed door leads from the hall to the rear courtyard garden. To the left is the comfortable living room which is dual aspect. Replaced by new triple glazed windows, the original front window frames were preserved and custom stained-glass windows designed by Enda Hannon have been set within the frames making for a lovely feature. An open fireplace and built in bookshelves help to make for a warm and restful environment. This room leads into the kitchen with its solid oak countertops and range of bespoke cabinetry. Two of the cabinet doors feature the vendor’s own exquisite botanical casting reliefs in graphite and resin. The splash backs are Fired Earth marble, and the kitchen offers a range of integrated appliances along with a cast iron fireplace.
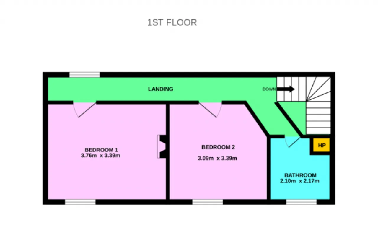
Rising to the first floor, there are two fine bedrooms, with views of the sea. The main bedroom is decorated with botanical reliefs wallpaper. The family bathroom includes a bath and electric shower unit and features a wildflower bathroom cabinet and mural dipicting Roy Lichtenstein’s Water Lilles. The hot press is located in the bathroom.
Outside there is a magical rear courtyard garden laid with gravel and hosting a lovely variety of shrubs and climbing plants including a mature jasmine. There is on-street parking to the front of the property.
The location of the property really is second to none. Set on a tranquil avenue and yet is within a stone’s throw to the Bray town centre, the seafront, the DART, and a host of amenities and facilities including cafés, restaurants, shops and local businesses. There is a terrific choice of sporting facilities and clubs nearby along with excellent schools and public transport links.
Early viewing of this wonderful property is highly recommended.
Contact Us
Our team of financial experts are online, available by call or virtual meeting to guide you through your options. Get in touch today
Thank you
Your message has been sent successfully, we will get in touch with you as soon as possible.
Error
Could not submit form. Please try again later.
Features
Charming, two bedroom, terraced house extending to 81 sq.m. / 872 sq.ft.
Period property with many original features including 10 ft. high ceilings, cast iron fireplaces and decorative plasterwork
Beautifully presented, well maintained and demonstrating artistic flair throughout
Upgrades include triple glazing, attic insulation, new flooring, updated heating system
Set in quiet location but within 5 mins stroll of Bray seafront, 300m to DART station and within easy walking distance to amenities and facilities
Rear garden courtyard with mature planting
Oil fired central heating
Rooms
Guest WC 1.4m x 0.75m Tiled flooring. White suite with wash hand basin and WC. Feature stamp collection on walls.
Sitting Room 3.55m x 4.23m Dual aspect room with solid oak flooring. Feature cast iron fireplace. Stained glass windows are set within original window frames as feature.
Kitchen 3.23m x 3.55m Bespoke laminate timber kitchen units with botanical relief features on overhead cabinets. Fired Earth marble splash backs. Range of appliances include Miele oven, 4 ring hob unit, fridge / freezer and stainless-steel sink. Plumbed for washing machine. Feature cast iron fireplace. Solid oak flooring.
Bedroom 1 3.76m x 3.39m Double to front. Carpet flooring. Feature cast iron fireplace.
Bedroom 2 3.09m x 3.39m Double to front. Carpet flooring. Feature cast iron fireplace.
Bathroom 2.10m x 2.17m White suite with bath, electric shower, wash hand basin and W.C. Access to hot press. Heated towel rail. Tiled flooring.
BER Information
BER Number: 107037483
Energy Performance Indicator: 315.77 kWh/m2/yr
About the Area
Bray is known as the Gateway to the Garden of Ireland, and is the longest established seaside town in the country. It is only 19km (12 miles) south of Dublin City and is easily reached by DART, Train, Bus or the N11 road. There is an attractive beach and a spacious esplanade. The scenic Cliff Walk on the eastern side of Bray Head, which continues, into Greystones offers walkers a feast of views on the way.
The town boasts fine period housing, shops, restaurants and evening entertainment. Also available in the immediate locality are golf courses, tennis, fishing, sailing, and horse riding. Another feature of Bray is the variety of amusement centres and carnival attractions, bowling alley, and nightclubs. It really is a stand-alone town with the additional advantage of being on the doorstep of Dublin.
Get Directions Buying property is a complicated process. With over 40 years’ experience working with buyers all over Ireland, we’ve researched and developed a selection of useful guides and resources to provide you with the insight you need..
From getting mortgage-ready to preparing and submitting your full application, our Mortgages division have the insight and expertise you need to help secure you the best possible outcome.
Applying in-depth research methodologies, we regularly publish market updates, trends, forecasts and more helping you make informed property decisions backed up by hard facts and information.
Need Help?
Our AI Chat is here 24/7 for instant support
Help To Buy Scheme
The property might qualify for the Help to Buy Scheme. Click here to see our guide to this scheme.
First Home Scheme
The property might qualify for the First Home Scheme. Click here to see our guide to this scheme.
