Thank you
Your message has been sent successfully, we will get in touch with you as soon as possible.
€499,975 Sold
Contact Us
Our team of financial experts are online, available by call or virtual meeting to guide you through your options. Get in touch today
Error
Could not submit form. Please try again later.
1 Mill Bank
Killincarrig
Greystones
Co. Wicklow
Description
Located on Mill Road within minutes’ walking distance of Aldi, the tennis club, GAA and Rugby Club, Greystones’ retail, educational and other leisure amenities are also close at hand; with a citybound and Dart feeder bus service passing outside.
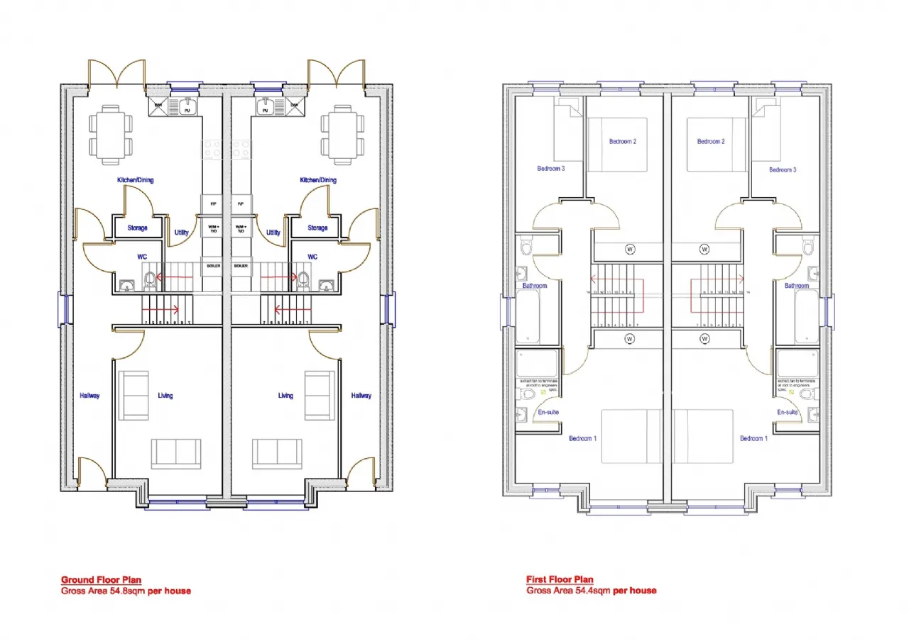
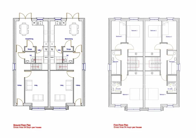
Each home will have an individual double car- parking apron to the front, and a side entrance to a lawned rear garden featuring a patio terrace off the stylish fully integrated eat- in kitchen; pantry storage room and separate utility, and a front south facing living room, downstairs accessible guest wc; while upstairs there are three well proportioned bedrooms, the principal being en-suite; all complemented by a family bathroom.
With triple glazing,a very high level of insulation, and air-to-water heat pump central heating and hot water system, these homes will be luxuriously comfortable, economical to run, and so easy to heat.
Bringing these to market during construction permits a contractually engaged buyer to personalize elements of internal finish in direct consultation with the builder, if desired.
For occupancy Spring 2021
Contact Us
Our team of financial experts are online, available by call or virtual meeting to guide you through your options. Get in touch today
Thank you
Your message has been sent successfully, we will get in touch with you as soon as possible.
Error
Could not submit form. Please try again later.
BER Information
BER Number: 113423131
Energy Performance Indicator: 43.64
About the Area
The town of Greystones is located on the east coast just south of Bray Head. Originally a small fishing village, Greystones has grown significantly over the past number of years, but has not lost its friendly and welcoming village atmosphere. With frequent rail connections to Dublin and Wexford and excellent motorway access to the N11, Greystones is the ideal location for commuters. Superb restaurants, unique specialist shops, beaches, pubs, golf courses and driving range are all close to the town centre.
Rugby, soccer, hurling, Gaelic football, swimming, leisure centre activities, sailing, fishing, rowing, tennis, basketball and baseball are well catered for. The new Charlesland Sport and Recreation Park is Ireland’s premier sports facility with its magnificent running track, skateboard park and sporting fields.
Get Directions Buying property is a complicated process. With over 40 years’ experience working with buyers all over Ireland, we’ve researched and developed a selection of useful guides and resources to provide you with the insight you need..
From getting mortgage-ready to preparing and submitting your full application, our Mortgages division have the insight and expertise you need to help secure you the best possible outcome.
Applying in-depth research methodologies, we regularly publish market updates, trends, forecasts and more helping you make informed property decisions backed up by hard facts and information.
Need Help?
Our AI Chat is here 24/7 for instant support
Help To Buy Scheme
The property might qualify for the Help to Buy Scheme. Click here to see our guide to this scheme.
First Home Scheme
The property might qualify for the First Home Scheme. Click here to see our guide to this scheme.
