Thank you
Your message has been sent successfully, we will get in touch with you as soon as possible.
€550,000 Sale Agreed
Contact Us
Our team of financial experts are online, available by call or virtual meeting to guide you through your options. Get in touch today
Error
Could not submit form. Please try again later.
The Olde Buttermill
Moneystown
Roundwood
County Wicklow
A98 XH77
Description
Set on 3 acres this delightful property is in harmony with its natural surroundings, offering breathtaking views of the rolling hills and surrounded by lush greenery and mature trees. A large gravelled driveway offers ample parking, and a wooden chalet provides additional storage space.
Inside, the cottage blends historic elements with modern comforts. The wood burning stove with original brick surround, wide wooden beams, and stone floors add to the cottage’s cozy and welcoming atmosphere. Deep set windows allow natural light to flood the rooms and there are garden views at every turn.
The cottage features a spacious living room, well-appointed open plan kitchen/dining area and comfortable bedrooms. The spacious bathroom has been recently refurbished and beautifully finished with decorative tiling and wood panelling.
The Olde Buttermill offers all the benefits of a scenic rural location whilst yet only 5 km from Newtownmountkennedy, Ashford and Roundwood. Located within easy reach of a host of outdoor pursuits including the famous Wicklow Way walk, Ballinastoe Golf Club, Djouce Golf Club, Glendalough and the ever increasingly popular Ballinastoe Cycling Track. There are also numerous woodland walks, reservoir walks, fishing opportunities and the Sally Gap in close proximity. Ashford village main street is just a short drive away and boasts a wide range of amenities including a choice of restaurants, pubs, school, churches, convenience stores, butchers, post office, pharmacy etc.
Ring our team on (0404) 66466 if you want to know more or schedule a viewing!
#sherryfitz #forsale #residential #sherryfitzgeraldcatherineoreilly #realestate #newlisting #MoreThanAgents #IrishProperty #House
Contact Us
Our team of financial experts are online, available by call or virtual meeting to guide you through your options. Get in touch today
Thank you
Your message has been sent successfully, we will get in touch with you as soon as possible.
Error
Could not submit form. Please try again later.
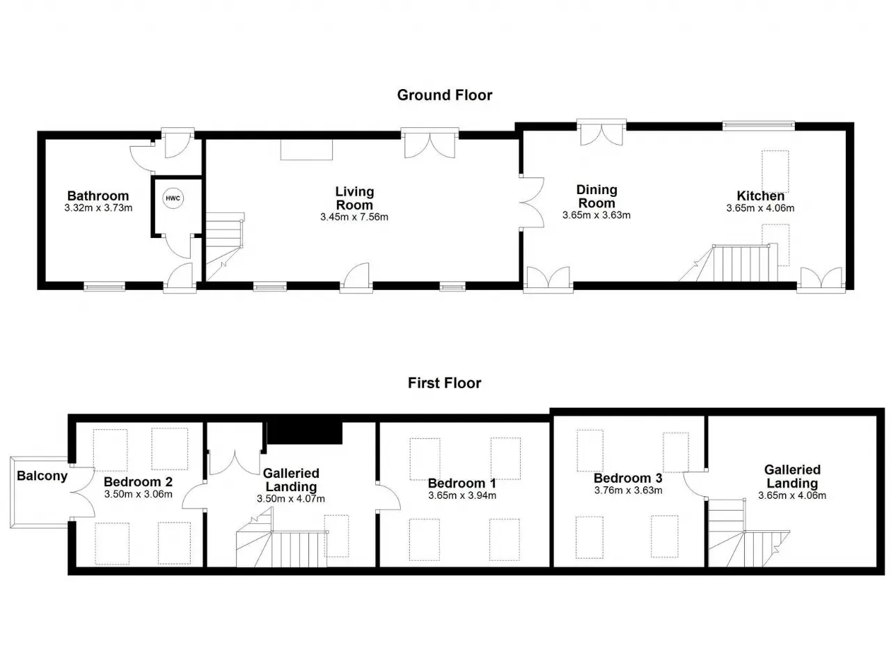
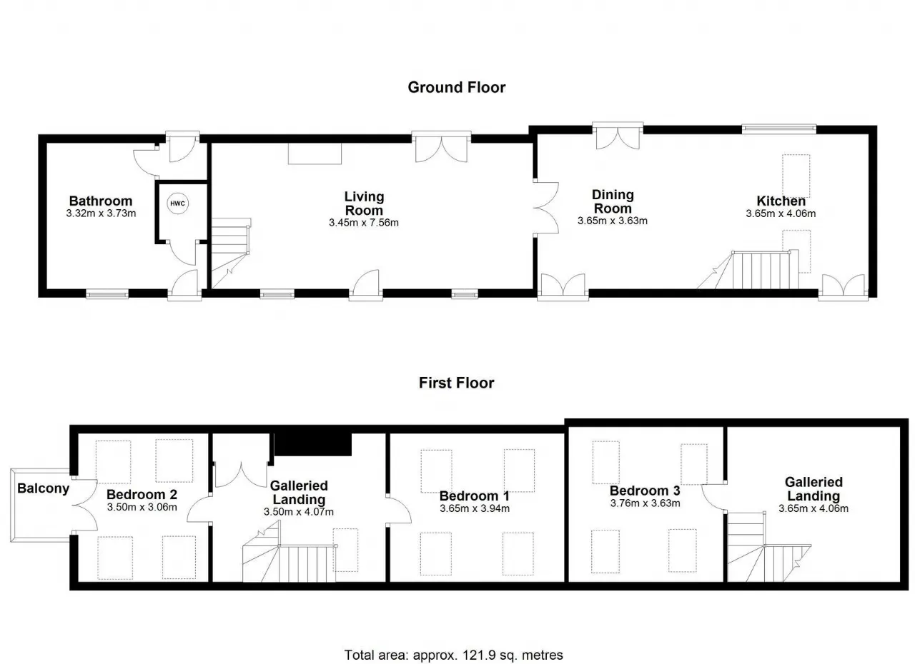
Rooms
Dining Room 3.65m x 3.63m This is a spacious dining area indeed nestled between the kitchen and living room, ideally placed for entertaining guests. The floors have been beautifully tiled and the exposed ceiling beams add some natural charm. There is access to the gardens through 2 sets of french doors and the dual aspect creates a light filled atmosphere.
Kitchen 3.65m x 4.06m Gorgeous kitchen steeped in character and featuring a range of storage units and and ample countertop space for food prep. There is a large stove for the enthusiastic chef and there is plumbing in place for a washer/dryer. The high beamed ceiling creates a lovely sense of space and the well placed roof lights allow for plenty of natural light. The floors have been beautifully laid with tiles and a wooden stairwell gives access to the converted attic currently in use as a bedroom.
Bathroom 3.32m x 3.73m This very spacious bathroom has been recently refurbished and features a walk in shower and a decorative tiled floor. The walls have been panelled to dado level and a wc and whb also feature.
Galleried Landing 1 3.50m x 4.07m Featuring solid wood flooring and rooflights.
Bedroom 1 3.65m x 3.94m Double room featuring solid wood flooring and rooflights.
Bedroom 2 3.50m x 3.06m Double room featuring solid wood flooring and rooflights with access to balcony area.
Galleried Landing 2 3.65 x 4.06m Above the kitchen and featuring solid wood flooring.
Bedroom 3 3.76m x 3.63m Double room featuring solid wood flooring and rooflights.
BER Information
BER Number: 110376076
Energy Performance Indicator: 224.88
About the Area
Roundwood is located on the R755 road which is part of the main route from Dublin to Glendalough in the Wicklow Mountains. At 238 metres above sea level, it is one of the highest villages in Ireland. Vartry Reservoir Lakes (reservoirs built in the 1860s) are close by.
Get Directions Buying property is a complicated process. With over 40 years’ experience working with buyers all over Ireland, we’ve researched and developed a selection of useful guides and resources to provide you with the insight you need..
From getting mortgage-ready to preparing and submitting your full application, our Mortgages division have the insight and expertise you need to help secure you the best possible outcome.
Applying in-depth research methodologies, we regularly publish market updates, trends, forecasts and more helping you make informed property decisions backed up by hard facts and information.
Need Help?
Our AI Chat is here 24/7 for instant support
Help To Buy Scheme
The property might qualify for the Help to Buy Scheme. Click here to see our guide to this scheme.
First Home Scheme
The property might qualify for the First Home Scheme. Click here to see our guide to this scheme.
