Thank you
Your message has been sent successfully, we will get in touch with you as soon as possible.
€160,000
Contact Us
Our team of financial experts are online, available by call or virtual meeting to guide you through your options. Get in touch today
Error
Could not submit form. Please try again later.
Castlewray
Golf Course Road
Letterkenny
Co. Donegal
Description
Extending to 0.7 Acres this site is perfectly set within close proximity to Letterkenny Golf Club and both Ramelton and Letterkenny Towns, and is also within Woodlands National School catchment area.
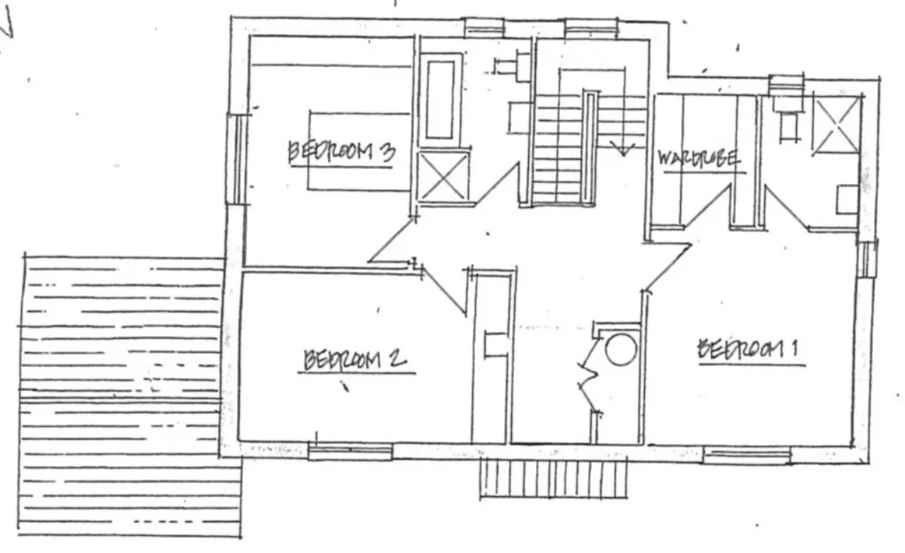
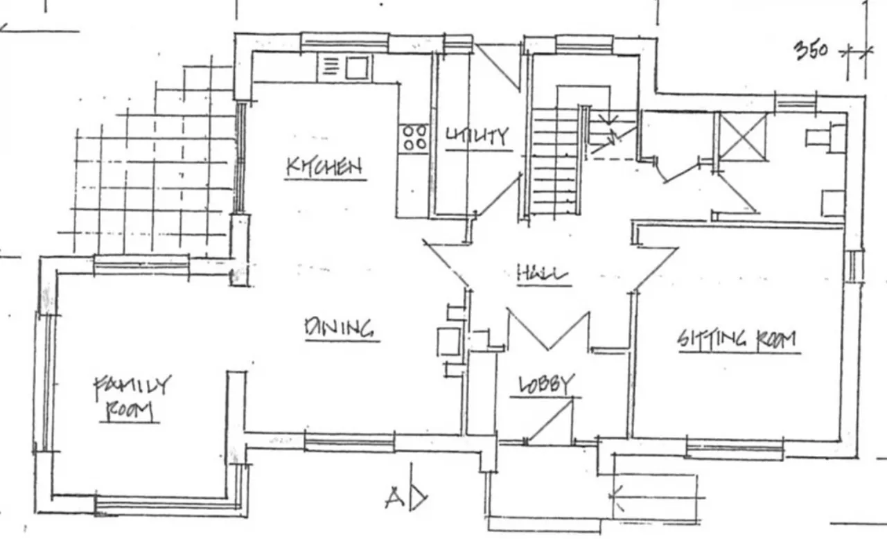
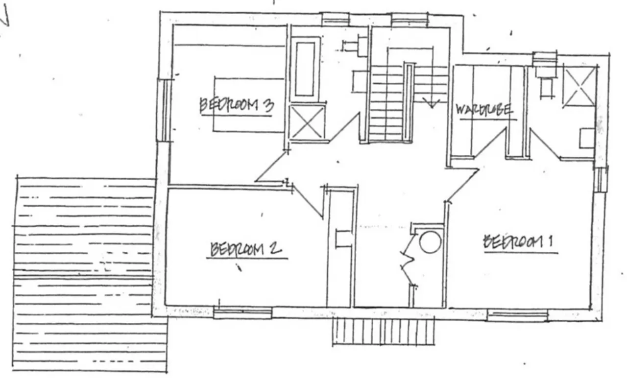
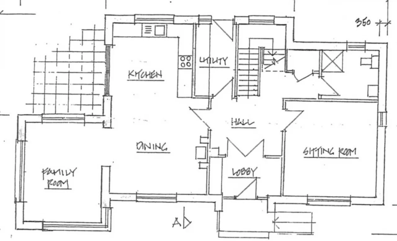
This site is being sold with the benefit of full planning permission for a detached dwelling measuring 180 sq m (1940 sq ft),
This site is a fantastic location for a modern house in a most desirable residential location.
Features
Located in the sought after area of Castlewray
Enjoys beautiful views over Lough Swilly
Within close proximity to both Ramelton Village and Letterkenny Town.
Within the catchment area of Woodlands National School
Full Planning Permission granted for the construction of a detached residence measuring 180 sq m (1940 sq ft)
About the Area
Letterkenny is the largest and most populous town in County Donegal, located on the River Swilly. Along with the nearby city of Derry, it forms the major economic core of the north-west of Ireland. Letterkenny is renowned for its night-life. It has been identified as one of Europe's fastest growing towns by business owners. The town's major employers include the General Hospital, Pramerica, and the Department of Social and Family Affairs. There are 5 primary schools and 4 secondary schools in the town.
Letterkenny is well served by public transport. Bus Éireann and private coach companies operate a number of services to Dublin, Derry, and Galway. Two national primary roads serve the town: the N13 from the South (Stranorlar) and the N14 from the East (Lifford).
Get Directions Buying property is a complicated process. With over 40 years’ experience working with buyers all over Ireland, we’ve researched and developed a selection of useful guides and resources to provide you with the insight you need..
From getting mortgage-ready to preparing and submitting your full application, our Mortgages division have the insight and expertise you need to help secure you the best possible outcome.
Applying in-depth research methodologies, we regularly publish market updates, trends, forecasts and more helping you make informed property decisions backed up by hard facts and information.
Need Help?
Our AI Chat is here 24/7 for instant support
Help To Buy Scheme
The property might qualify for the Help to Buy Scheme. Click here to see our guide to this scheme.
First Home Scheme
The property might qualify for the First Home Scheme. Click here to see our guide to this scheme.
