Thank you
Your message has been sent successfully, we will get in touch with you as soon as possible.
€80,000
Contact Us
Our team of financial experts are online, available by call or virtual meeting to guide you through your options. Get in touch today
Error
Could not submit form. Please try again later.
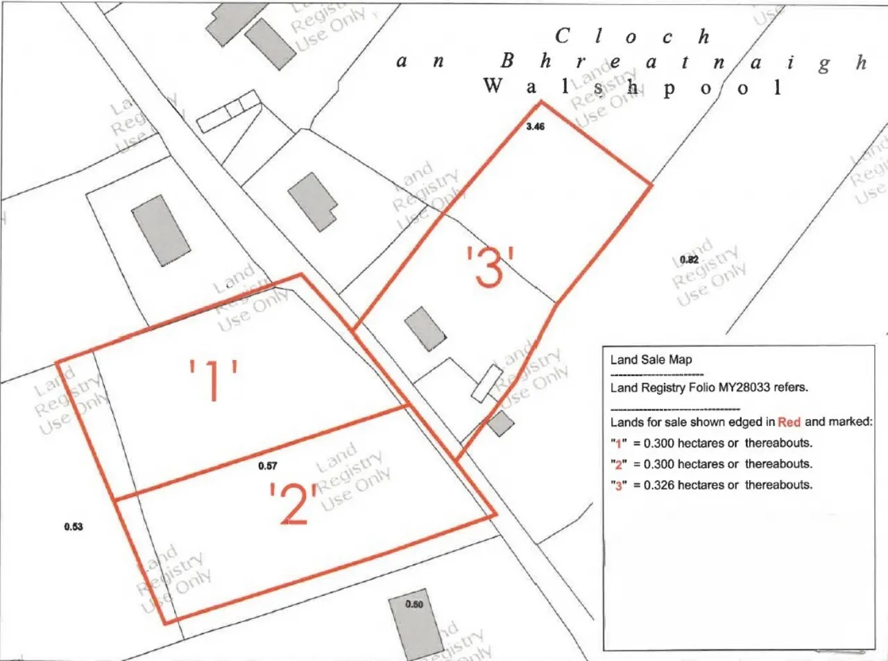
SIte SPP Welshpool
Site 3
Belcarra
Castlebar
Co Mayo
Description
**To place your own offer on this property, please visit SherryFitz.ie and register for your mySherryFitz account*
This residential site of approximately 0.326ha/0.81 acres is being sold subject to planning permission. The land is part of folio MY28033. There is an old shed on this land.
This site would ideally suit somone who would meet Mayo County Council's planning requirements.
The site is located in a quite countryside location, yet very convenient to both Castlebar and Balla, being less than a 10 minute drive from both.
From Castlebar town, take the L1704 road signposted Belcarra. On arrival into Belcarra village, take a left signposted Balla. Travel down this road for approximately 800m and turn right. After 1.1km the site is located on your left
About the Area
Castlebar is the largest town in Mayo, by population. Castlebar's population boomed in the late 1990s, rising by one-third in six years, and the town is still growing. According to the 2011 Census it stands at 10,826. A campus of Galway-Mayo Institute of Technology and the Country Life section of the National Museum of Ireland are two important local amenities. The town is linked by railway to Dublin, Westport and Ballina. The town is surrounded by several villages. The main route to the area by road is the N5.
Get Directions Buying property is a complicated process. With over 40 years’ experience working with buyers all over Ireland, we’ve researched and developed a selection of useful guides and resources to provide you with the insight you need..
From getting mortgage-ready to preparing and submitting your full application, our Mortgages division have the insight and expertise you need to help secure you the best possible outcome.
Applying in-depth research methodologies, we regularly publish market updates, trends, forecasts and more helping you make informed property decisions backed up by hard facts and information.
Need Help?
Our AI Chat is here 24/7 for instant support
Help To Buy Scheme
The property might qualify for the Help to Buy Scheme. Click here to see our guide to this scheme.
First Home Scheme
The property might qualify for the First Home Scheme. Click here to see our guide to this scheme.
