Thank you
Your message has been sent successfully, we will get in touch with you as soon as possible.
€695,000
Contact Us
Our team of financial experts are online, available by call or virtual meeting to guide you through your options. Get in touch today
Error
Could not submit form. Please try again later.
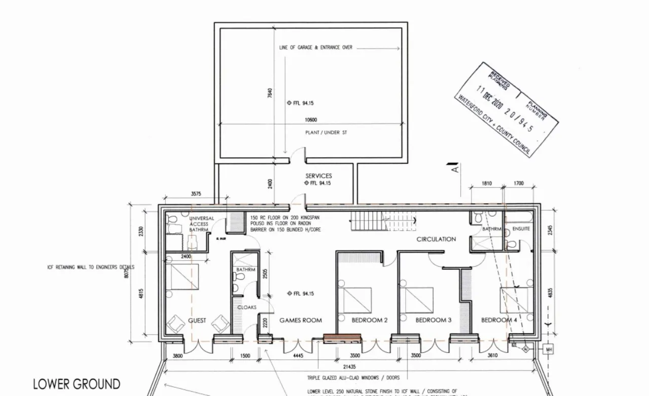
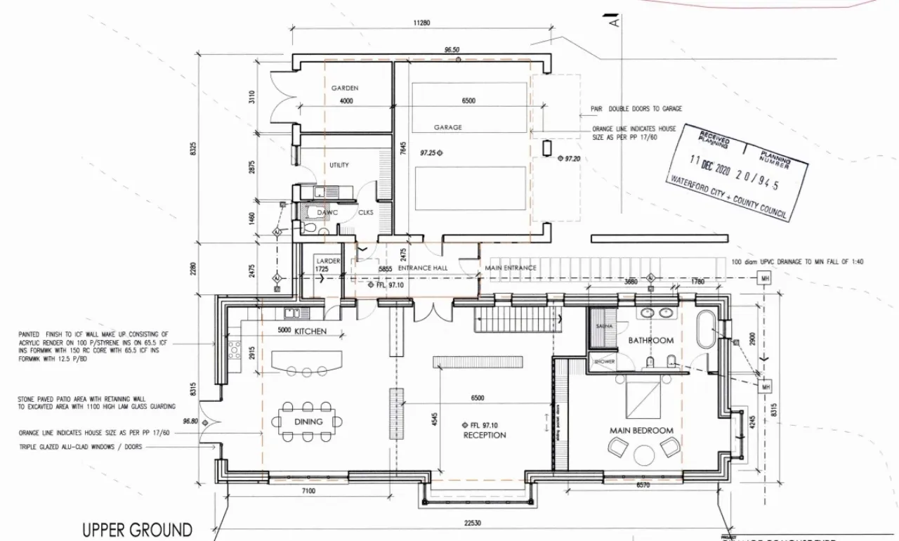
Site With Full Planning Permission
Clonea Beach Middle
Clonea
Dungarvan
Co Waterford
Description
Standing on 1.5 acres approx. this phenomenal site has full "ready to go" planning permission for a magnificent architecturally designed residence. Planning granted 4th May 2022 and live until 4th May 2027.
With panoramic sea views over Dungarvan Bay and direct access onto the famous blue flag Clonea Beach, the site is less than 10 minutes from Dungarvan town centre and is directly opposite the most stunning vantage point on the Waterford Greenway cycle track.
For further information contact David Reynolds on 058 23444
Features
Coastal site.
Full "ready to go" planning permission.
Granted 4th May 2022 - 5 years.
Direct access to Clonea Beach.
Directly opposite Waterford Greenway cycle track.
Less than 10 minutes to Dungarvan town centre.
Close proximity to N25 main route.
About the Area
Dungarvan (Irish: Dún Garbhán) is a seaside resort town and harbour, situated on the N25 national primary road and the R672 and R675 regional roads. The nearest airports are Waterford Airport, which is 50km away and the larger Cork Airport, which is 80km away. Dungarvan is at the mouth of the Colligan River, which divides the town into two parts. Dungarvan Harbour as such is formed by The Quay (on the town side) and The Causeway. Outside the harbour, a 3 km sandbar, "The Cunnigar" defines the western limit of the 4 km-wide Dungarvan Bay. There is a well-maintained concrete slipway in Dungarvan town, suitable for launching vessels up to eight metres in length. Moorings are usually made available to visiting yachts by Dungarvan Harbour Sailing Club, often free of charge.
Get Directions Buying property is a complicated process. With over 40 years’ experience working with buyers all over Ireland, we’ve researched and developed a selection of useful guides and resources to provide you with the insight you need..
From getting mortgage-ready to preparing and submitting your full application, our Mortgages division have the insight and expertise you need to help secure you the best possible outcome.
Applying in-depth research methodologies, we regularly publish market updates, trends, forecasts and more helping you make informed property decisions backed up by hard facts and information.
Need Help?
Our AI Chat is here 24/7 for instant support
Help To Buy Scheme
The property might qualify for the Help to Buy Scheme. Click here to see our guide to this scheme.
First Home Scheme
The property might qualify for the First Home Scheme. Click here to see our guide to this scheme.
