Thank you
Your message has been sent successfully, we will get in touch with you as soon as possible.
€550,000
Contact Us
Our team of financial experts are online, available by call or virtual meeting to guide you through your options. Get in touch today
Error
Could not submit form. Please try again later.
Development Site
Strand Street
Tramore
Co. Waterford
Description
Platform: Offr.io
Date: Wednesday 22nd April 2026
Start Time: 11am
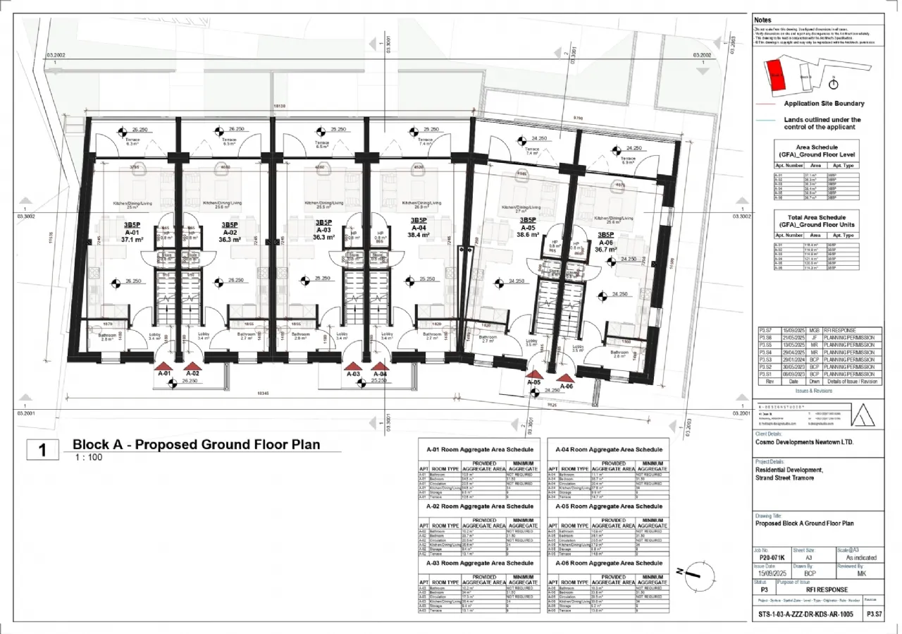
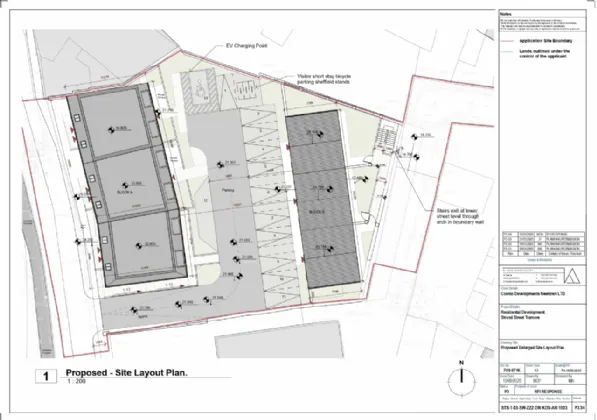
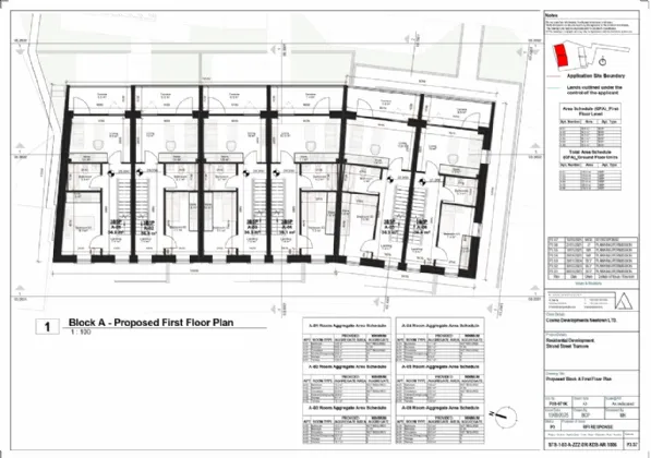
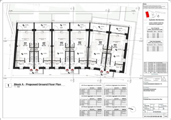
Development site with planning permission (ref 25/60405) for 11 units.
To view and make offers on this property 24/7, visit sherryfitz.ie and register on mySherryFitz.
The development site is situated at the premises formerly known as The Tramore Hotel, Strand Street, in the heart of Tramore town centre. Adjacent streets include Main St, Queen St, and Broad St. Now derelict, the property occupies a site circa 1440 sq m/0.35 acres which enjoys prominent frontage to Strand Street with the benefit of pedestrian access from the passage way linking Turkey Road with Strand St. The site is situated on an elevated site with superb views over Tramore Bay.
Neighbouring occupiers include AIB, Red Lane boutique, The Vic licensed premises, The Seagull Bakery and The Vee restaurant. The subject offers enormous possibilities in a prime location within one of Ireland’s fastest growing towns and within 300m of Tramore beach.
Every possible leisure activity is catered for in the town itself, or in the surrounding areas. Outdoor activities and sports of every type indoor activities including horse and greyhound racing, theatre, cinema, several types of children’s play areas as well as montessori, primary and post primary schools.
Tramore is filled with several supermarkets, restaurants, bars and takeaways, but if you want even more choice, Waterford City is merely 10 minutes away. Ireland’s fifth-biggest city, Waterford is home to major employers such as Bausch & Lomb, Sanofi, Teva Pharmaceuticals and GlaxoSmithKline, as well as the best of shopping, leisure facilities, nightlife and more.
About the Area
Tramore is the South East’s leading Holiday Resort, with a complete range of facilities for the holiday maker, from top class Accommodation, to leisure activities such as Splashworld, the largest indoor aqua adventure playground in the South East, surfing, fishing, hiking, horse riding, golf and Amusement Park to amuse all ages.
Every possible leisure activity is catered for in the town itself, or in the surrounding areas. Outdoor activities and sports of every type, indoor activities including horse and greyhound racing, theatre, cinema, several types of children’s play place, a wide variety of quality restaurants, and not forgetting the region’s two top visitor attractions, the amazing Waterford Crystal Visitor’s and Reginald’s Tower.
Get Directions Buying property is a complicated process. With over 40 years’ experience working with buyers all over Ireland, we’ve researched and developed a selection of useful guides and resources to provide you with the insight you need..
From getting mortgage-ready to preparing and submitting your full application, our Mortgages division have the insight and expertise you need to help secure you the best possible outcome.
Applying in-depth research methodologies, we regularly publish market updates, trends, forecasts and more helping you make informed property decisions backed up by hard facts and information.
Need Help?
Our AI Chat is here 24/7 for instant support
Help To Buy Scheme
The property might qualify for the Help to Buy Scheme. Click here to see our guide to this scheme.
First Home Scheme
The property might qualify for the First Home Scheme. Click here to see our guide to this scheme.
