Thank you
Your message has been sent successfully, we will get in touch with you as soon as possible.
€12,000 per year
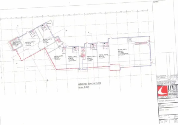
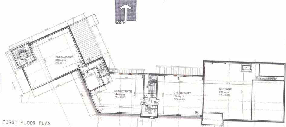
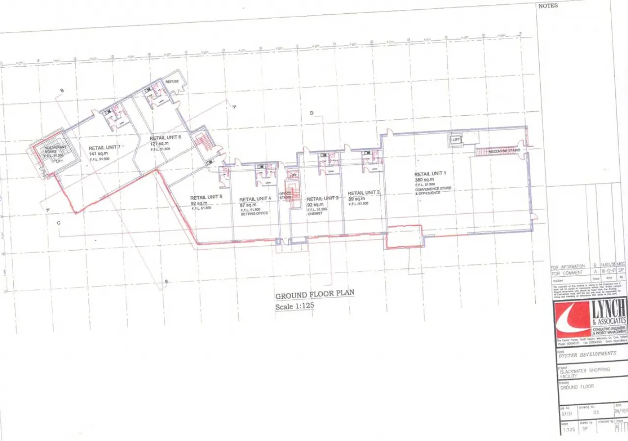
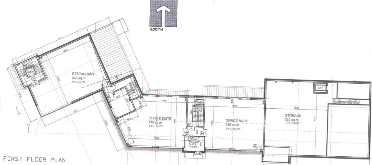
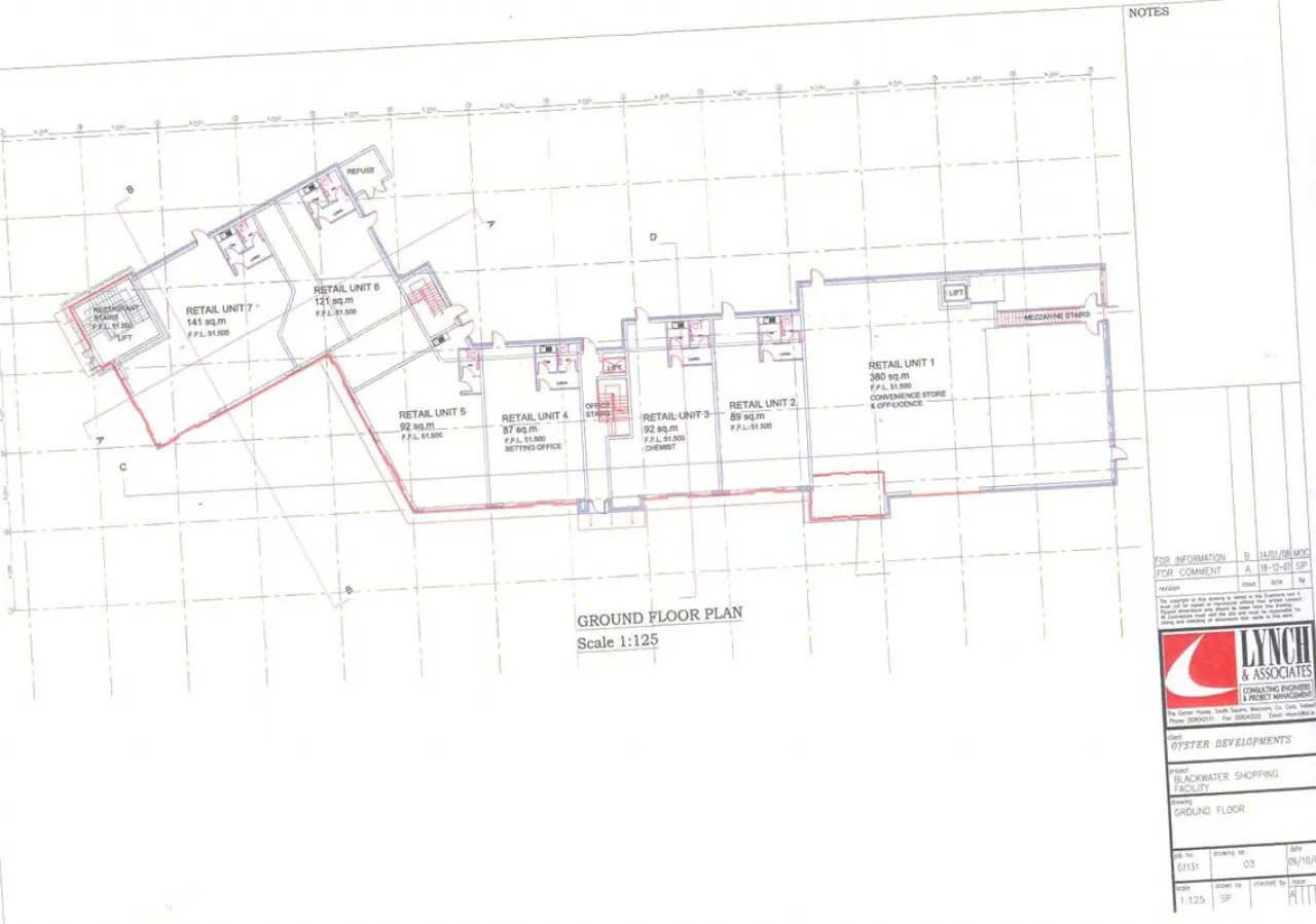
Retail Units
Blackwater Shopping Centre
Fermoy
Co Cork
Description
Blackwater Shopping Centre incorporates a purpose built supermarket of 4,100 sq. ft together with 6 retail units, 3 offices and 1 restaurant.
Rent from €12000 plus rates and insurance
For further details contact Michael O'Donovan at Sherry FitzGerald O'Donovan
About the Area
Fermoy (pop. 2,270) lies about 30 miles to the north-east of Cork city on the Blackwater River. It was a garrison town and at one time had the largest concentration of troops in the country. Today the town is well known for angling, particularly salmon. It is strategically located, just where the main roads from Dublin to Cork and Rosslare to Killarney intersect.
The Blackwater valley is well known for its period houses and one of the finest, Castle Hyde, now owned by Micheal Flatley of Riverdance, is just outside the town. It was once the home of Douglas Hyde, founder of the Gaelic League and the first President of the Irish Republic.
Get Directions Buying property is a complicated process. With over 40 years’ experience working with buyers all over Ireland, we’ve researched and developed a selection of useful guides and resources to provide you with the insight you need..
From getting mortgage-ready to preparing and submitting your full application, our Mortgages division have the insight and expertise you need to help secure you the best possible outcome.
Applying in-depth research methodologies, we regularly publish market updates, trends, forecasts and more helping you make informed property decisions backed up by hard facts and information.
Need Help?
Our AI Chat is here 24/7 for instant support
Help To Buy Scheme
The property might qualify for the Help to Buy Scheme. Click here to see our guide to this scheme.
First Home Scheme
The property might qualify for the First Home Scheme. Click here to see our guide to this scheme.
