Thank you
Your message has been sent successfully, we will get in touch with you as soon as possible.
€1,500 per month
Office/Retail
West End
Rathmore
Co. Kerry
P51 H9X6
Description
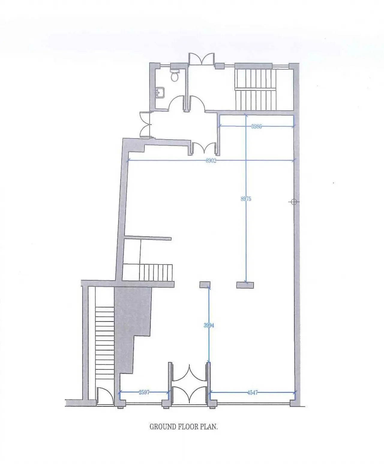
Suitable for office or retail use, with 123 sq.m./1,323 sq. ft. open space and toilet facilities at ground floor level.
Rooms
Main Room 12.5 x 9.5 + 4 x 1.5
Downstairs toilet Wash hand basin, wc
FIRST FLOOR
Landing
Room One 3.87 x 3.72
Room Two 3.4 x 3.5
Room Three 3.6 x 6.1
Room Four 7 x 3.5
Room Five 2.6 x 3.1
Room Seven 2.67 x 2.8
Toilet Wash hand basin, wc
BER Information
BER Number: 810531154
Energy Performance Indicator: 660.3
About the Area
Rathmore is a small town in Kerry, lying immediately west of the border with Cork. Rathmore is divided into two parts. One being the main commercial centre and the other being the administrative centre where the schools and churches are located. It lies at the heart of the Sliabh Luachra area known for its traditional Irish music and culture. The local GAA club is Rathmore GAA. The SAG (social action group) is in Rathmore and helps the elderly in the area. The town host the farmer's market every Saturday in the community centre.
Scoil Phobail Slaibh Luachra is a large feeder school for the Universities and other third level institutions in Ireland particularly for University College Cork and the University of Limerick. The Mallow-Tralee railway line passes through the town and offers frequent services to Cork, Dublin Heuston and Tralee via Killarney and Farranfore (for Kerry Airport) . It is particularly busy during the weekend and evenings and is the access point for all rail users in the surrounding environs.
Bus Éireann also offers a service between Cork and Tralee via Rathmore.
Get Directions Buying property is a complicated process. With over 40 years’ experience working with buyers all over Ireland, we’ve researched and developed a selection of useful guides and resources to provide you with the insight you need..
From getting mortgage-ready to preparing and submitting your full application, our Mortgages division have the insight and expertise you need to help secure you the best possible outcome.
Applying in-depth research methodologies, we regularly publish market updates, trends, forecasts and more helping you make informed property decisions backed up by hard facts and information.
Need Help?
Our AI Chat is here 24/7 for instant support
Help To Buy Scheme
The property might qualify for the Help to Buy Scheme. Click here to see our guide to this scheme.
First Home Scheme
The property might qualify for the First Home Scheme. Click here to see our guide to this scheme.
