Thank you
Your message has been sent successfully, we will get in touch with you as soon as possible.
€15,000 per year
Ormonde Mews
Clonmel
Co. Tipperary
E91 T9X7
Description
This versatile commercial unit extends to approx. 76 m² of internal space and is ideally positioned in Ormonde Mews, Clonmel, directly opposite from the Train Station. The property benefits from a secure yard with electric gates, providing added convenience and security.
Suitable for a variety of uses, the unit offers great flexibility in a central and accessible location.
Features
CCTV and Alarm
Electric Gates
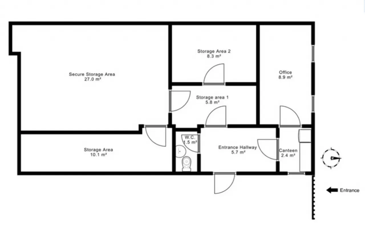
Rooms
Canteen 1.98m x 1.47m Fitted Units, Sink, Drainer, Tile Splashback, and Fridge
Office 4.27m x 2.29m
W.C. 2.01m x 1.04m
Storage Area 4.27m x 2.29m Divided into two Offices
Secure Storage Area 6.65m x 5.92m Solid Steel Safe Door, Mass Concrete Walls, Multi Lock System, Time Locks
BER Information
BER Number: 801082009
Energy Performance Indicator: 434.62
About the Area
Clonmel (Irish: Cluain Meala) is the largest town in county Tipperary. In recent times Clonmel and its environs has become the home to many large multi-national companies, particularly in the medical sector. Bulmers cider is brewed in a complex two kilometres east of the town, and a small orchard serving the brewery can be seen from the road when approaching Clonmel from that direction.
Get Directions Buying property is a complicated process. With over 40 years’ experience working with buyers all over Ireland, we’ve researched and developed a selection of useful guides and resources to provide you with the insight you need..
From getting mortgage-ready to preparing and submitting your full application, our Mortgages division have the insight and expertise you need to help secure you the best possible outcome.
Applying in-depth research methodologies, we regularly publish market updates, trends, forecasts and more helping you make informed property decisions backed up by hard facts and information.
Need Help?
Our AI Chat is here 24/7 for instant support
Help To Buy Scheme
The property might qualify for the Help to Buy Scheme. Click here to see our guide to this scheme.
First Home Scheme
The property might qualify for the First Home Scheme. Click here to see our guide to this scheme.
