Thank you
Your message has been sent successfully, we will get in touch with you as soon as possible.
€199,000 Sale Agreed
Contact Us
Our team of financial experts are online, available by call or virtual meeting to guide you through your options. Get in touch today
Error
Could not submit form. Please try again later.
2 Laurel Drive
Esker Hills
Portlaoise
R32 R970
Description
Rooms
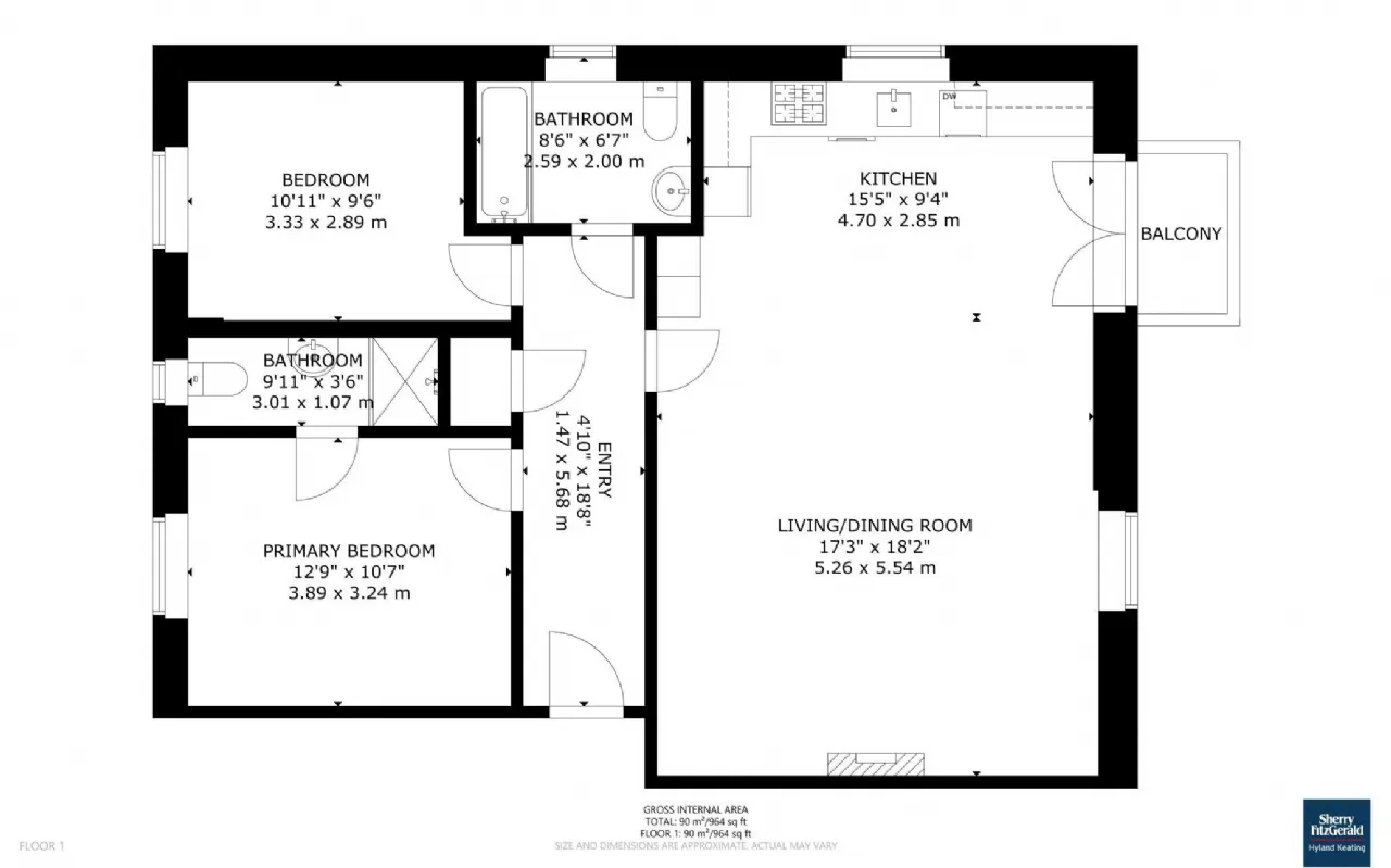
Primary Bedroom 3.89 x 3.24m This spacious and well-lit primary bedroom features sleek wood-effect flooring and a clean, neutral décor, offering a relaxing and versatile space. A large built-in wardrobe with contemporary panel detailing provides ample storage while maximizing floor space. The room benefits from an en-suite bathroom with a modern tiled finish, glass-enclosed shower, and stylish fixtures. With multiple doorways offering access to the hallway and en-suite, this room combines comfort and practicality.
Bathroom 2.59 x 2.00m The ensuite is well-appointed with a contemporary design, featuring floor-to-ceiling neutral tiling accented by a rich brown vertical feature panel. It includes a modern pedestal sink, a chrome mixer tap, and a matching wall-mounted mirror with integrated lighting above. A fully tiled corner shower enclosure with a glass screen offers convenience and easy maintenance. Additional highlights include a sleek chrome heated towel rail and practical fittings such as a towel ring and glass shelf. Bright, clean, and functional, this space is perfect for everyday comfort and style.
Bedroom 3.33 x 2.89m The second bedroom is a bright and functional space, ideal as a guest room, child’s bedroom, or home office. It features stylish wood-effect flooring and crisp white walls, offering a neutral palette ready for personalisation. A large window allows in plenty of natural light and offers a pleasant view of the surrounding greenery, while a radiator ensures comfort year-round. This room also includes a built-in wardrobe in a warm wood finish, providing valuable storage without compromising floor space. Compact yet practical, this room makes the most of its layout and is perfect for flexible living.
Kitchen 4.70 x 2.85m Kitchen This contemporary kitchen is both stylish and functional, featuring a striking teal cabinetry set against warm-toned tiled splashbacks. The space is well laid out with a range of base and wall units offering generous storage, along with integrated appliances including an oven, gas hob, and extractor fan. A washing machine is conveniently positioned below the countertop, and there is ample space for a full-height fridge-freezer. Natural light floods the room through a large window above the sink, creating a bright and pleasant cooking environment. Tiled flooring throughout enhances durability and ease of maintenance, while double doors open out onto a private balcony, making al fresco dining and entertaining a breeze. This kitchen is ideal for both everyday use and hosting guests.
Living/Dining Room 5.26 x 5.54m Open-Plan Living & Dining Area This bright and airy open-plan living and dining space is the heart of the home, ideal for both relaxing and entertaining. The room boasts a stylish mix of wood-effect flooring and large format tiles, clearly defining the lounge and kitchen/dining areas. A modern electric fireplace serves as a cosy focal point in the spacious living area, which is bathed in natural light from dual aspect windows. The contemporary kitchen features bold teal cabinetry with sleek chrome handles, complemented by neutral-toned splashback tiles and countertops. Integrated appliances include an oven, hob, extractor fan, and washing machine, with space for additional freestanding units. French doors open out to a private balcony with charming views over the green space and nearby water feature—perfect for morning coffee or evening drinks. Recessed ceiling lights throughout add a modern touch, while the seamless layout ensures a perfect flow between cooking, dining, and lounging.
Balcony This apartment features a charming private balcony accessible through double glass doors, offering a seamless transition between indoor and outdoor living. The balcony is finished with wooden decking and enclosed by elegant wrought-iron railings for safety and style. Overhead, a partially covered section provides a touch of shade and architectural detail, supported by decorative metal columns. The space overlooks a peaceful, tree-lined area with views of a landscaped parking lot and surrounding greenery, creating a serene setting perfect for enjoying your morning coffee or unwinding in the evening.
BER Information
BER Number: 100579614
Energy Performance Indicator: 104.62 kWh/m2/yr
About the Area
Portlaoise stands at a major crossroads (Dublin, Limerick, Cork) although construction in the 1990s of the M7 motorway, which bypasses the town, has reduced traffic congestion in the town centre. The town has a railway station served by intercity trains between Dublin and Cork and by Dublin commuter services. Córas Iompair Éireann opened a rail depot south-west of Portlaoise town centre in 2008. The depot provides a high quality maintenance and servicing facility for the 183 new intercity railcars and some facilities for outer suburban railcars serving the Kildare Route.
Get Directions Buying property is a complicated process. With over 40 years’ experience working with buyers all over Ireland, we’ve researched and developed a selection of useful guides and resources to provide you with the insight you need..
From getting mortgage-ready to preparing and submitting your full application, our Mortgages division have the insight and expertise you need to help secure you the best possible outcome.
Applying in-depth research methodologies, we regularly publish market updates, trends, forecasts and more helping you make informed property decisions backed up by hard facts and information.
Need Help?
Our AI Chat is here 24/7 for instant support
Help To Buy Scheme
The property might qualify for the Help to Buy Scheme. Click here to see our guide to this scheme.
First Home Scheme
The property might qualify for the First Home Scheme. Click here to see our guide to this scheme.
