Thank you
Your message has been sent successfully, we will get in touch with you as soon as possible.
€150,000 Sale Agreed
Contact Us
Our team of financial experts are online, available by call or virtual meeting to guide you through your options. Get in touch today
Error
Could not submit form. Please try again later.
32 Riverside
Coolshannagh
Monaghan
H18 VK66
Description
Sherry Fitzgerald Conor McManus are pleased to offer to the market, No. 32 Riverside, Coolshannagh, Monaghan.
A fantastic opportunity to purchase a well-located two-bedroom apartment just minutes from Monaghan town centre, the bypass, and all major road networks.
Ideal for commuters and locals alike, this home also benefits from easy access to 'The Green Way', a popular walking route perfect for joggers, dog walkers, and families, offering a wonderful amenity right on your doorstep. Positioned to the rear of this well-maintained development, No. 32 enjoys a peaceful and private countryside outlook. The apartment is further enhanced by its own private front door, offering a sense of individuality and ease of access. The accommodation is laid out to provide: The entrance hall, open-plan kitchen/
living area, two no. bedrooms and the bathroom. Whether you’re a first-time buyer, downsizer, or investor, this property combines location, space, and convenience in one attractive package. Viewing is highly recommended.
Features
Lower ground floor apartment
Spacious throughout
Very private aspect
Countryside views
Own entrance
Double glazing
ATC iLifestyle smart heaters (remote controlled)
Ten minute walk to Monaghan town centre
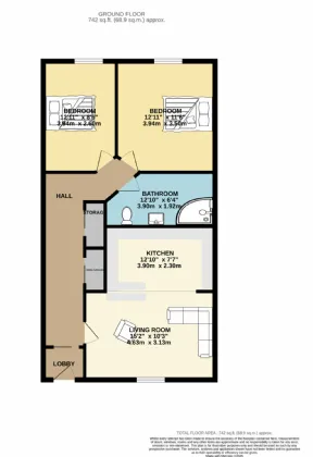
Rooms
Living Room: 4.39m x 3.13m Open-plan living and dining area that exudes warmth and modern elegance. Wooden flooring flows throughout, adding natural charm and a sense of continuity to the space. A large window invites an abundance of natural light, creating an airy and inviting atmosphere.
Kitchen: 2.55m x 3.89m The kitchen features fitted units offering ample storage, complemented by a fully tiled floor and tiled backsplash. An integrated oven and hob add convenience and style, seamlessly blending into the workspace.
Hallway: 5.33m x 1.27m Hallway includes a hot press and a second built in storage press.
Bedroom 1: 3.19m x 3.95m Large enough to accommodate a double bed and additional furnishings. A wooden floor adds warmth and convenience.
Bedroom 2: 3.95m x 2.49m Single bedroom featuring a wooden floor. Ideal as a guest room, home office, or child’s bedroom, this versatile space offers comfort and functionality in a compact, easy-to-furnish layout.
Bathroom: 3.08m x 1.51m The bathroom offers a contemporary finish with vinyl flooring and PVC wall panels, ensuring both style and easy maintenance.Featuring a WC, wash hand basin, and a fully enclosed shower unit, perfect for daily convenience. Practical shelving provides smart storage solutions, keeping essentials within easy reach.
BER Information
BER Number: 107307316
Energy Performance Indicator: 260.49kWh/m2yr
About the Area
Monaghan Town is a pictuesque surrounded by Drumlin hinterland; made famous by the poet Patrick Kavanagh. Monaghan Town has a vibrant night life and is renowned for its restaurants. Local industries include timber-frame manufacturing, forklift development and an IDA site. Monaghan Town is an ideal base with lots of local attractions, and just a short drive from Northern Ireland.
Get Directions Buying property is a complicated process. With over 40 years’ experience working with buyers all over Ireland, we’ve researched and developed a selection of useful guides and resources to provide you with the insight you need..
From getting mortgage-ready to preparing and submitting your full application, our Mortgages division have the insight and expertise you need to help secure you the best possible outcome.
Applying in-depth research methodologies, we regularly publish market updates, trends, forecasts and more helping you make informed property decisions backed up by hard facts and information.
Need Help?
Our AI Chat is here 24/7 for instant support
Help To Buy Scheme
The property might qualify for the Help to Buy Scheme. Click here to see our guide to this scheme.
First Home Scheme
The property might qualify for the First Home Scheme. Click here to see our guide to this scheme.
