Thank you
Your message has been sent successfully, we will get in touch with you as soon as possible.
€375,000 Sold
Contact Us
Our team of financial experts are online, available by call or virtual meeting to guide you through your options. Get in touch today
Error
Could not submit form. Please try again later.
1 Silverdale Court
King Edward Road
Bray
Wicklow
A98 T181
Description
Accessed via electronic entrance gates which incorporate a pedestrian gate off the leafy King Edward Road, this small development consists of only 20 apartments in total and benefits from well-maintained communal areas with mature trees and ample parking for residents. The spacious accommodation which measures 80sqm/861sq.ft. approx. comprises of a wide entrance hallway, to the left are two double bedrooms (the main bedroom is ensuite), a storage room and a family bathroom. Straight ahead leads to the large living room which is semi open plan leading into the dining area and kitchen. The living room has patio doors leading outside to paved patio and the communal gardens which benefit from a nice south and westerly aspect.
Silverdale Court is ideally situated in a mature and highly desirable location within a short stroll of Bray’s Main Street which offers a selection of shops, cafes, bars & restaurants and other businesses. The newly opened Bray Central with a Pennys, Sports Direct, Butlers Cafe is a good addition to the town. Bray is a thriving coastal town that is situated 22km south of Dublin City Centre and has everything to meet ones daily needs; it is well serviced by good transport links including regular Dublin Bus and DART services, the N11/M11/M50 road network, whilst the Luas at with Cherrywood or Carrickmines is a short drive away. The area is blessed with an array of local attractions such as the famous ‘mile-long’ Victorian seafront promenade, Bray Head, Kilruddery House & Gardens, Powerscourt House & Gardens, the Wicklow Mountains with numerous walking trails. For some culture, the Mermaid Theatre offers a range of gigs and the town also has a good choice of sports and recreational facilities.
Contact Us
Our team of financial experts are online, available by call or virtual meeting to guide you through your options. Get in touch today
Thank you
Your message has been sent successfully, we will get in touch with you as soon as possible.
Error
Could not submit form. Please try again later.
Features
• Spacious ground floor 2-bed, 2-bath apartment.
• Excellent central location in a highly desirable and leafy setting.
• Walking distance to all local services and amenities.
• Good transport links with regular Dublin Bus and DART services.
• Gated development with only 20 apartments.
• Communal parking and grounds.
• Management Agent: Silverdale Court Management Company
Yearly Fee: €3332.00
Current Rent €1615 last reviewed in 2023
Services:
• Gas fired central heating.
• Mains water & sewerage.
• Usual TV, phone and broadband services.
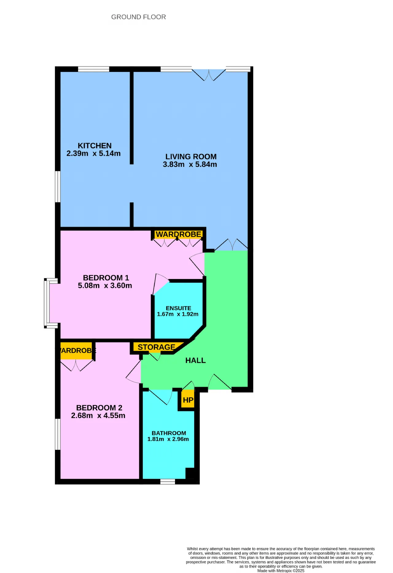
Rooms
Living Room 3.83m x 5.84m
Kitchen 2.39m x 5.14m
Bedroom 1 5.08m x 3.60m
Ensuite 1.67m x 1.92m
Bedroom 2 2.68m x 4.55m
Bathroom 1.81m x 2.96m
BER Information
BER Number: 118286053
Energy Performance Indicator: 165.74 kWh/m²/yr
About the Area
Bray is known as the Gateway to the Garden of Ireland, and is the longest established seaside town in the country. It is only 19km (12 miles) south of Dublin City and is easily reached by DART, Train, Bus or the N11 road. There is an attractive beach and a spacious esplanade. The scenic Cliff Walk on the eastern side of Bray Head, which continues, into Greystones offers walkers a feast of views on the way.
The town boasts fine period housing, shops, restaurants and evening entertainment. Also available in the immediate locality are golf courses, tennis, fishing, sailing, and horse riding. Another feature of Bray is the variety of amusement centres and carnival attractions, bowling alley, and nightclubs. It really is a stand-alone town with the additional advantage of being on the doorstep of Dublin.
Get Directions Buying property is a complicated process. With over 40 years’ experience working with buyers all over Ireland, we’ve researched and developed a selection of useful guides and resources to provide you with the insight you need..
From getting mortgage-ready to preparing and submitting your full application, our Mortgages division have the insight and expertise you need to help secure you the best possible outcome.
Applying in-depth research methodologies, we regularly publish market updates, trends, forecasts and more helping you make informed property decisions backed up by hard facts and information.
Need Help?
Our AI Chat is here 24/7 for instant support
Help To Buy Scheme
The property might qualify for the Help to Buy Scheme. Click here to see our guide to this scheme.
First Home Scheme
The property might qualify for the First Home Scheme. Click here to see our guide to this scheme.
