Thank you
Your message has been sent successfully, we will get in touch with you as soon as possible.
€370,000
Contact Us
Our team of financial experts are online, available by call or virtual meeting to guide you through your options. Get in touch today
Error
Could not submit form. Please try again later.
Sunny Side
Killaloan
Clonmel
Co. Tipperary
E91 K597
Description
The residence is in need of full renovation and modernisation throughout, offering an excellent opportunity for purchasers to create a home tailored to their own taste and requirements. The accommodation, while currently dated, provides a solid footprint with potential to reconfigure and extend (subject to planning permission).
Externally, the property is complemented by a yard area, providing valuable outdoor space and potential for landscaping, storage, or further development.
Ideally suited to buyers seeking a renovation project, this property would appeal to owner-occupiers, investors, or builders looking to add value in a well-established and convenient location.
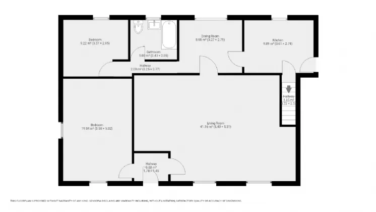
Rooms
Living Room 8.43m x 5.51m
Kitchen 3.61m x 2.74m
Dining Room 3.27m x 2.75m
Bathroom 2.43m x 2.05m
Bedroom 1 3.58m x 5.32m
Bedroom 2 3.37m x 2.95m
Attic Space 1 8.70m x 4.85m
Attic Space 2 3.55m x 4.85m
BER Information
BER Number: 109118851
Energy Performance Indicator: 577.61
About the Area
Clonmel (Irish: Cluain Meala) is the largest town in county Tipperary. In recent times Clonmel and its environs has become the home to many large multi-national companies, particularly in the medical sector. Bulmers cider is brewed in a complex two kilometres east of the town, and a small orchard serving the brewery can be seen from the road when approaching Clonmel from that direction.
Get Directions Buying property is a complicated process. With over 40 years’ experience working with buyers all over Ireland, we’ve researched and developed a selection of useful guides and resources to provide you with the insight you need..
From getting mortgage-ready to preparing and submitting your full application, our Mortgages division have the insight and expertise you need to help secure you the best possible outcome.
Applying in-depth research methodologies, we regularly publish market updates, trends, forecasts and more helping you make informed property decisions backed up by hard facts and information.
Need Help?
Our AI Chat is here 24/7 for instant support
Help To Buy Scheme
The property might qualify for the Help to Buy Scheme. Click here to see our guide to this scheme.
First Home Scheme
The property might qualify for the First Home Scheme. Click here to see our guide to this scheme.
