Thank you
Your message has been sent successfully, we will get in touch with you as soon as possible.
€295,000 Sale Agreed
River House B&B
Gweedore Road
Dungloe
Co. Donegal
F94AP97
Description
River House B&B is set on a spacious site and was recently renovated by the current owners. This guest house offers accommodation consisting of 12 rooms which are a combination of single and double.
The property also benefits from a further self contained ground floor apartment comprising 3 bedrooms.
The guest house is conveniently located in the heart of Dungloe Town.
Dungloe, is a town on the west coast of County Donegal in Ulster, the northern province in Ireland.
To-day Dungloe is a thriving commercial town - a unique tourist and friendly area where no effort is spared to satisfy the visitor. It is also the home of the now internationally famous 'MARY FROM DUNGLOE' Festival.
It is an ideal location to explore and enjoy all that this wonderful area has to offer including its history, wonderful beaches, and its breath-taking scenery.
On entering the property there is a large reception area, with reception desk and ample waiting area.
The property also offers a large lounge and separate dining room with tea/coffee making facilities and TV’s.
The large commercial kitchen is fully equipped with stainless steel cooking appliances and worktops.
In total the property comprises 9 bedrooms over two floors, a number of which are ensuite.
The property also benefits from a self contained ground floor apartment which comprises open plan kitchen/dining/living area, 3 bedrooms and bathroom, used to generate additional revenue.
Externally there is an attractive partially covered timber decking area with ample seating where the guests can relax.
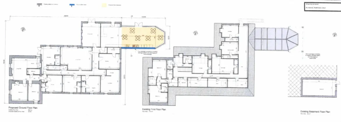
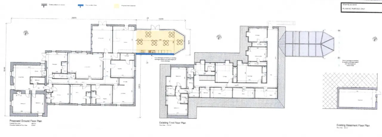
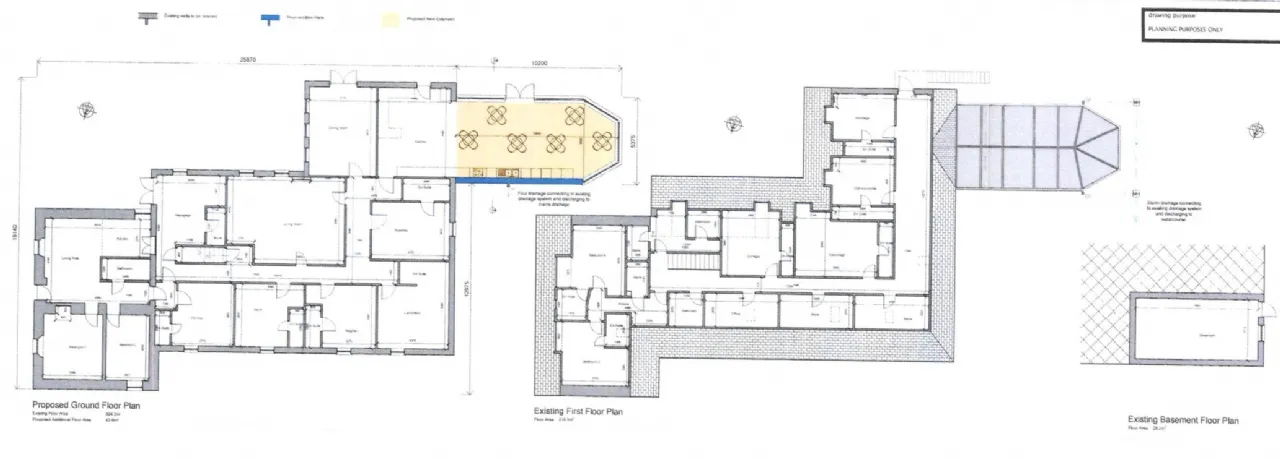
The total area of the property is 304 sq m (3,272 sq ft) Planning permission has been granted for an extension measuring 43.6 sq m (470 sq ft)
Features
Total area of teh property is 527 sq m (5,600 sq ft)
Planning Permission has been granted for an extension measuring 43.6 sq m (470 sq ft)
Situated On spacious site in the Heart of Dungloe Town.
Recently refurbished by the current owners.
12 guest Bedrooms.A number of bedrooms are ensuite
Lounge & Dining Room Area.
Commercial Kitchen.
Separate self contained apartment with 3 bedrooms.
Generous Guest Parking Facilities.
Large partially covered timber decking area
uPVC Windows, Doors, Fascia & Guttering.
Oil fired heating
Being Sold As A Going Concern.
15-minute drive from Carrickfinn Beach and Donegal Airport
10-minute drive from Burtonport (departure point for Arranmore Island)
35-minute drive from Glenveagh National Park
Location
Situated on the north-west coast of County Donegal, Dungloe is a 10-minute drive from Burtonport (departure point for Arranmore Island), 15-minute drive from Carrickfinn Beach and Donegal Airport and a 35-minute drive from Glenveagh National Park.
BER Information
BER Number: 801078668
Energy Performance Indicator: 132.27
About the Area
No description
Get Directions Buying property is a complicated process. With over 40 years’ experience working with buyers all over Ireland, we’ve researched and developed a selection of useful guides and resources to provide you with the insight you need..
From getting mortgage-ready to preparing and submitting your full application, our Mortgages division have the insight and expertise you need to help secure you the best possible outcome.
Applying in-depth research methodologies, we regularly publish market updates, trends, forecasts and more helping you make informed property decisions backed up by hard facts and information.
Need Help?
Our AI Chat is here 24/7 for instant support
Help To Buy Scheme
The property might qualify for the Help to Buy Scheme. Click here to see our guide to this scheme.
First Home Scheme
The property might qualify for the First Home Scheme. Click here to see our guide to this scheme.
