Thank you
Your message has been sent successfully, we will get in touch with you as soon as possible.
€695,000
53 Dublin Street / Vauxhall Street
Balbriggan
Co. Dublin
K32 DW24
Description
8 apartments | suit many uses
53 Dublin Street,
Balbriggan,
Co. Dublin.
K32 DW24.
Rooms
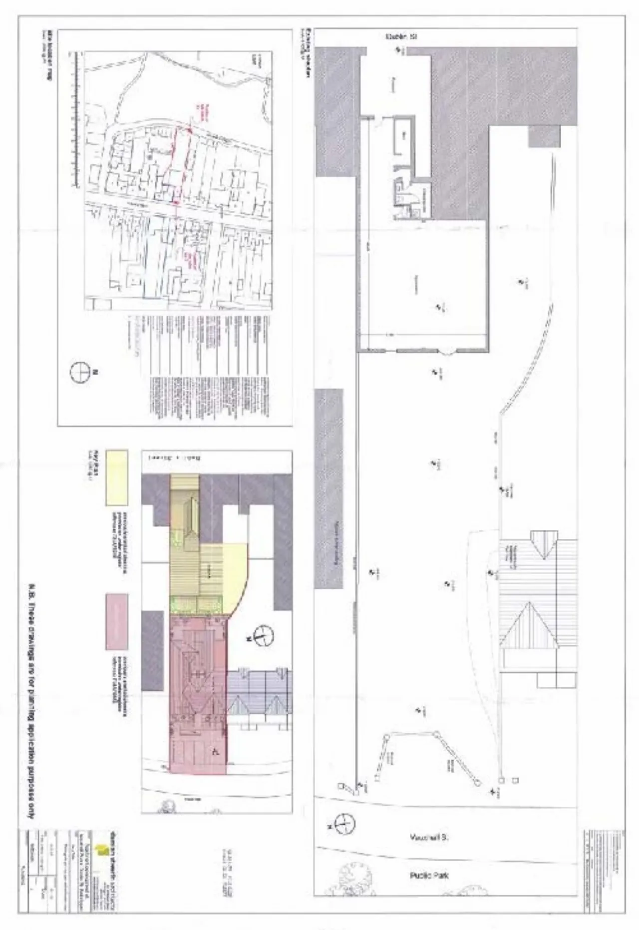
PROPERTY This is a rare opportunity to acquire a town centre property with the benefit of converting the existing buildings and adding a new block to create 8 new apartments for which full planning permission exists reference F23A/0269. Alternatively, the existing quasi-industrial buildings measuring approximately 185 sq m / 1,990 sq ft with ancillary toilet accommodation, coffee dock and a rear yard, can be used for any number of other uses such as a gym, garage, workshop, place of worship, warehouse sales location etc.
LOCATION The property is situated with road frontage along Dublin Street, R132, in Balbriggan and return road frontage to Vauxhall Street with vehicular access therefrom. Dublin Street forms part of Main Street and is the principal thoroughfare in the town. Balbriggan is a coastal town, located approximately 36km northeast of Dublin City and 18km southwest of Drogheda, midway along the east coast of Ireland. The town is strategically situated on the important Dublin/Belfast Economic Corridor and positioned between the M1 Motorway and the east coast. The town benefits from excellent transportation links that include the M1 Motorway, R132 regional road, Dublin/Belfast rail line with Iarnrod Eireann train services, Dublin Bus and Bus Eireann services. Dublin Airport and the M50 ring road are situated within a 20minute drive of the town. The property occupies a high profile position on Dublin Street between the junctions with Market Green and Vauxhall Street, a few doors from Progressive Credit Union to the north and Balbriggan Primary Care Centre to the south – almost opposite Harry Hire, a local legend.
AREA Any stated measurements or areas are provided for information purposes only as are any photos or maps indicting boundaries. Intending purchasers must independently satisfy themselves as to all correct measurements and boundaries.
TOWN PLANNING Objective Type MC Major Town Centre Objective Description Protect, provide for and/ or improve major town centre facilities Objective Vision “Consolidate the existing Major Towns in the County (incl. Balbriggan). The aim is to further develop these centres by densification of appropriate commercial and residential developments ensuring a mix of commercial, recreational, civic, cultural, leisure, residential uses, and urban streets, while delivering a quality urban environment which will enhance the quality of life of resident, visitor and workers alike. The zone will strengthen retail provision in accordance with the County Retail Strategy, emphasise urban conservation, ensure priority for public transport, pedestrians and cyclists while minimising the impact of private car-based traffic and enhance and develop the existing urban fabric”.
PLANNING PERMISSION On the 11th October 2023 Fingal County Council granted permission “For an amendment to previously granted planning permission register reference F18A/0441 to include raising the floor level and overall height of the apartments by 500mm, the incorporation all of the works granted planning permission under register reference F21A/0240 into one development of 8 apartments and all associated site woks”. The Final Grant issued on 14th November 2023.
ARCHITECT Damian Sheerin, 8 Railway Street, Balbriggan, Co. Dublin 086 173 3747 can answer queries regarding planning permission F23A/0269 and subsequent, related, planning grants.
TITLE We are advised of a freehold title - please refer to solicitor details below.
SOLICITOR John Collins, Donal Reilly & Collins, Solicitors, 20 Manor Street, Dublin 7. D07 KW98. T: (01) 677 3168.
VIEWING Inspections can be facilitated at any reasonable hour, subject to prior approval with the sole selling agents.
POSSESSION Vacant possession of the lands will be provided on closing.
PRICE Offers are invited in the region of €695,000.
BER Information
BER Number: 800986457
Energy Performance Indicator: 356.6 kWh/m²/yr
About the Area
Balbriggan is a large seaside town in the northern part of Fingal in County Dublin. The 2011 census population was 19,960, as the area experienced a population boom in the early part of the 2000s due to the demand for housing within the wider Dublin region. The area is served by a number of amenities, from schools to supermarkets, and locals have access to an abundance of leisure facilities - including Balbriggan Strand.
Get Directions Buying property is a complicated process. With over 40 years’ experience working with buyers all over Ireland, we’ve researched and developed a selection of useful guides and resources to provide you with the insight you need..
From getting mortgage-ready to preparing and submitting your full application, our Mortgages division have the insight and expertise you need to help secure you the best possible outcome.
Applying in-depth research methodologies, we regularly publish market updates, trends, forecasts and more helping you make informed property decisions backed up by hard facts and information.
Need Help?
Our AI Chat is here 24/7 for instant support
Help To Buy Scheme
The property might qualify for the Help to Buy Scheme. Click here to see our guide to this scheme.
First Home Scheme
The property might qualify for the First Home Scheme. Click here to see our guide to this scheme.
