Thank you
Your message has been sent successfully, we will get in touch with you as soon as possible.
Site With FPP For
Assisted Living Apartments
Oakview Village
Tralee
Co. Kerry
Description
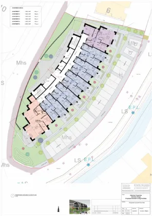
The 1 Bedroom Apartments extend to 56 sqm (602.77 sqft) while the 2 Bedroom Apartments extend to 79 sq m (850.37 sqft)
Oakview Village is an extremely sought after high quality residential development comprising currently of a mix of spacious houses and luxury apartments. The site will impress all those seeking a development site which will service the ever growing senior citizen sector.
The development is designed as a linear park with a river walk and open green areas and aims to provide an exclusive community style range of homes. The residents will enjoy the comfort of a luxury residence, the lifestyle of a community neighbourhood and the security of private estate management.
Oakview Village is located within walking distance of Tralee's vibrant town centre. It offers residents the much sought after privacy and security of community living, while every amenity and expectation of convenience is right on your doorstep.
The development also boasts an award winning 13500 sq. ft Oakview Childcare Facility which is located onsite.
Planning Permission is under Kerry County Council Reference Number: 201123 for the development at The Meadows in Oakview Village. This is the final phase of development of the current, fully occupied, 205 living units in the estate. Over the construction phases the estate established itself, as a preferred place to live, for families and downsize living for individuals and people of advancing years.
The convenience of the estate to schools, churches, and shopping facilities, in a well-managed development, has garnered the estate a reputation of having a significant community ethos. This Planning Permission is an enhancement through its inhouse communal space and services for clients needing minimal community support.
Parking is allotted based on one designated and additional communal parking spaces throughout the development. The designated parking facilities of 21 spaces, exclusive for the “Assisted Living Units”, will provide an efficient and convenient facility in line with current practice throughout Oakview Village.
Oakview Village was developed during 2005-2007 and is currently managed by Oakview Property Management Company Ltd (OPMCL). The “Assisted Living Units” will be bound by the estate rules under the management of OPMCL and duly appointed agents. Significant elements of the estate rules include the payment of fees based on the area of permanently constructed properties in return for the following services.
• External of buildings painted once in 5 yrs
• On site caretaking services
• Maintenance of Common areas
• Management of estate rules
About the Area
Tralee is the largest town in County Kerry. The town's population including suburbs was 23,693 in the 2011 census. Tralee is served by National Primary and Secondary roads as well as local routes. The bus station in Tralee is a regional hub for Bus Éireann, providing services to Dublin, Limerick, Galway, Cork, Killarney and Dingle. Kerry Airport is located 20km from Tralee in Farranfore. The local port for Tralee is Fenit, a picturesque mixed-use harbour with fishing boats and a thriving marina. A train service to Killarney, Cork, Dublin, and several connecting routes, is operated by Iarnród Éireann.
Get Directions Buying property is a complicated process. With over 40 years’ experience working with buyers all over Ireland, we’ve researched and developed a selection of useful guides and resources to provide you with the insight you need..
From getting mortgage-ready to preparing and submitting your full application, our Mortgages division have the insight and expertise you need to help secure you the best possible outcome.
Applying in-depth research methodologies, we regularly publish market updates, trends, forecasts and more helping you make informed property decisions backed up by hard facts and information.
Need Help?
Our AI Chat is here 24/7 for instant support
Help To Buy Scheme
The property might qualify for the Help to Buy Scheme. Click here to see our guide to this scheme.
First Home Scheme
The property might qualify for the First Home Scheme. Click here to see our guide to this scheme.
